Eladó lakás Érd 248 000 000 Ft

Leírás

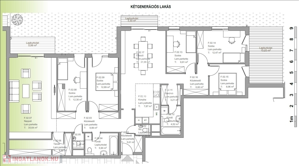
KÉTGENERÁCIÓS LAKÁS VAGY ÜZLETHELYISÉGNEK, RENDELŐNEK KIVÁLÓ, PRIVÁT PARKOLÁSI LEHETŐSÉG!

MAGAS MŰSZAKI TARTALOM, IGÉNYES KIVITELEZÉS, AA+ LAKÁSOK ELADÓK ÉRDLIGET LEGSZEBB RÉSZÉN.

2 NAPPALI + 5 SZOBA, 164.25 m2; erkély: 20 m2, első emeleti lakás
Ár: 181.700.000,- + Áfa, Bruttó: 248.000.000,-

Érd központi részén, de mégis kertvárosi utcában csendes környezetben, végig aszfaltúton megközelíthető helyen eladó egy nettó 164.3 m2-es kétgenerációs duplakomfortos földszinti lakás ELADÓ!

CSOK ÉS CSOKHITEL IGÉNYBE VEHETŐ!

Felosztása a következőképpen alakul: fürdőszoba (5.9 nm, 4.52 nm), amerikai konyhás nappali-étkező (29.86 nm, 30.64 nm), közlekedő (9.99 nm, 6.60 nm), 5 szoba (12.30 nm, 12.89 nm, 9.91 nm, 12.47 nm, 8.96 nm ), wc helyiség (1.22 nm, 1.40 nm).

Parkolás: teremgarázsban felszíni beálló külön albetétként megvásárolható.

Rövid műszaki ismertető:
Energetikai besorolás: AA+

A 4 szintes (P+FSZT.+IEM.+IIEM) társasház 11 db lakást tartalmaz amiből 2 db lakás kétgenerációs kialakítású. A lakások rendelkeznek kert, erkély és tetőterasz valamelyikével. Továbbá lakáson belüli / kívüli tároló lehetőséggel. Akadálymentes bejutás az épületbe.

Felszereltség:
A Fszt.-i lakások padlótemperálás kialakításúak. Hanggátló biztonsági lakásbejárati ajtók. A külső nyílászárók műanyag szerkezetűek, bukó - nyíló kivitelben, 3 rétegű hőszigetelésű üvegezéssel. Redőny előkészítés/ beszerelés igény szerint.
Belső burkolás a vevő igénye szerint. Alapkínálatból vagy egyedi igény alapján választható belső ajtók. Lakáselválasztó hang gátló falak kerülnek kialakításra.
Lakásonként egyedi fogyasztásmérők (hidegvíz, melegvíz, fűtés, áram).
Helyiségenként digitálisan vezérelt hőszivattyús hűtés/fűtés.

Extrák:
- Okosotthon alaphálózat, igény szerint bővíthető
- Internetről távolról telefonnal vezérelhető hűtés/fűtés lehetőség
- Lakásonként videokaputelefon
- Közösségi terekben kamerahálózat (CCTV)
- Teremgarázs elektromos gépkocsi töltési lehetőség
- Szintek közötti akadálymentes közlekedés személyfelvonóval
- Teremgarázsban közösségi kerékpár tároló


Eladó lakások:
-F.01 lakás 78,79 m2; terasz: 8,82+12.64 m2; kert: 30,78 ár: ELKELT!
-F.02 lakás 164,3 m2; terasz: 32,85 m2; kert: 168,36 ár: 248.000.000,-Ft.
-F.03 lakás 82,66 m2; terasz: 26,07 m2; kert: 152,14 ár: ELKELT
-F.04 lakás 93,64 m2; terasz: 12,32 m2; kert: 125,31 ár: ELKELT
-I.05 lakás 87,3 m2; terasz: 12,64 m2 ár: ELKELT!
-I.06 lakás 164,25 m2; Erkély: 20,27 m2 ár: ELKELT
-I.07 lakás 82,66 m2; erkély: 7,74 m2 ár: ELKELT!
-I.08 lakás 81,74 m2; terasz: 18,77 m2 ár: ELKELT!
-II.09 lakás 90,1 m2; terasz: 87,86 + 22,17 m2 ár: ELKELT!
-II.10 lakás 67,16 m2; terasz: 27,57 m2 ár: ELKELT!
-II.11 lakás 92,84 m2; terasz: 99,8 m2 ár: ELKELT!

Gyönyörű csendes környezet, jó levegő - kár lenne kihagyni!

A közelben buszmegálló. Óvoda, iskola, bevásárlási lehetőségek gyalogosan vagy autóval pár perc alatt elérhetők!

A kivitelező Megbízható, sok éves tapasztalattal rendelkezik, aki garantálja a kiváló minőséget garanciával!

Szüksége van hitelre? SEGÍTÜNK!
Bankfüggetlen hitel tanácsadónk díjmentesen áll az Ön rendelkezésére! Keressen bizalommal!
Ha a hirdetés felkeltette érdeklődését, várom hívását a hét minden napján.

Lakás részletei

Ár: 248 000 000 Ft
Méret: 164 négyzetméter
Azonosító: 11596766
Irodai azonosító: 392292
Cím: AA+ LAKÁSOK ÉRDLIGETEN
Emelet: 1. emelet
Építőanyag: Tégla
Fűtés jellege: Egyedi
Ingatlan állapota: Épülő
Komfort fokozat: Dupla komfort
Építési év: Új építésű
Tulajdonviszony: Saját
Kilátás: kertre néző
Egész szobák: 5

Egyéb jellemzők

  • Erkély
  • Garázs
  • Lift
  • Pince
  • Tároló

Térkép

Hasonló lakás hirdetések

Eladó lakás

Érd

Az épület földszintjén elhelyezkedő lakás extra nagy méretű, nettó ...

Eladó lakás

Érd

Már csak egy lakás maradt. Teljes befejezés hivatalosan 2026 április, ...

Eladó lakás

Érd

MAGAS MŰSZAKI TARTALOM, IGÉNYES KIVITELEZÉS, UTOLSÓ FÖLDSZINTI ELADÓ ...

Hasonló lakás hirdetések

Eladó lakás

Érd

Az épület földszintjén elhelyezkedő lakás extra nagy méretű, nettó ...

Eladó lakás

Érd

Már csak egy lakás maradt. Teljes befejezés hivatalosan 2026 április, ...

Eladó lakás

Érd

MAGAS MŰSZAKI TARTALOM, IGÉNYES KIVITELEZÉS, UTOLSÓ FÖLDSZINTI ELADÓ ...