Eladó lakás Gödöllő 87 900 000 Ft

Leírás


Gödöllő egyik nyugodt, barátságos utcájában nappali + 3 szobás tetőtéri lakás térkövezett kocsibeállóval eladó!

Az ingatlan 2022-ben épült, magas műszaki tartalommal, prémium kivitelezéssel.

Műszaki jellemzők:

- 30 cm PTH tégla + 20 cm Dryvit szigetelés,

- monolit vasbeton födém, 

- alumínium ereszcsatorna,

- 3 rétegű, kiemelkedő minőségű műanyag nyílászárók,

- beépített alumínium redőnytokok,

- Terrán betoncserép a tetőn,

- kondenzációs cirkó fűtés,

- kamera és riasztó előkészítés

- inverteres hűtő-fűtő klíma,

- napelem előkészítés,

- festett alumínium kerítés,

- elektromos kapu + kaputelefon.

Minőségi belső kialakítás:

- Olasz greslap burkolatok (120x60 cm),

- JAF Holz belső ajtók,

- Geberit WC,

- Hansgrohe csaptelepek,

- Beépített fürdőszoba bútorok,

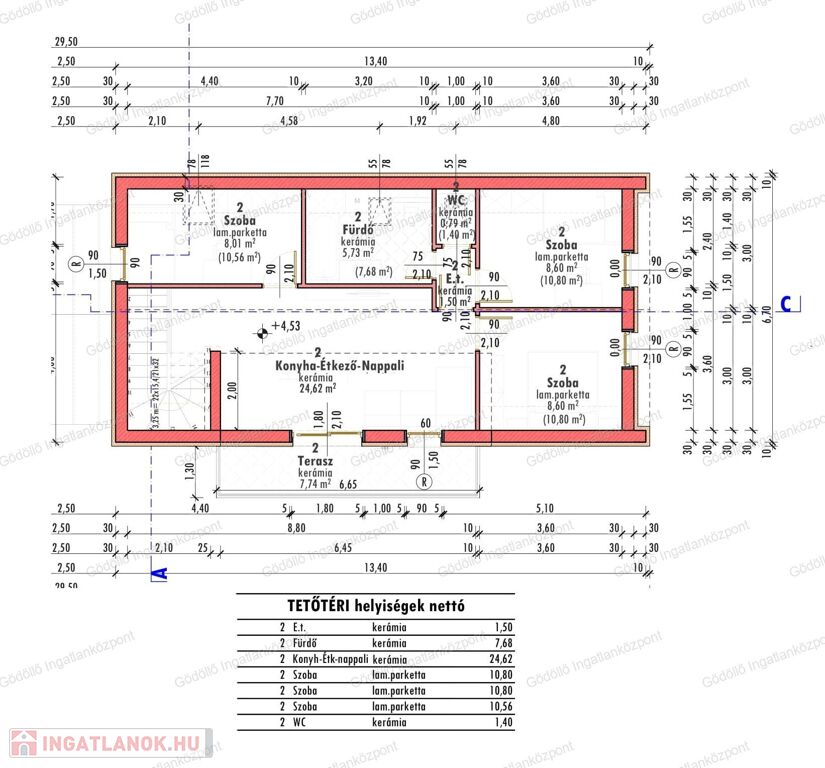
Lakás elosztása:

- Nappali-konyha-étkező,

- 3 szoba,

- fürdőszoba,

- külön mellékhelyiség,

- 7,74nm-es terasz

- 3,65nm-es tároló.

Telek:

- Saját, lekerített 60nm-es kert,

- parkoláshoz térkövezett beálló.

Környék:

- Nyugodt, családbarát, gyalog könnyen elérhető élelmiszerbolt, gyógyszertár, orvosi rendelő, buszmegálló.

A lakás nyári költözéssel eladó, elsősorban készpénzes vevő részére.

Irányár: 87,9Mft

Hivatkozási szám: 2518273.

Megtekinthető telefonos időpont egyeztetés alapján:

Sápi Tamás +36 20 944-7025 sapitamas@godolloi.hu  

GÖDÖLLŐ INGATLANKÖZPONT - www.godolloi.hu: Gödöllő és környéke legnagyobb ingatlan választéka /Gödöllő, Szada, Veresegyház, Kistarcsa, Kerepes, Erdőkertes/ eladó-kiadó családi ház, telek, lakás! Ingatlan építés és felújítás!

Lakás részletei

Ár: 87 900 000 Ft
Méret: 77 négyzetméter
Azonosító: 11608487
Irodai azonosító: 2518273
Emelet: Tetőtér
Építőanyag: Tégla
Fűtés jellege: Cirkó
Ingatlan állapota: Kitűnő
Komfort fokozat: Összkomfort
Egész szobák: 4

Egyéb jellemzők

  • Lift

Hasonló lakás hirdetések

Eladó lakás

Gödöllő

Gödöllő csendes kertvárosi részén eladó egy téglaépítésű, első ...

Eladó lakás

Gödöllő

CasaNetWork Gödöllő Ingatlaniroda kínálatában eladó lakás SAJÁT KERTTEL Gödöllő ...

Eladó lakás

Gödöllő

Gödöllő egyik legkeresettebb központhoz közeli kertvárosi ...

Hasonló lakás hirdetések

Eladó lakás

Gödöllő

Gödöllő csendes kertvárosi részén eladó egy téglaépítésű, első ...

Eladó lakás

Gödöllő

CasaNetWork Gödöllő Ingatlaniroda kínálatában eladó lakás SAJÁT KERTTEL Gödöllő ...

Eladó lakás

Gödöllő

Gödöllő egyik legkeresettebb központhoz közeli kertvárosi ...