Eladó lakás Gyömrő 68 900 000 Ft

Leírás


Megvételre kínálunk Gyömrő közkedvelt lakóparkjában, a KastélyDombon egy új építésű, HŐSZIVATTYÚS, 63 m² alapterületű + teraszos, 3 szobás, összkomfortos, gardróbos, sorházi lakást. A ház tájolása és elosztása kiváló, világos, nyitott terekkel rendelkezik.

 

Az ingatlan igényes kivitelezéssel, minőségi alapanyagokból, átgondolt tervezéssel, egyedi belső kialakítással készült, ahol a kényelem és az átgondolt tervezés mellett az energia takarékosság volt a fő szempont. Az ingatlan nappalijából egy 10 nm-es teraszon keresztül tudjuk megközelíteni a körbekerített privát kertet. A ház fűtéséről és használati melegvíz ellátásáról egy hőszivattyú gondoskodik, padlófűtéssel kombinálva. Ennek köszönhetően a rezsi költségek kedvezően alakulnak. A házhoz tartozó privát kert mérete: 304 nm.

 

A telek teljes mérete: 1086 nm.

 

Ennél a beruházásnál most lehetősége van kompromisszumok nélkül egy olyan ingatlanba költözni, ahol Ön kiválaszthatja a hideg és meleg burkolatokat, szanitereket, valamint az egyéb kiegészítőket a családja legnagyobb megelégedésére, ez által személyre szabva álmai otthonát.

 

Akár két gépjármű beállási lehetőségével a térkövezett gépjármű beállón lehet biztonságosan parkolni.

 

Várható átadás 2025. III. negyedév

 

Összesen négy lakás található ebben a sorházban 61-80 nm közötti méretben, valamint 180-344 nm privát telek méretekkel.

 

A fotók látványterveket tartalmaznak.

 

Igénybe vehető lehetséges kedvezmények:

- CSOK

- 5% Áfa visszatérítés

- Babaváró hitel

- Illeték kedvezmény vagy mentesség

 

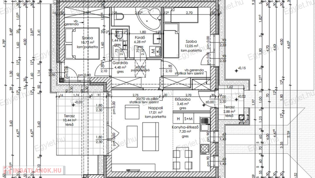
Helyiség lista:

- Előtér

- WC

- Fürdőszoba

- Szoba

- Szoba

- Amerikai konyha

- Étkező

- Nappali 

- Terasz (hátsó)

- Terasz (első)

 

Az ingatlan biztonságos környezetben, sorompóval elzárt és porta szolgálattal rendelkező lakóparkban helyezkedik el, Gyömrő egyik legnyugodtabb részén. A környék fejlett infrastruktúrájának köszönhetően bővelkedik a szociális intézményekben, bölcsőde, óvoda, általános iskola, orvosi intézmények, bevásárlási lehetőségek, találhatóak a közelben.

 

Hitel, CSOK igénylésben díjmentes ügyintézéssel állunk rendelkezésére!

Várom megtisztelő érdeklődésüket.

 

Lakás részletei

Ár: 68 900 000 Ft
Méret: 63 négyzetméter
Azonosító: 11533258
Irodai azonosító: 209001878
Építőanyag: Tégla
Ingatlan állapota: Kitűnő
Komfort fokozat: Összkomfort
Építési év: Új építésű
Egész szobák: 3

Egyéb jellemzők

  • Lift

Hasonló lakás hirdetések

Eladó lakás

Gyömrő

Figyelem! Eladó Jó állapotú TársasháziLakás! Ne hagyja ki ezt a fantasztikus ...

Eladó lakás

Gyömrő

Gyömrő hangulatos sorházi lakás saját kerttel!Eladó egy bájos, 48 nm-es ...

Hasonló lakás hirdetések

Eladó lakás

Gyömrő

Figyelem! Eladó Jó állapotú TársasháziLakás! Ne hagyja ki ezt a fantasztikus ...

Eladó lakás

Gyömrő

Gyömrő hangulatos sorházi lakás saját kerttel!Eladó egy bájos, 48 nm-es ...