Eladó lakás Győr 160 500 000 Ft

Leírás


Bálványos ligetben prémium minőségű lakások eladók!

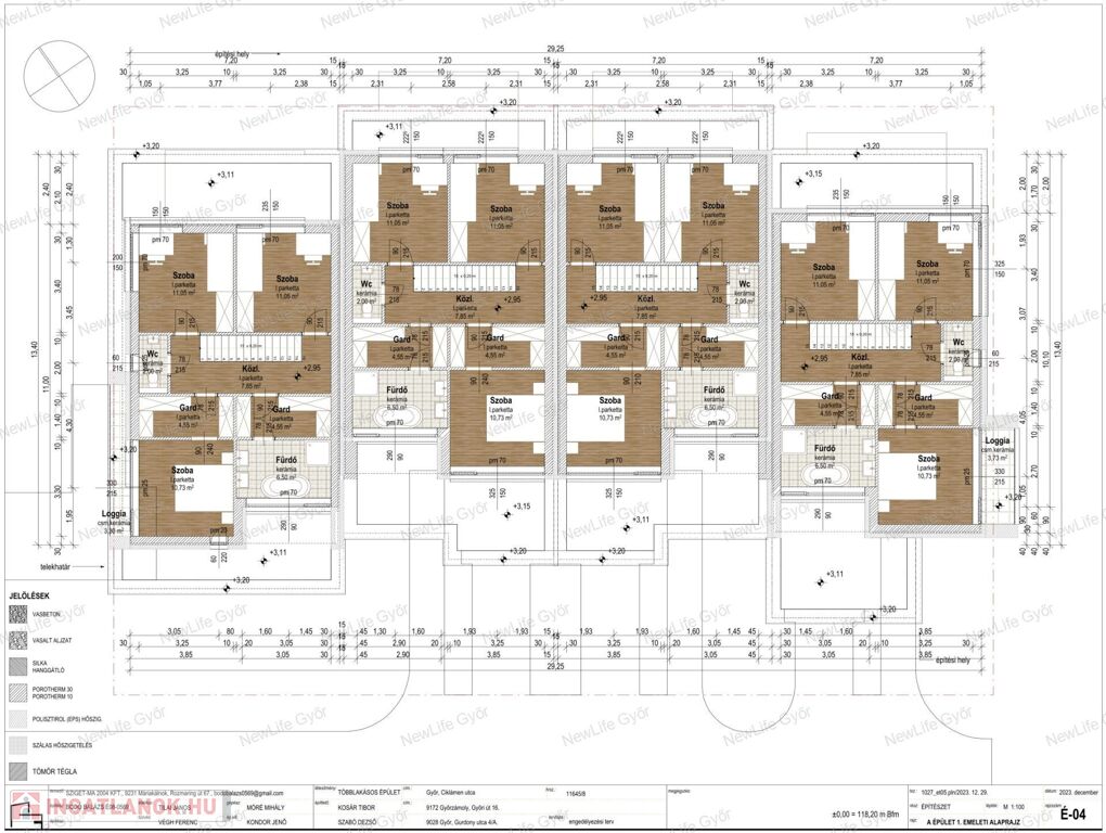
2026 év végi átadással épül 2 db lapostetős sorház, melyekben 4-4 belső kétszintes, 134 nm-es lakás kerül kialakításra.

A házak a legmagasabb minőséget képviselő anyagokkal, a mai modern technológiák által kerül kivitelezésre.

A kiváló hő és hangszigetelést Internorm 3 rétegű antracit/fehér színű nyílászárók biztosítják, ezek redőnnyel szereltek.

A lakások hűtéséről és fűtéséről Viessmann hőszivattyú és fan coil rendszer gondoskodik, a homlokzat pedig 15 cm-es szigetelést kap.

Ezek kombinációja egy teljeskörű, modern klímamegoldást nyújt, amelyek hosszútávon garantálják a kényelmet és az alacsony üzemeltetési költségeket.

A lakásokat tágas, valamint a nagyméretű nyílászáróknak köszönhetően világos terek alkotják, megteremtve ezzel a tökéletes harmóniát és komfortérzetet.

Földszinti elosztásuk előtérből, amerikai konyhás nappaliból, étkezőből, háztartási helyiségből, közlekedőből és külön helyiségben elhelyezett WC-ből áll, valamint mindegyik lakáshoz kapcsolódik 20 nm-es terasz és saját garázs is. A garázsok a vételár részét képezik.

Az emeleten kerül kialakításra 3 hálószoba, közlekedő, 2 db gardróbszoba, fürdőszoba és szintén egy külön helyiségben elhelyezett WC.

A lakások emeltszintű fűtéskész állapotban kerülnek átadásra, de igény esetén kulcsrakészen is kérhetőek.

Bálványos Liget Győr egyik legdinamikusabban fejlődő, exkluzív lakóparkja, amely népszerűségét elsősorban a Révfalu városrészben való elhelyezkedésének és a modern kertvárosi koncepciónak köszönheti, ahol a modern városi életmód és a természetközeli nyugalom páratlan ötvözete tárul elénk.

Természetközeli, mégis rendkívül frekventált elhelyezkedésű, hiszen percek alatt elérhető a belváros, élelmiszer boltok, pékség, Audi iskola, óvoda, bölcsőde, Árkád és egyéb bevásárlóközpontok.

Amennyiben szeretne Győr egyik legvonzóbb lakóparkjában egy minőségi otthonra szert tenni, keressen bizalommal és előzetes időpont egyeztetés után megmutatom!

Lakás részletei

Ár: 160 500 000 Ft
Méret: 134 négyzetméter
Azonosító: 11598662
Irodai azonosító: 718800789
Építőanyag: Tégla
Ingatlan állapota: Kitűnő
Komfort fokozat: Összkomfort
Építési év: Új építésű
Egész szobák: 4

Egyéb jellemzők

  • Lift

Hasonló lakás hirdetések

Eladó lakás

Győr

Győr-Révfaluban, a Bálványosi csatorna szomszédságában, 8 lakásból ...

Eladó lakás

Győr, Belváros

Belvárosban, liftes társasház felső szintjén, modern, minőségi otthon ...

Eladó lakás

Győr

Győr-Révfaluban, a Bálványosi csatorna szomszédságában, 8 lakásból ...

Eladó lakás

Győr

Győr-Révfaluban, a Bálványosi csatorna szomszédságában, 8 lakásból ...

Hasonló lakás hirdetések

Eladó lakás

Győr

Győr-Révfaluban, a Bálványosi csatorna szomszédságában, 8 lakásból ...

Eladó lakás

Győr, Belváros

Belvárosban, liftes társasház felső szintjén, modern, minőségi otthon ...

Eladó lakás

Győr

Győr-Révfaluban, a Bálványosi csatorna szomszédságában, 8 lakásból ...

Eladó lakás

Győr

Győr-Révfaluban, a Bálványosi csatorna szomszédságában, 8 lakásból ...