Eladó lakás Győr 37 000 000 Ft

Leírás


Győr-Moson-Sopron vármegye, Győr Újváros, 3 szobás tégla lakás eladó udvarral

 

Kizárólag irodánk kínálatában!



Győr belvárosától mindössze 800 méterre, a Rába folyó mellett, a töltés utáni első utcában eladó ez a 75 m2 nagy lakás, mely egy osztatlan közös udvart használ másod magával.

A három egymás melletti lakás egy társasházi közösséget alkot, viszont az udvart és a bejáratokat (személy és autó bejáratot) két lakás használja. Ezen a 958 m2-es udvaron (melyről az utolsó szomszéd egy részt lekerített, bejárata is külön van) található egy két részre osztott, 7,34 m2-es tároló.

 

Az épület nagy múltra tekint vissza, ám szerkezetére, állagmegóvásra folyamatosan voltak felújítások elvégezve.

A legutolsó projekt keretén belül a tető bádogozása lett teljesen lecserélve, illetve a héjazat (cserép) javítása, pótlása, cseréje is ekkor történt. Az 50 cm-es tégla falazat többször esett át injektálásos szigetelésen. A burkolatok cseréjével a víz – és villanyvezetékek is megújultak (felülvizsgálat történt). A lakásban 16A áramerősség érhető el jelenleg, mely bővíthető. Ablakok és a bejárati ajtó dupla üvegezésű, hőszigetelt, fából készült. Fűtése gázkonvektorokkal megoldott. Melegvizet a fürdőszobában található villanybojler adja.

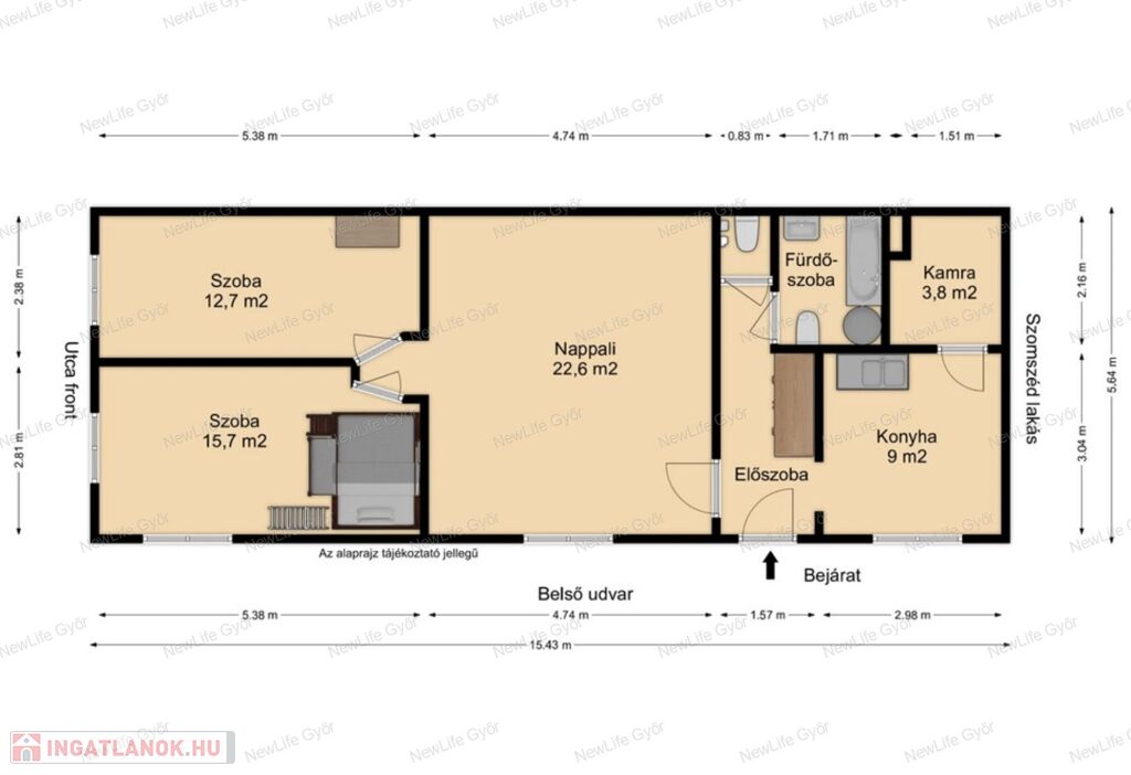
A lakás elosztása: tágas nappali +2 nagy méretű hálószoba, egyikben galéria, fürdőszoba káddal, toalettel, illetve külön mellékhelyiség is kiépült a legutolsó felújítás alkalmával. Tágas konyha kamrával, előszoba beépített gardróbbal.

A teljes ingatlan 3 m belmagasságú, igazán tágas térérzetet nyújt.

 

Tehermentes, azonnal birtokba vehető.

Jöjjön és nézze meg személyesen! Ne maradjon le róla!





A jelen hirdetésben rögzített, az ingatlannal kapcsolatos adatok, információk a megbízó tájékoztatása alapján kerültek meghatározásra.



Irodánkban az alábbiakkal tudjuk segíteni a gyors és megbízható ügyintézést:

-bankfüggetlen hitelügyintézés

-energetikai tanúsítvány

-értékbecslés

-ügyvédi szerződések, jogi tanácsadás

Lakás részletei

Ár: 37 000 000 Ft
Méret: 75 négyzetméter
Azonosító: 11561790
Irodai azonosító: 718800376
Építőanyag: Tégla
Fűtés jellege: Konvektoros
Ingatlan állapota: Felújítandó
Komfort fokozat: Összkomfort
Egész szobák: 3

Egyéb jellemzők

  • Lift

Hasonló lakás hirdetések

Eladó lakás

Győr, Győrszabadhegy

Első lakás? Befektetés? Tökéletes választás! Szabadhegy! Modern, minőségi, ...

Eladó lakás

Győr

Győrben, Gyárvárosban Stadion utcában 53 négyzetméteres, felújítandó ...

Eladó lakás

Győr

Győri, 45 m2-es, 1 szobás, felújított, 1.emeleti, egyedi gázfűtéses, ...

Eladó lakás

Győr

Ez a lakás ideális választás mindazok számára, akik megfizethető áron ...

Hasonló lakás hirdetések

Eladó lakás

Győr, Győrszabadhegy

Első lakás? Befektetés? Tökéletes választás! Szabadhegy! Modern, minőségi, ...

Eladó lakás

Győr

Győrben, Gyárvárosban Stadion utcában 53 négyzetméteres, felújítandó ...

Eladó lakás

Győr

Győri, 45 m2-es, 1 szobás, felújított, 1.emeleti, egyedi gázfűtéses, ...

Eladó lakás

Győr

Ez a lakás ideális választás mindazok számára, akik megfizethető áron ...