Eladó lakás Győr 45 990 000 Ft

Leírás


Új lakás vásárlási lehetőség Győr-Szigetben, 2026-ban KEDVEZMÉNYES ÁRON! Az Egyetemtől és a Termálfürdőtől mindössze 5-10 perc sétára található ez a központi, mégis csendes helyen elhelyezkedő új társasház. Ilyen egyedi lokációban ritkán épülnek új lakások.

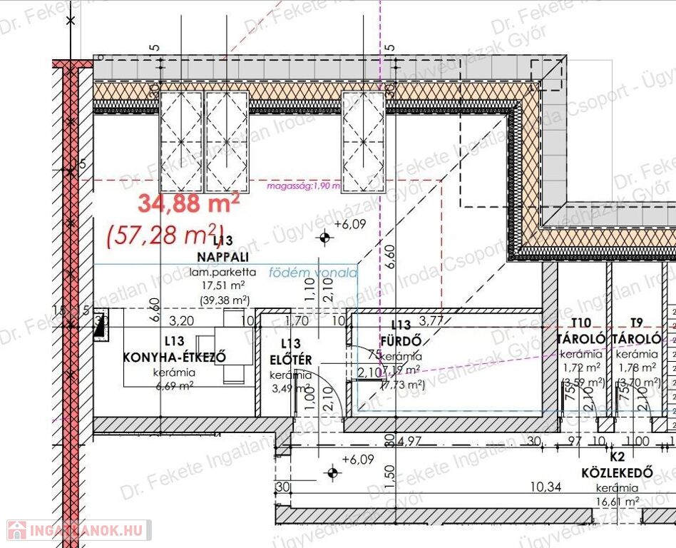
Bruttó lakótér: 57,28 nm / nettó lakótér: 34,88 nm, 1 szobás / tetőtéri elhelyezkedésű.

 

Értékálló Prémium Kategóriás Ingatlan:

Energetikai besorolás: A+

Fűtéskész átadás: 2026 tavasszal

 

Modern Kényelmi Megoldások:

Hőszivattyús padló és mennyezet hűtés-fűtés:

Nincs szükség klímára, jelentős megtakarítás

Kiváló hőérzet, egészségesebb megoldás

Alacsonyabb üzemeltetési költségek

Egyedi hőmennyiségmérő és termosztát lakásonként

Melegvíz előállítása is hőszivattyúval történik

Esztétikus épület, értékálló ingatlanok

Négy oldalról bekerített épület

Elektromos kapu távműködtetéssel

 

További Extrák:

Beépített redőnyök elektromos mozgatással

Egy db törölközőszárítós radiátor az árban

Minden lakáshoz egyéni hidegvíz- és melegvízóra, valamint villanymérő biztosítva

Közüzemi hozzájárulási költségek az árban

 

Ne hagyd ki ezt az egyedülálló lehetőséget! Költözz be új, prémium minőségű otthonodba Győr-Sziget egyik legjobb helyén, és élvezd a modern technológia és a kényelmes élet minden előnyét!

 

Gk Beálló: 4,49 M Ft /db

Tároló: 3 M Ft - 1,78 nm

Keress még ma, várom hívásod! Hartmann-né Viki Tel.: +36 20 481 3369

Lakás részletei

Ár: 45 990 000 Ft
Méret: 57 négyzetméter
Azonosító: 11399872
Irodai azonosító: 210600484
Összesített energetikai besorolás: A+
Emelet: Tetőtér
Építőanyag: Tégla
Ingatlan állapota: Kitűnő
Komfort fokozat: Összkomfort
Egész szobák: 1

Egyéb jellemzők

  • Lift

Hasonló lakás hirdetések

Eladó lakás

Győr

Eladó egy 45 m²-es, felújított, 1. emeleti téglalakás Győr-Nádorváros ...

Eladó lakás

Győr

ÁRCSÖKKENÉS!  /  RÉGI ÁR: 53.900.000 Ft  /  ÚJ ...

Eladó lakás

Győr

Kiváló lokáció! Egyetem, Belváros,Termálfürdő 5-10 perc séta Hőszivattyús ...

Eladó lakás

Győr

Szabadhegyen eladó ez az FÖLDSZINTI ingatlan! 2026-ban KEDVEZMÉNYES ...

Hasonló lakás hirdetések

Eladó lakás

Győr

Eladó egy 45 m²-es, felújított, 1. emeleti téglalakás Győr-Nádorváros ...

Eladó lakás

Győr

ÁRCSÖKKENÉS!  /  RÉGI ÁR: 53.900.000 Ft  /  ÚJ ...

Eladó lakás

Győr

Kiváló lokáció! Egyetem, Belváros,Termálfürdő 5-10 perc séta Hőszivattyús ...

Eladó lakás

Győr

Szabadhegyen eladó ez az FÖLDSZINTI ingatlan! 2026-ban KEDVEZMÉNYES ...