Eladó lakás Győr 57 990 000 Ft

Leírás


Győr-Belvárosától pár perces autóútra, Szitásdomb új kialakítású részén új építésű 29 lakásos társasházban nappali + 2 szobás lakás eladó.

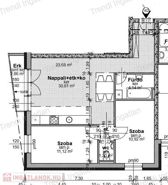
Az 1. emeleten található 59,20 nm-es ingatlanban amerikai konyhás nappali, 2 szoba, fürdőszoba, külön WC, közlekedő, előtér kerül kialakításra. A nappaliból 2,86 nm-es erkély nyílik. 

Az ingatlan fűtéskész ára: 57.990.000 Ft. Kulcsrakész befejezés kérhető.

Gépkocsibeálló ára: 1.700.000 Ft

Lehetőség van tároló vásárlására is, ára: 1.500.000 Ft-tól.

A társasház Szitásdomb új lakóparkjában épül. A földszinti lakások terasszal, az emeleti lakások erkéllyel/terasszal rendelkeznek. A társasház zárt udvarán felszíni parkolók kerülnek kialakításra. A társasház 30 cm-es falazóelemből, 20 cm-es homlokzati hőszigeteléssel épül. A műanyag, hőszigetelt nyílászárók 6 légkamrásak, 3 rétegű üvegezéssel rendelkeznek. Az ár tartalmazza a redőny előkészítését lefutókkal, az elektromos kiépítés felár ellenében kérhető. A társasház fűtését hőszivattyú biztosítja. Lakásonként egyedi hőmennyiségmérő, a fürdőszobában törölközőszárító radiátor kerül. Klímakiépítés igény esetén felár ellenében kérhető.

A társasház átadásának tervezett időpontja: 2026 nyár

Bővebb információkért keressen bizalommal!

Hétköznap és hétvégén is várom hívását!

A hirdetésben feltüntetett képek illusztrációk.

Lakás részletei

Ár: 57 990 000 Ft
Méret: 60 négyzetméter
Azonosító: 11577900
Irodai azonosító: 196400809
Emelet: 1. emelet
Építőanyag: Tégla
Ingatlan állapota: Kitűnő
Komfort fokozat: Összkomfort
Építési év: Új építésű
Egész szobák: 3

Egyéb jellemzők

  • Lift

Hasonló lakás hirdetések

Eladó lakás

Győr

Nádorváros egyik legkedveltebb részén , 2024-as átadással eladó egy ...

Eladó lakás

Győr

Győr közkedvelt részén, Adyvárosban eladó egy 53 nm-es, ...

Eladó lakás

Győr, Győrszabadhegy

Első lakás? Befektetés? Tökéletes választás! Szabadhegy! L4 Modern, ...

Eladó lakás

Győr

Keresed az ideális otthont / befektetést, amely egyszerre kínál csendes ...

Hasonló lakás hirdetések

Eladó lakás

Győr

Nádorváros egyik legkedveltebb részén , 2024-as átadással eladó egy ...

Eladó lakás

Győr

Győr közkedvelt részén, Adyvárosban eladó egy 53 nm-es, ...

Eladó lakás

Győr, Győrszabadhegy

Első lakás? Befektetés? Tökéletes választás! Szabadhegy! L4 Modern, ...

Eladó lakás

Győr

Keresed az ideális otthont / befektetést, amely egyszerre kínál csendes ...