Eladó lakás Győr 58 990 000 Ft

Leírás


Győr-Szabadhegy mellékutcájában új építésű 28 lakásos társasházban különböző alapterületű lakások eladók.

A modern társasházban nappali + 1 szobás, nappali + 2 szobás és nappali + 3 szobás lakások kerülnek kialakításra. A földszinti lakások kertkapcsolattal és terasszal, az emeleti lakások erkéllyel, galériával és tetőterasszal, a penthouse lakások tetőterasszal rendelkeznek.

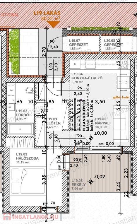
A meghirdetett 1. emeleten található 50,31 nm-es lakásban az alsó szinten amerikai konyhás nappali, szoba, fürdőszoba és előtér található. Nappaliból 7,94 nm-es erkély nyílik. A nappaliból vezető lépcsőn keresztül érhető el a galéria, ami akár hálószobának is alkalmas. 

A lakás fűtéskész ára: 58.990.000 Ft. Kulcsrakész befejezés kérhető.

Gépkocsibeállló ára: 2.900.000 Ft

Fedett gépkocsibeálló ára: 4.900.000 Ft

Lehetőség van tároló vásárlására is, ára: 3.500.000 Ft – 3.900.000 Ft

A társasház 30 cm-es falazóelemből, 15 cm-es homlokzati hőszigeteléssel épül. A homlokzati műanyag nyílászárók 3 rétegűek. Az ingatlanok fűtése kondenzációs gázkazánnal történik, lakásonként egyedi hőmennyiségmérővel és hőmérséklet szabályozó termosztáttal, hőleadás padlófűtéssel. Az ár 1 db klímaelőkészítést tartalmaz.

Várható átadás: 2027 tavasz

Bővebb információkért forduljon hozzám bizalommal.

Hétköznap és hétvégén is várom hívását!

Díjmentes, bankfüggetlen hitelügyintézéssel állunk rendelkezésére.

A hirdetésben feltüntetett képek illusztrációk.

Lakás részletei

Ár: 58 990 000 Ft
Méret: 50 négyzetméter
Azonosító: 11568972
Irodai azonosító: 196400798
Emelet: 1. emelet
Építőanyag: Tégla
Ingatlan állapota: Kitűnő
Komfort fokozat: Összkomfort
Építési év: Új építésű
Egész szobák: 3

Egyéb jellemzők

  • Lift

Hasonló lakás hirdetések

Eladó lakás

Győr

Nádorváros egyik legkedveltebb részén , 2024-as átadással eladó egy ...

Eladó lakás

Győr, Győrszabadhegy

Első lakás? Befektetés? Tökéletes választás! Szabadhegy! L4 Modern, ...

Eladó lakás

Győr

Győr városának egyik legdinamikusabban fejlődő területén, Szitásdombon ...

Eladó lakás

Győr

Győr városának egyik legdinamikusabban fejlődő területén, Szitásdombon ...

Hasonló lakás hirdetések

Eladó lakás

Győr

Nádorváros egyik legkedveltebb részén , 2024-as átadással eladó egy ...

Eladó lakás

Győr, Győrszabadhegy

Első lakás? Befektetés? Tökéletes választás! Szabadhegy! L4 Modern, ...

Eladó lakás

Győr

Győr városának egyik legdinamikusabban fejlődő területén, Szitásdombon ...

Eladó lakás

Győr

Győr városának egyik legdinamikusabban fejlődő területén, Szitásdombon ...