Eladó lakás Győr 58 900 000 Ft

Leírás


Győr-Moson-Sopron vármegye, Győr Belváros, két szobás tégla lakás eladó



Győr belvárosában, a Szent István úthoz közel eladó ez az 51 m2-es, második emeleti téglalakás.  

A négy szintes épület kívülről szép állapotú. Néhány lépésre elérhető parkolóház, illetve a közelben is van több lehetőség parkolásra. A közelben általános iskola, óvoda is megtalálható, élelmiszerbolt, bevásárló központ. Vasút és a vidéki pályaudvar is néhány perces távolságra elérhető.

Az épület mögött van egy közös kis udvar, teljesen kihasználatlanul, lehetőség van padokat kitenni, virágokat ültetni. A ház rendezett, tiszta, összeszokott lakóközösség jellemzi.

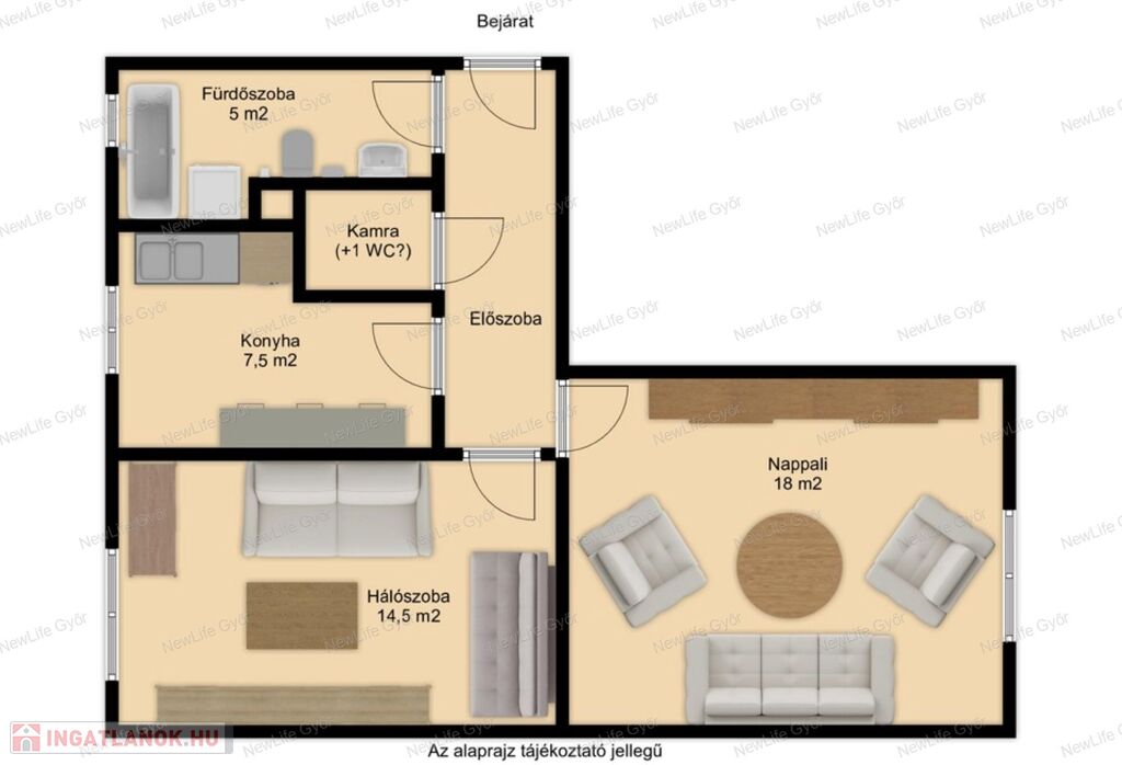
Elosztása: tágas nappali, nagyméretű hálószoba, konyha, kádas fürdőszoba WC-vel, egy kamra (ahová akár a WC áthelyezhető), közlekedő.

Távfűtéses lakás, melegvizet újszerű villanybojler biztosítja, hőleadás radiátorokon keresztül történik, minden oldalról szomszédok veszik körbe, így télen garantált a jó hőmérséklet.

A lakásban 2 rétegű műanyag ablakok vannak, a bejárati ajtó pedig néhány éve cserélve lett több ponton záródó műanyagra. A szobákban a fa parketta jó állapotú, viszont a lakás nagy része modernizálásra szorul.



Elhelyezkedése miatt értékes lakás, akár ügyvédi irodának, üzleti célra. Az épület sok belvárosival ellentétben kiváló állapotú.

Tehermentes, azonnal birtokba vehető.







A jelen hirdetésben rögzített, az ingatlannal kapcsolatos adatok, információk a megbízó tájékoztatása alapján kerültek meghatározásra.



Irodánkban az alábbiakkal tudjuk segíteni a gyors és megbízható ügyintézést:

-bankfüggetlen hitelügyintézés

-energetikai tanúsítvány

-értékbecslés

-ügyvédi szerződések, jogi tanácsadás

Lakás részletei

Ár: 58 900 000 Ft
Méret: 51 négyzetméter
Azonosító: 11566026
Irodai azonosító: 718800623
Építőanyag: Tégla
Fűtés jellege: Távfűtés
Ingatlan állapota: Átlagos
Komfort fokozat: Összkomfort
Egész szobák: 2

Egyéb jellemzők

  • Lift

Hasonló lakás hirdetések

Eladó lakás

Győr

Nádorváros egyik legkedveltebb részén , 2024-as átadással eladó egy ...

Eladó lakás

Győr, Győrszabadhegy

Első lakás? Befektetés? Tökéletes választás! Szabadhegy! L4 Modern, ...

Eladó lakás

Győr

Keresed az ideális otthont / befektetést, amely egyszerre kínál csendes ...

Eladó lakás

Győr

Győr városának egyik legdinamikusabban fejlődő területén, Szitásdombon ...

Hasonló lakás hirdetések

Eladó lakás

Győr

Nádorváros egyik legkedveltebb részén , 2024-as átadással eladó egy ...

Eladó lakás

Győr, Győrszabadhegy

Első lakás? Befektetés? Tökéletes választás! Szabadhegy! L4 Modern, ...

Eladó lakás

Győr

Keresed az ideális otthont / befektetést, amely egyszerre kínál csendes ...

Eladó lakás

Győr

Győr városának egyik legdinamikusabban fejlődő területén, Szitásdombon ...