Eladó lakás Győr 63 942 525 Ft

Leírás


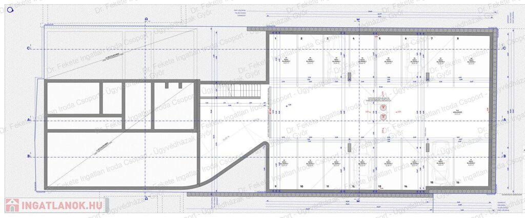
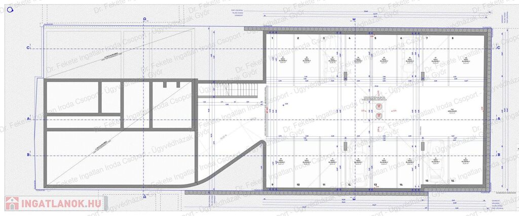
Győr egyik legkeresettebb városrészében, Nádorváros dinamikusan fejlődő környezetében kínálunk megvételre egy új építésű, 15 lakásos társasházban kiváló adottságú lakásokat.

NE MARADJ LE! A lakások 30 %-a már elkelt.

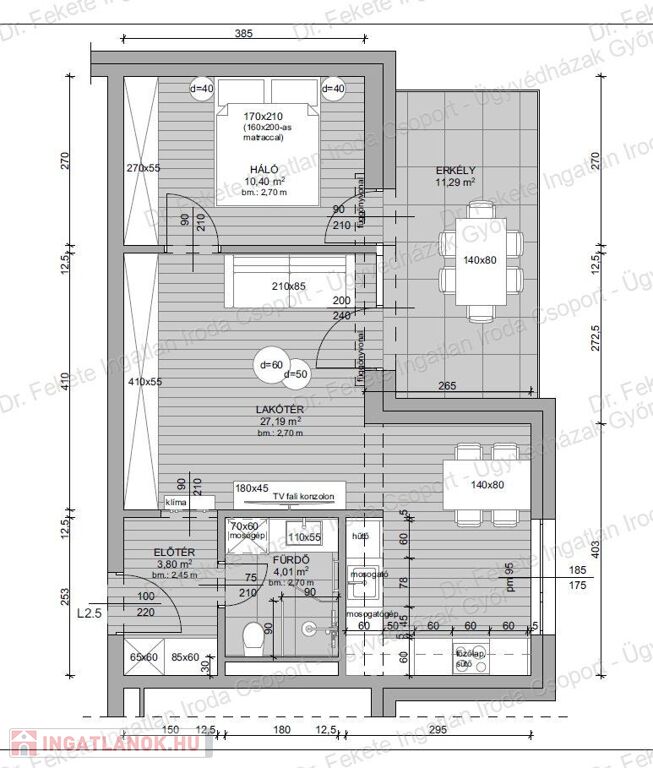
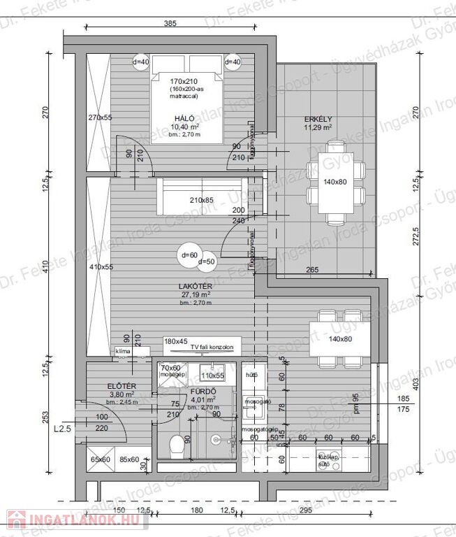
A 3. emeleten elhelyezkedő, lakótér 45,4 nm-es lakás +10,23 nm erkélyes ingatlan tökéletes választás:

– első lakásnak,

– kiadásra (albérlet / rövid táv),

– vagy értékálló befektetésként.

Az A / A+ energetikai besorolás garantálja az alacsony fenntartási költségeket – ami ma már nem extra, hanem elvárás.Nagyszerű élhető tér – alacsony rezsi

 

2026.05.30-ig: - 2 M Ft  kedvezmény a garázs árából, minden lakás mellé!

 

Műszaki tartalom – ami hosszú távon számít

✔ 3 rétegű hőszigetelt műanyag nyílászárók

✔ Redőny előkészítés

✔ 20–30 cm vasbeton teherhordó szerkezet

✔ 20 cm kőzetgyapot homlokzati hőszigetelés

✔ Intenzív zöldtető rendszer

✔ Közösségi tetőterasz

 

Gépészet:

✔ Központi gázkazán (2 db)

✔ Padlófűtés – modern komfort

✔ Elektromos törölközőszárító - kiállás

✔ Klíma előkészítés - opcionális, külön fizetendő

 

Extra lehetőségek (limitált darabszám!)

– Mélygarázs beálló: 8,5 M Ft / db (16 db)

– Tároló (2–2,59 nm): 1,75 M Ft / db (6 db)

 

Átadás: Fűtéskész állapotban, tervezetten 2027-ben

Fűtéskész hirdetési ár, igény esetén kulcsrakész kivitelezéssel, egyedi ajánlat szerint.

 

Miért most érdemes lépned?

– Új építés → nincs felújítási kockázat

– Nádorváros → stabil, könnyen kiadható lokáció

– Kis méret → magas hozam, gyors bérbeadás

– Korai foglalás → jobb ár és választék

Ne csak gondolkodj rajta – foglald le most, és biztosítsd a helyed Győr egyik legígéretesebb projektjében!

A képek és látványtervek az értékesítést szolgálják, illusztrációk.

Mégtöbb ajánlat a drfeketeingatlanponthu oldalon.

 

 

Lakás részletei

Ár: 63 942 525 Ft
Méret: 50 négyzetméter
Azonosító: 11611831
Irodai azonosító: 210600657
Cím: Szigethy A
Összesített energetikai besorolás: A+
Emelet: 3. emelet
Építőanyag: Tégla
Ingatlan állapota: Kitűnő
Komfort fokozat: Összkomfort
Építési év: Új építésű
Egész szobák: 2

Egyéb jellemzők

  • Lift

Hasonló lakás hirdetések

Eladó lakás

Győr

Győr-Nádorvárosban 25 lakásos liftes társasház első emeletén, 49 m² ...

Eladó lakás

Győr

Győr-Nádorvárosban 25 lakásos liftes társasház harmadik emeletén, 49 ...

Eladó lakás

Győr

Győr-Moson-Sopron vármegye, Győr Gyárváros, két szobás ...

Eladó lakás

Győr

ÁRCSÖKKENÉS! ÁR – ÉRTÉK ARÁNYBAN AZ EGYIK LEGJOBB ...

Hasonló lakás hirdetések

Eladó lakás

Győr

Győr-Nádorvárosban 25 lakásos liftes társasház első emeletén, 49 m² ...

Eladó lakás

Győr

Győr-Nádorvárosban 25 lakásos liftes társasház harmadik emeletén, 49 ...

Eladó lakás

Győr

Győr-Moson-Sopron vármegye, Győr Gyárváros, két szobás ...

Eladó lakás

Győr

ÁRCSÖKKENÉS! ÁR – ÉRTÉK ARÁNYBAN AZ EGYIK LEGJOBB ...