Eladó lakás Győr 66 450 075 Ft

Leírás


Győr egyik legkeresettebb városrészében, Nádorváros dinamikusan fejlődő környezetében kínálunk megvételre egy új építésű, 15 lakásos társasház egyik kiváló adottságú lakását.

A lakások 30 %-a már elkelt. NE MARADJ LE!

Fűtéskész hirdetési ár, igény esetén kulcsrakész kivitelezéssel, egyedi ajánlat szerint.

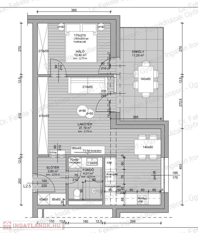
A 2. emeleten elhelyezkedő 45,4 nm-es lakótér, + 10,23 nm-es erkélyes, lakás tökéletes választás:

– első lakásnak,

– kiadásra (albérlet / rövid táv),

– vagy értékálló befektetésként.

 

Világos, élhető tér – alacsony rezsivel

A DK-i fekvésnek köszönhetően a lakás egész nap világos, míg az A / A+ energetikai besorolás garantálja az alacsony fenntartási költségeket – ami ma már nem extra, hanem elvárás.

 

2026.05.30-ig: - 2 M Ft  kedvezmény a garázs árából, minden lakás mellé!

 

Műszaki tartalom – ami hosszú távon számít

✔ 3 rétegű hőszigetelt műanyag nyílászárók

✔ Redőny előkészítés

✔ 20–30 cm vasbeton teherhordó szerkezet

✔ 20 cm kőzetgyapot homlokzati hőszigetelés

✔ Intenzív zöldtető rendszer

✔ Közösségi tetőterasz

 

Gépészet:

✔ Központi gázkazán (2 db)

✔ Padlófűtés – modern komfort

✔ Elektromos törölközőszárító - kiállás

✔ Klíma előkészítés - opcionális, külön fizetendő

 

Extra lehetőségek (limitált darabszám!)

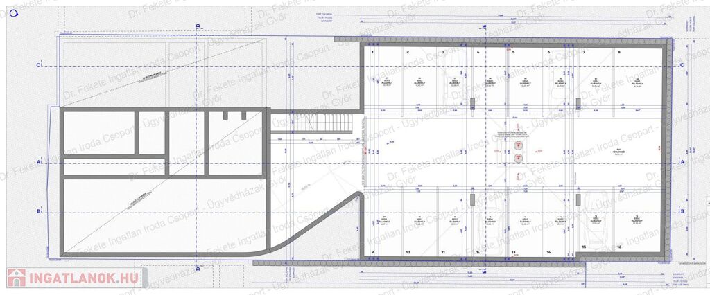
– Mélygarázs beálló: 8,5 M Ft / db (16 db)

– Tároló (2–2,59 nm): 1,75 M Ft / db (6 db)

 

Átadás: Fűtéskész állapotban, tervezetten 2027-ben

Miért most érdemes lépned?

– Új építés → nincs felújítási kockázat

– Nádorváros → stabil, könnyen kiadható lokáció

– Kis méret → magas hozam, gyors bérbeadás

– Korai foglalás → jobb ár és választék

Ne csak gondolkodj rajta – foglald le most, és biztosítsd a helyed Győr egyik legígéretesebb projektjében!

A képek és látványtervek az értékesítést szolgálják, illusztrációk.

 

 

Lakás részletei

Ár: 66 450 075 Ft
Méret: 50 négyzetméter
Azonosító: 11615634
Irodai azonosító: 210600665
Cím: Szigethy A L5
Összesített energetikai besorolás: A+
Emelet: 2. emelet
Építőanyag: Tégla
Ingatlan állapota: Kitűnő
Komfort fokozat: Összkomfort
Építési év: Új építésű
Egész szobák: 2

Egyéb jellemzők

  • Lift

Hasonló lakás hirdetések

Eladó lakás

Győr

Győr-Nádorvárosban 25 lakásos liftes társasház első emeletén, 49 m² ...

Eladó lakás

Győr

Győr-Nádorvárosban 25 lakásos liftes társasház harmadik emeletén, 49 ...

Eladó lakás

Győr

Győr-Moson-Sopron vármegye, Győr Gyárváros, két szobás ...

Eladó lakás

Győr

FIATALOK, CSALÁDOSOK ÉS BEFEKTETŐK FIGYELMÉBE AJÁNLÓM! AZONNAL ...

Hasonló lakás hirdetések

Eladó lakás

Győr

Győr-Nádorvárosban 25 lakásos liftes társasház első emeletén, 49 m² ...

Eladó lakás

Győr

Győr-Nádorvárosban 25 lakásos liftes társasház harmadik emeletén, 49 ...

Eladó lakás

Győr

Győr-Moson-Sopron vármegye, Győr Gyárváros, két szobás ...

Eladó lakás

Győr

FIATALOK, CSALÁDOSOK ÉS BEFEKTETŐK FIGYELMÉBE AJÁNLÓM! AZONNAL ...