Eladó lakás Győr 68 000 000 Ft

Leírás


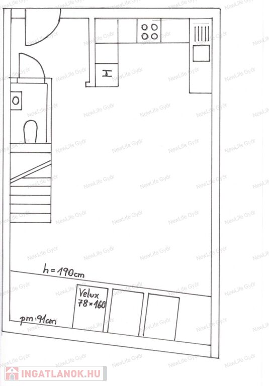
Eladó belső kétszintes lakás Révfaluban Győr-Révfalu családiházas övezetében eladó egy belső kétszintes bruttó 84 nm-es (nettó 64,37 nm) tetőtéri lakás, amely egy 2005-ben épült 9 lakásos társasház 2.emeltén helyezkedik el.

A lakás elosztása rendkívül kedvező, tágas és világos terek alkotják, így biztosított harmonikus élettér.

Elosztását tekintve az alsó rész előtérből, amerikai konyhás nappaliból, étkezőből és WC-ből áll. Az emeleten kaptak helyet a hálószobák, gardrób és fürdőszoba. Az emeleti fürdőben megtalálható kád és zuhanyzó egyaránt, illetve szintén egy WC.

A fűtésről saját gázkazán gondoskodik, a hőleadás radiátorokkal történik.

Beszerelésre került egy hűtő-fűtőklíma is, aminek a segítségével optimalizálható a benti hőmérséklet, hozzájárulva ezzel a tökéletes komfortérzethez.

Elhelyezkedés szempontjából is rendkívül frekventált, ugyanis a közelben megtalálható bevásárló központ, boltok, egyetem, belváros és az Audi iskola is. Mindezek közelsége nagyban megkönnyítik a mindennapi életet.

A lakáshoz tartozik egy 3,4 nm-es saját tároló, ami 1 500 000 Ft ellenében megvásárolható, illetve igény esetén a bútorok és gépek 500 000 Ft ellenében maradhatnak a leendő tulajdonosnál.

Ideális választás lehet párok és családok számára is, nem utolsó sorban befektetőknek, ugyanis az ingatlant jelenleg megbízható bérlő lakja, aki a továbbiakban is szívesen maradna.

Amennyiben szeretné megtekinteni ezt a modern, letisztult lakást, előzetes időpont egyeztetés után megmutatom!

Lakás részletei

Ár: 68 000 000 Ft
Méret: 84 négyzetméter
Azonosító: 11598427
Irodai azonosító: 718800788
Építőanyag: Tégla
Fűtés jellege: Központi
Ingatlan állapota: Felújított
Komfort fokozat: Összkomfort
Egész szobák: 2
Fél szobák: 1

Egyéb jellemzők

  • Lift

Hasonló lakás hirdetések

Eladó lakás

Győr

Szitásdomb új építésű, 33 lakásos társasháza exkluzív lehetőséget ...

Eladó lakás

Győr

Győr-Nádorvárosban 25 lakásos liftes társasház első emeletén, 49 m² ...

Eladó lakás

Győr

Győr-Nádorvárosban 25 lakásos liftes társasház harmadik emeletén, 49 ...

Eladó lakás

Győr

FIATALOK, IDŐSEK ÉS BEFEKTETŐK FIGYELEM!     GYŐR ...

Hasonló lakás hirdetések

Eladó lakás

Győr

Szitásdomb új építésű, 33 lakásos társasháza exkluzív lehetőséget ...

Eladó lakás

Győr

Győr-Nádorvárosban 25 lakásos liftes társasház első emeletén, 49 m² ...

Eladó lakás

Győr

Győr-Nádorvárosban 25 lakásos liftes társasház harmadik emeletén, 49 ...

Eladó lakás

Győr

FIATALOK, IDŐSEK ÉS BEFEKTETŐK FIGYELEM!     GYŐR ...