Eladó lakás Győr 85 000 000 Ft

Leírás


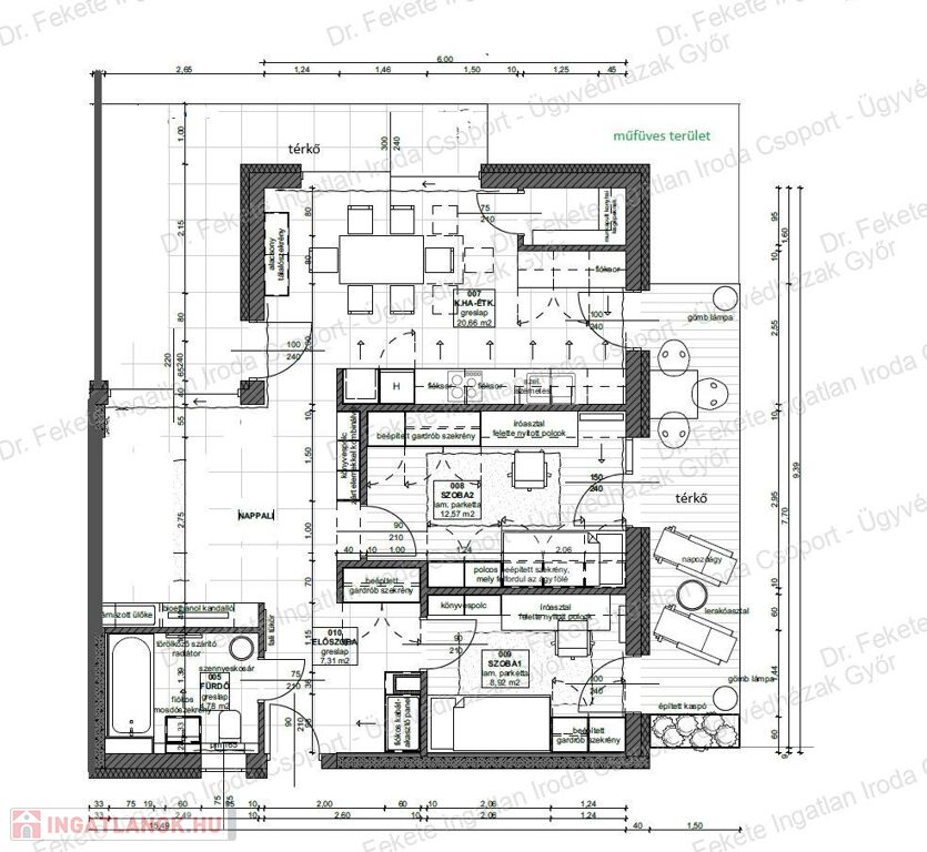
Ne maradjon le! Azonnal költözhető, 2019-es építésű, prémium minőségű lakás eladó Győr–Gyirmóton, az exkluzív Alcedonia Lakóparkban.

Az ingatlan kényelmes elrendezéssel, tágas terekkel és kiváló műszaki tartalommal rendelkezik.

A lakás főbb jellemzői:

71 nm lakótér, frissen festett, letisztult, modern belső kialakítás

Tágas nappali + 2 külön nyíló hálószoba

Teljes bútorzat a vételár részét képezi

Nagy méretű, kényelmes konyha, étkezővel akár 8 fő részére

A konyha Bosch gépekkel felszerelt, a lakás komfortját pedig 2 db Gree klíma biztosítja.

Bútorozott speiz

Világos, ablakos fürdőszoba WC-vel

Kert és terasz – igazi ritkaság, több, közvetlen kijárattal a lakásból.

A lakáshoz összesen 95,68 m² saját kert tartozik, amely magában foglal:

35 m²-es térköves teraszt, gondozott, műfüves, parkosított, körbekerített udvart.

Tökéletes helyszín pihenésre, grillezésre, vagy akár kisgyermekes családok számára.

 

Minőségi műszaki tartalom

háromrétegű műanyag nyílászárók, szúnyoghálóval

kézi és elektromos redőnyök

rejtett led világítás (távirányítós)

előkészített és bekötött riasztórendszer

20 cm-es szigetelés, modern gépészet

házközponti fűtés és vízellátás, egyedi mérőkkel

saját villanyóra

A fenntartási költségek kimagaslóan alacsonyak, a közös költség kedvező.

Parkolás és tárolás

1 db számozott felszíni parkolóhely a lakáshoz rendelve

1 db teremgarázs-beálló + 6 m²-es tároló, külön helyrajzi számon

(+10 M Ft, opcionálisan megvásárolható)

Környezet és elhelyezkedés

A lakópark rendezett, modern, biztonságos, kiváló infrastruktúrával.

Bevásárlóközpontok, főút és autópálya percek alatt elérhetők, mégis csendes és nyugodt lakókörnyezet.

A közelben található az Achilles Park, ahol a 4 hektáros tó déli partján egy 250 méteres homokos strand és füves napozóterület biztosít kikapcsolódási lehetőséget – egyedülálló élményt nyújtva a környék lakóinak is.

 

Videót csatoltam a hirdetéshez!

Várom hívását – tekintse meg személyesen, és győződjön meg a lakás kivételes adottságairól!

Lakás részletei

Ár: 85 000 000 Ft
Méret: 71 négyzetméter
Azonosító: 11586259
Irodai azonosító: 210600635
Cím: Alcedonia Lakópark
Összesített energetikai besorolás: B
Emelet: Földszint
Építőanyag: Tégla
Fűtés jellege: Házközponti (egyedi mérővel)
Ingatlan állapota: Kitűnő
Komfort fokozat: Összkomfort
Építési év: Új építésű
Egész szobák: 3

Egyéb jellemzők

  • Lift

Videók (1)

Hasonló lakás hirdetések

Eladó lakás

Győr

Győr történelmi belvárosában, az egyik legszebb belső udvarral rendelkező, ...

Eladó lakás

Győr

Újszerű, kertkapcsolatos, FÖLSZINTI lakás eladó Győr–Révfalu ...

Eladó lakás

Győr

Győr Nádorváros városrészében, csendes környezetben eladó egy 70 m²-es, ...

Eladó lakás

Győr

Győrben, a Szitásdomb lakóparkban keresi új tulajdonosát ez a rendkívül ...

Hasonló lakás hirdetések

Eladó lakás

Győr

Győr történelmi belvárosában, az egyik legszebb belső udvarral rendelkező, ...

Eladó lakás

Győr

Újszerű, kertkapcsolatos, FÖLSZINTI lakás eladó Győr–Révfalu ...

Eladó lakás

Győr

Győr Nádorváros városrészében, csendes környezetben eladó egy 70 m²-es, ...

Eladó lakás

Győr

Győrben, a Szitásdomb lakóparkban keresi új tulajdonosát ez a rendkívül ...