Eladó lakás Győrújbarát 66 500 000 Ft

Leírás


Modern, energiatakarékos, igényes otthon vár rátok a Hegyalja Lakóparkban, Győrújbaráton.

Vásárolj beruházótól! – Menj biztosra, foglald le most, még 3 db ingatlan közül választhatsz fűtéskészen. 

Kulcsrakész befejezés is igényelhető: 110.000 Ft / nm,  külön műszaki leírás alapján.

A saját otthon nem álom – most kedvező feltételekkel, akár 50 M Ft hitellel 3%-os kamattal, az Otthonteremtési Hitelprogrammal és a Babaváró támogatással.

 

Elérhető ingatlanok:

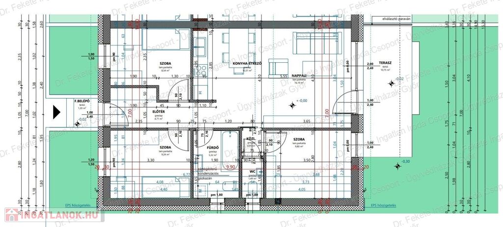
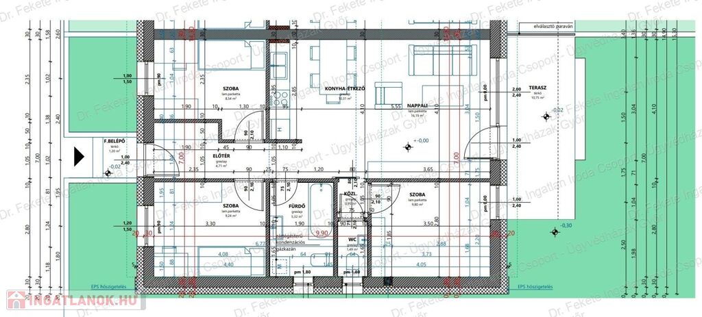
B tömb - L2 - középső lakás– fűtéskész átadás: 2026. április vége

Nettó lakótér: 66,55 nm + 14,3 nm terasz + 72 nm saját kert.

Fűtéskész ár: 66.500.000 Ft + felszíni gk. beálló: + 2.500.000 Ft

 

A tömb - L1- szélső lakás - fűtéskész átadás: 2026. október vége

Nettó lakótér 66,55 nm + 10,75 nm terasz + 195 nm saját kert

Fűtéskész ár: 69.500.000 Ft + felszíni gk. beálló: + 2.500.000 Ft

 

A tömb - L2 - középső lakás - fűtéskész átadás: 2026. október vége

Nettó lakótér: 66,55 nm + 14,3 nm terasz + 70 nm saját kert

Fűtéskész ár: 66.500.000 Ft felszíni gk. beálló: + 2.500.000 Ft



Minden lakás mérete megegyezik, csak a kert mérete változó. (Lásd alaprajzok)

 

Műszaki Tartalom

•          Beton alapozás, tégla teherhordó falazat, 20 cm-es külső szigetelés

•          Magas tetős kialakítás, komplett tetőszerkezettel, ereszcsatornával

•          Aljzatbeton elkészítve, egyenletes, burkolásra előkészített felülettel

•          6 m2-es padlástér   

•          A nappaliban a klíma beltéri egységnek csordalékvíz elvezetés kiépítés

•          Elektromos redőny előkészítés

•          Elektromos hálózat alapszerelve. A lakások csatlakozási teljesítménye 1x32 A

•          Külön mérőóra kialakítás minden lakáshoz

•          3 rétegű hőszigetelt nyílászárók (u=0,7), bejárati ajtó: MABISZ minősítésű

•          BOSCH kondenzációs kazán az optimalizált padlófűtéshez

•          A fürdő és WC rendkívül hatékony kürtős szellőztetést kap a középső lakásban,

•          A szélső lakások természetes szellőzést biztosító ablakkal ellátottak

•          A kertkapcsolat átlapolt 220cm átláthatatlan antracit kerítéssel készül

•          Bejáratnál csengő, világítás lámpával, az ehhez tartozó kapcsoló kerül kialakításra

•          Modern, esztétikus színezés

•          Víz- és szennyvízhálózat kiépítve 1 db kerti csap kiállás a teraszon

 

Külső környezet:

•          járdák,

•          Gépkocsibeállók kockakő burkolattal 2,5 M Ft / db

•          Terasz: fagyálló térkő burkolattal

•          Alkonykapcsolós külső világítás

 

Opcionális tételek:

•         2 KW napelem

•         Gondozásmentes kert

•         gyepszőnyeg telepítés

•         automata öntözőrendszer

•         robotfűnyíró lehetőség

 

 

Ez a projekt tökéletes választás:

•          aki modern, energiatakarékos és igényesen kivitelezett otthont keresnek

•          családosoknak, akik saját igényeik szerint szeretnék befejezni otthonukat

•          befektetőknek, akik értéknövelő lehetőséget keresnek

•          Sétatávolságon belül: üzlet, posta, iskola, óvoda.

 

Kulcs nálam, várom hívásod! +36 20 481 3369 Hartmann-né Viki

 

A hirdetésben szereplő friss képek mellett, a már elkészült / átadott lakásokról készült fotók láthatóak, amelyek a leendő ingatlanod méretével azonosak.

A képek és a látványképek az értékesítés célját szolgálják.

 

Lakás részletei

Ár: 66 500 000 Ft
Méret: 74 négyzetméter
Azonosító: 11559823
Irodai azonosító: 210600624
Cím: VERESS P. (B tömb L2) KÖZÉPSŐ
Összesített energetikai besorolás: B
Emelet: Földszint
Építőanyag: Tégla
Fűtés jellege: Egyéb
Ingatlan állapota: Kitűnő
Komfort fokozat: Összkomfort
Építési év: Új építésű
Egész szobák: 4

Egyéb jellemzők

  • Lift

Hasonló lakás hirdetések

Eladó lakás

Győrújbarát

Modern, energiatakarékos, igényes otthon vár rátok a Hegyalja ...

Eladó lakás

Győrújbarát

Modern, energiatakarékos, igényes otthon vár rátok a Hegyalja ...

Hasonló lakás hirdetések

Eladó lakás

Győrújbarát

Modern, energiatakarékos, igényes otthon vár rátok a Hegyalja ...

Eladó lakás

Győrújbarát

Modern, energiatakarékos, igényes otthon vár rátok a Hegyalja ...