Eladó lakás Gyula 52 300 000 Ft

Leírás

Gyula belvároshoz közel, mégis parkosított környezetben új építésű lakások eladók! Döntse el Ön hogy milyen legyen! Mi adjuk a terveket, Ön választhatja ki a belső elrendezést és a stílust. Formája saját ízlésére!

Íme a paraméterek:
Lokáció: az ingatlan frekventált helyen található, közel a belvároshoz, de ha nyugodt környezetre vágyik, a közeli parkban ezt is megtalálja.
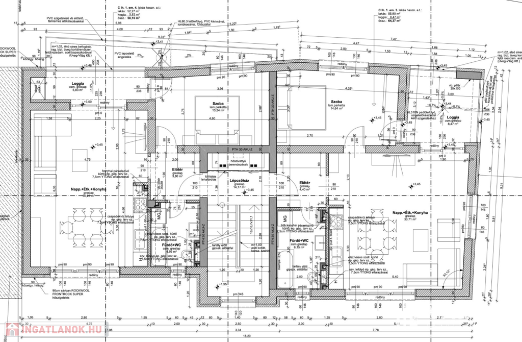
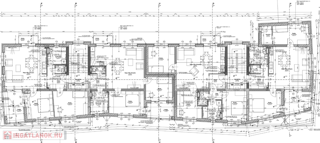
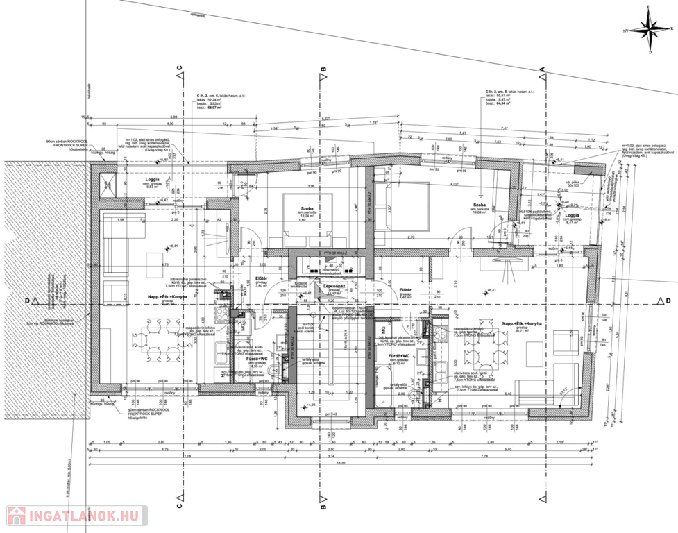
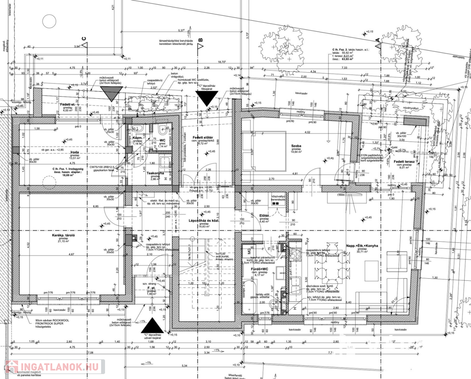
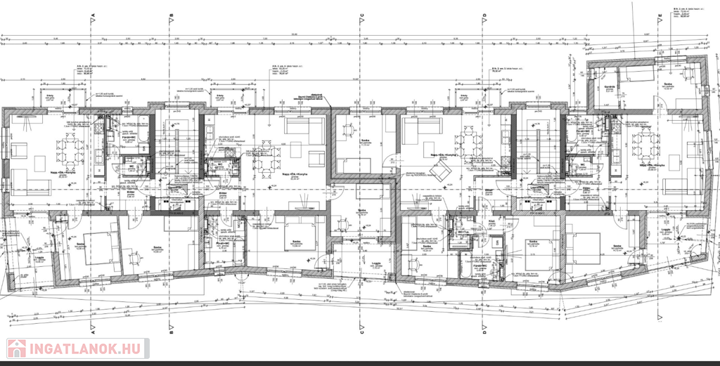
Ingatlanok: 2 épületrészből álló, kétszintes társasházban 13 lakás és 9 garázs mellett 3 iroda is ki lesz alakítva, melyek közül néhány már gazdára talált.
Lakások, melyek még eladó sorban vannak:
1. emeleti ingatlanok:
- alapterület: 78,32 nm-es (amerikai konyhás nappali+3 szoba, 2 fürdőszoba, erkély), 82 nm-es (amerikai konyhás nappali+2 szoba, gardrób, loggia, WC, fürdőszoba), 64,37 nm (amerikai konyhás nappali+1 szoba, előtér, fürdőszoba, loggia), 58,1 nm (amerikai konyhás nappali+1 szoba, előtér, fürdőszoba, loggia)
2. emeleti ingatlanok:
- alapterület: 78,32 nm-es (amerikai konyhás nappali+3 szoba, 2 fürdőszoba, erkély), 82 nm-es (amerikai konyhás nappali+2 szoba, gardrób, loggia, WC, fürdőszoba), 64,34 nm (amerikai konyhás nappali+1 szoba, előtér, fürdőszoba, loggia), 58,07 nm (amerikai konyhás nappali+1 szoba, előtér, fürdőszoba, loggia)
műszaki paraméterek:
- műanyag nyílászárók 3 rétegű üvegezéssel, alumínium redőnyökkel
- vasbeton lábazat AUSTROTHERM szigeteléssel
- 30 cm-es tégla falazat, 12 cm-es külső hőszigeteléssel
- 14 cm-es födémszigetelés
- lakások között 25 cm vastag hanggátló falak
- fűtés: hőszivattyú, padlófűtés, hűtő-fűtő klíma
- 32 A lakásonként
Garázsok melyek még eladó sorban vannak:
- 4 db 17 nm alapterületű és 1 db 18,74 nm alapterületű
- beton lábazat, 30 cm-es tégla falazat, külső hőszigeteléssel
- elektromos HÖRMANN garázskapuval
- saját villanyórával
Irodák:
Földszinten:
- 28,89 nm (iroda+mosdó, kézmosó)
- 39,26 nm (iroda, tároló, teakonyha, mosdó, kézmosó)
- 18,69 nm (iroda, tároló, teakonyha, mosdó, kézmosó)
műszaki paraméterek: a lakásokkal megegyezően

Az ingatlanok a fenti műszaki tartalommal kerülnek átadásra, kulcsrakészen, melynek ára 900.000 Ft/nm.

A beruházás megkezdésének tervezett időpontja 2025.12. hó.

Az engedélyes tervek rendelkezésre állnak, melyek megtekinthetőek irodánkban előre egyeztetett időpontban.

Jöjjön el! Álmodja meg és legyen részese a kivitelezésnek! Olyan lesz, amilyennek Ön szeretné!

További részletekkel kapcsolatban várom hívását!
(További képekért és információkért kérem hívjon!)

Lakás részletei

Ár: 52 300 000 Ft
Méret: 58 négyzetméter
Azonosító: 11541859
Irodai azonosító: 696372
Erkély mérete: 6.00 négyzetméter
Építőanyag: Tégla
Fűtés jellege: Hőszivattyú
Ingatlan állapota: Kitűnő
Komfort fokozat: Összkomfort
Egész szobák: 2
Nappalik: 1

Egyéb jellemzők

  • Erkély
  • Garázs
  • Klíma
  • Lift
  • Pince
  • Kertkapcsolat

Hasonló lakás hirdetések

Eladó lakás

Gyula

Eladó Újszerű Tégla Lakás Gyula Fürdőövezetében. Otthonnak és apartmannak ...

Hasonló lakás hirdetések

Eladó lakás

Gyula

Eladó Újszerű Tégla Lakás Gyula Fürdőövezetében. Otthonnak és apartmannak ...