Eladó lakás Hatvan 46 500 000 Ft

Leírás


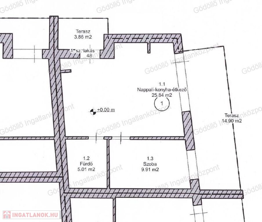
Hatvan központhoz közeli részén megbízható referenciákkal rendelkező építő által, kizárólag minőségi anyagok felhasználásával épült 41nm-es teraszkapcsolatos lakás eladó!

Műszaki paraméterek:

- 30-as tégla falazat + 15cm vastag dryvit szigetelés, 

- monolit vasbeton födém,

- 22-27cm tetőszigetelés, 

- 3 réteg üvegezésű hőszigetelt nyílászárók fehér műanyag tokban,

- több ponton záródó műanyag bejárati ajtó,

- kívül műkő vagy műanyag párkány, belül gipszkarton fehér festéssel,

- kondenzációs gázkazán padlófűtéssel, 

- 3,5 kW-os inverteres hűtő-fűtő klíma,

- 1,32A áram,

- napelem előkészítés,

- beépített szekrények.

Elosztás: 

- nappali-konyha-étkező, egy szoba, zuhanyzós fürdőszoba-Wc + 14,9nm terasz

Telek:

- kiskaputól a bejáratig térkő borítás,

- a kert durva tereprendezéssel, teljes építkezésben keletkező hulladék elszállítással kerül átadásra,

- a közös területek parkosítása a látványtervek szerint lesz megvalósítva,

- parkoláshoz térkövezet kocsibeálló áll majd rendelkezésre,  

- a kert előregyártott betonelemes kerítéssel elválasztva, utcafronton színes WPC szegmensekkel szerelt kerítéssel

Nagyon jó környék, a városközpont, iskola, óvoda, bevásárlási lehetőség stb. autóval kb. 5 percre van. 

Az ingatlant számos referenciával rendelkező, megbízható kivitelező építi! 3%-os Otthon Start hitel, CSOK+ és ehhez kapcsolódó kedvezmények igénybe vehetők!

A lakóparkban több társasház is kialakításra kerül! Bővebb információkért hívjon bizalommal! 

Irányár: 46,5Mft

Hivatkozási szám: 2518279.

Megtekinthető telefonos időpont egyeztetés alapján:

Sápi Tamás +36 20 944-7025 sapitamas@godolloi.hu 

GÖDÖLLŐ INGATLANKÖZPONT - www.godolloi.hu: Gödöllő és környéke legnagyobb ingatlan választéka /Gödöllő, Szada, Veresegyház, Kistarcsa, Kerepes, Erdőkertes/ eladó-kiadó családi ház, telek, lakás! Ingatlan építés és felújítás!

Lakás részletei

Ár: 46 500 000 Ft
Méret: 41 négyzetméter
Azonosító: 11605195
Irodai azonosító: 2518282
Építőanyag: Tégla
Fűtés jellege: Központi
Ingatlan állapota: Kitűnő
Komfort fokozat: Összkomfort
Építési év: Új építésű
Egész szobák: 2

Egyéb jellemzők

  • Lift

Hasonló lakás hirdetések

Eladó lakás

Hatvan

Hatvan központhoz közeli részén megbízható referenciákkal ...

Eladó lakás

Hatvan

Hatvan központhoz közeli részén megbízható referenciákkal ...

Eladó lakás

Hatvan

TELJES KÖRŰEN FELÚJÍTOTT, BELSŐ KÉTSZINTES SORHÁZI LAKÁS HATVAN ÓHATVAN ...

Eladó lakás

Hatvan

Hatvan központhoz közeli részén megbízható referenciákkal ...

Hasonló lakás hirdetések

Eladó lakás

Hatvan

Hatvan központhoz közeli részén megbízható referenciákkal ...

Eladó lakás

Hatvan

Hatvan központhoz közeli részén megbízható referenciákkal ...

Eladó lakás

Hatvan

TELJES KÖRŰEN FELÚJÍTOTT, BELSŐ KÉTSZINTES SORHÁZI LAKÁS HATVAN ÓHATVAN ...

Eladó lakás

Hatvan

Hatvan központhoz közeli részén megbízható referenciákkal ...