Eladó lakás Hatvan 65 990 000 Ft

Leírás

ÚJ ÉPÍTÉSŰ LAKÁS HATVAN SZÍVÉBEN!


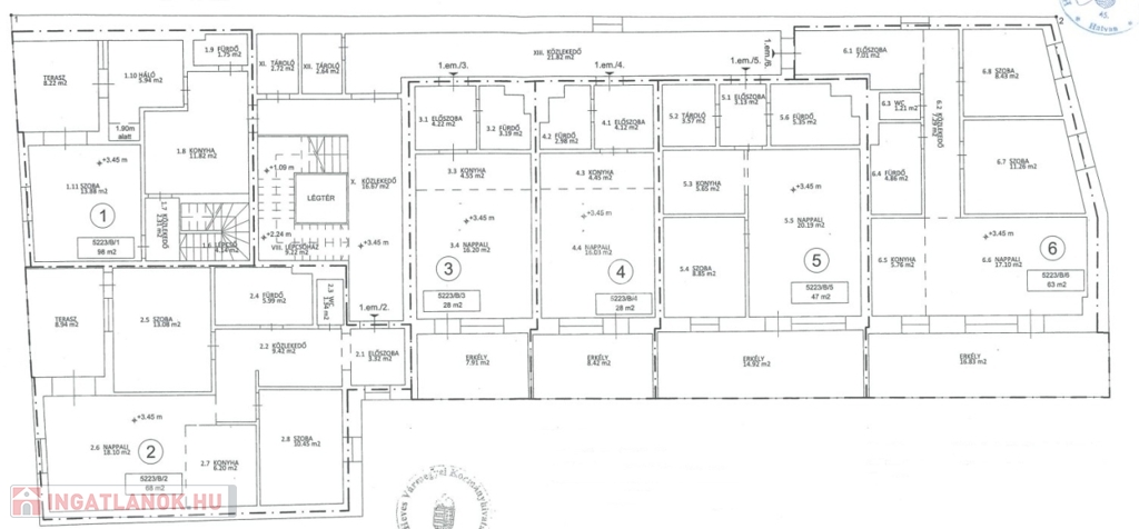
Megvételre kínálok Hatvan központi városrészén, újépítésű, 12 lakásos, 2 emeletes társasház első emeletén egy nettó 68 nm, bruttó 77 nm-es igényes kivitelezésű lakást, melyhez 9 nm erkély tartozik..


Az alaprajzon L1.2 szám alatt található, a teljes átadás 2025-ben történt meg!

AZONNAL KÖLTÖZHETŐ!

Az árban benne van egy fedett gépjármű tároló, valamint egy 3 nm-es, zárt tároló is.

Használatba vételi engedéllyel, Társasházi alapító okirattal és érvényes földhivatali bejegyzéssel rendelkezik, energetikai besorolása A+.

Az utolsó 3 lakás egyike, a többi értékesítésre került. A társasházban Közjegyzői iroda működik, mely bármilyen ügyben várja az ügyfeleket.

Az ingatlan műszaki leírása:
- Alapozás: Vasbeton lemez alap, a fő falak alatt megvastagítással. Vasbetonpilléres alsó erősítéssel. C30/37-s betonnal.

- Szigetelés: vízszintes talajpára elleni szigetelés GV35-ös bitumenes lemezzel. Az épület külső falai utólagos hőszigetelést kapnak, 15 cm vastag Polisztirol keményhab hőszigetelő lapra üvegháló kapart nemes vakolat kerül. Tartófalak: A külső teherhordó falak Porotherm
Rapid Dryfix, N+F falazó elemek, 30 cm vastagságban.

- Födém: Monolit vasbeton födém, építészeti statikai terv alapján.

- Tetőszerkezet: Szeglemezes tetőszerkezet, elsőosztályú fenyőből. Az eresz látható szaruzattal kb. 50 cm túllógással felűről lambéria burkolattal. A felhasznált faanyag gomba-mentesítővel kezelve. A fedélszék a koszorúhoz csavarozott mérnöki kapcsoló elemekkel van rögzítve.

- Tetőhéjalás: A tető téglány színű Bramac Protector cserépfedést kap. A tetőlécezés alá hálóerősített párazáró alátétfólia kerül.

- Bádogozás: Bádogos szerkezetek horganyzott lemezből készülnek, csapadékvíz összegyűjtése és levezetése függőeresz csatornával van kivitelezve.

- Válaszfal: A válaszfalak 10 cm vastag Ytongból készülnek.

- Belső falazat borítása: Két oldali mészvakolattal. A nyílások körül és a pozitív sarkokon él védők felhelyezése. A belső falak glettelve, 2 rétegben, fehér színű festéssel.

- Lépcsőházi lépcső: A lépcső gipszbetonból készült, csúszásmentes fagyálló kerámia burkolattal ellátva.

- Bejárati ajtó: Fehér színű műanyag esztétikus megjelenésű, a tűzvédelmi előírásoknak és a MABISZ elvárásoknak megfelelő biztonsági ajtó, felülvilágító ablakkal. Ablak könyöklők: Kívül-belül műanyag párkányok fehér színben.

- Nyílászárók: Az ablakok műanyag szerkezetűek, (bukó-nyíló, illetve fix kialakítással) 3 rétegű üveggel, fehér színben.
Ablakok körül 2-3 cm XPS hőszigetelő fogadószerkezet beépítésével. A belső ajtók MDF típusúak, kilincsel együtt.

- Épület homlokzata: Tört fehér színű kapart nemes vakolat, bézs színű díszítőelemekkel.

- Vízellátás: A telekhatárnál elhelyezett vízmérő aknában történik. A külső nyomóvezeték anyaga KPE műanyag nyomócső, a vízmérőtől az épületig földbe fektetve van vezetve. A melegvíz ellátás hőszivattyús rendszerrel biztosított.

- Fűtés: A lakásokban padlófűtés kerül kialakításra. A fürdőszobákban 1 db törölközőszárító radiátor került telepítésre. A fűtés vezetékek az aljzatban szerelt, védőcsőben, vagy szigetelő csőhéjban vezetett oxigéndiffúzió mentes 5 rétegű betétes csövek szerelve. A nappali helységben 1 db szoba termosztát kerül elhelyezésre.


Hitel? Támogatás? CSOK ügyintézés?
Irodánk ingyenes hitelügyintéző szolgáltatásával JOBBAN JÁR, mintha közvetlenül a bankban igényelne!

- egyedi, bankfiókban nem elérhető kamat és díjkedvezmények
- hitelképesség vizsgálat
- idő, energia és pénz megtakarítás
- teljes hivatali ügyintézés

Amennyiben hirdetésem felkeltette érdeklődését, várom hívását a normál munkaidő után vagy akár hétvégén is! S.S.

Lakás részletei

Ár: 65 990 000 Ft
Méret: 68 négyzetméter
Azonosító: 11555900
Irodai azonosító: 385904
Cím: Központi, mégis csendes helyen
Emelet: 1. emelet
Építőanyag: Tégla
Fűtés jellege: Hőszivattyú
Ingatlan állapota: Kitűnő
Komfort fokozat: Összkomfort
Építési év: Új építésű
Tulajdonviszony: Saját
Kilátás: utcai
Egész szobák: 2

Egyéb jellemzők

  • Erkély
  • Garázs
  • Lift
  • Pince
  • Tároló

Térkép

Hasonló lakás hirdetések

Eladó lakás

Hatvan

NAGY TEREK, REMEK ELHELYEZKEDÉS! Megvételre kínálok Hatvan központi városrészén, ...

Hasonló lakás hirdetések

Eladó lakás

Hatvan

NAGY TEREK, REMEK ELHELYEZKEDÉS! Megvételre kínálok Hatvan központi városrészén, ...