Eladó lakás Hódmezővásárhely 44 900 000 Ft

Leírás

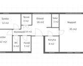
Hódmezővásárhelyen a Kálvin tér szomszédságában eladó, vagy szegedi panellakásra cserélhető egy szép állapotú, tágas napfényes tetőtéri lakás. Bruttó alapterülete 105 m2, nettó 80 m2 /az 1,9 m magasság által bezárt alapterület/.
Részletek:
-A lakás tégla falazatú, szépen karbantartott, lakható állapotú
-Lépcsőház tiszta, rendezett, jó lakóközösség
-Fűtése központi fűtés kondenzációs kazánnal, ami a meleg vizet is szolgáltatja + klíma
-Tetőtéri ablakok kicserélve
-Lakható állapotú, festés után azonnal költözhető
-Tehermentes, 1/1 tulajdon
-Közeli belváros, piac és boltok, óvoda, iskola, tram-train megálló és a buszállomás is 3 percen belül található
-CsOK Plusz Hitelre, 3 %-os Start Plusz Hitelre is alkalmas!
-Itt mindenki megtalálja a saját életterét, ahol nem zavarja a másikat: tágas, világos lakás kellemes belső térrel
-Az alagsorban 2 db saját tároló tartozik a lakáshoz
-Parkolás az utcán ingyenes

A lakás irányára: 44,9 M Ft
Ha megtetszett az ingatlan, hívjon és nézze meg élőben is!
Tisztelettel: Gonda Ildikó
Ingatlanértékesítő Városi Ingatlaniroda
Telefon : nulla hat hetven hatszáztizenkettő negyvenegy negyvenkettő
e-mail : gonda.ildiko@varos.hu

Irodánk készséggel áll ügyfeleink rendelkezésére nem csak ingatlanügyekben, de hitelügyintézésben is : 3 %-os fix kamatozású Otthon Start hitel, CSOK Plusz hitel, Falusi CSOK, egyéb jelzáloghitelek, babaváró kölcsön, szabad felhasználású hitelek, személyi kölcsön, jogi ügyekben /ügyvéd/ és energetikai tanúsítvány készítésében is /energetikus/.
(További képekért és információkért kérem hívjon!)

Lakás részletei

Ár: 44 900 000 Ft
Méret: 80 négyzetméter
Azonosító: 11581870
Irodai azonosító: 394595
Építőanyag: Tégla
Fűtés jellege: Cirkó
Ingatlan állapota: Kitűnő
Komfort fokozat: Összkomfort
Egész szobák: 3
Nappalik: 1

Egyéb jellemzők

  • Erkély
  • Garázs
  • Klíma
  • Lift
  • Pince
  • Kertkapcsolat

Hasonló lakás hirdetések

Eladó lakás

Hódmezővásárhely

Belvárosi, napfényes, azonnal költözhető tégla lakás Hódmezővásárhely ...

Eladó lakás

Hódmezővásárhely

Hódmezővásárhelyen, az Andrássy úton, eladó a Konstantin-palota patinás ...

Eladó lakás

Hódmezővásárhely

Vásárhelyen az Eszperantó utcában kínálom eladásra ezt az 55 m2-es 2. ...

Eladó lakás

Hódmezővásárhely

KERTVÁROSI KÖRNYEZET!KULCSRAKÉSZ LAKÁSOK AZ ÖN KÉNYELMÉRE TERVEZVE! Hódmezővásárhely, ...

Hasonló lakás hirdetések

Eladó lakás

Hódmezővásárhely

Belvárosi, napfényes, azonnal költözhető tégla lakás Hódmezővásárhely ...

Eladó lakás

Hódmezővásárhely

Hódmezővásárhelyen, az Andrássy úton, eladó a Konstantin-palota patinás ...

Eladó lakás

Hódmezővásárhely

Vásárhelyen az Eszperantó utcában kínálom eladásra ezt az 55 m2-es 2. ...

Eladó lakás

Hódmezővásárhely

KERTVÁROSI KÖRNYEZET!KULCSRAKÉSZ LAKÁSOK AZ ÖN KÉNYELMÉRE TERVEZVE! Hódmezővásárhely, ...