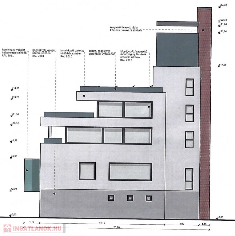
Kaposváron a belváros közvetlen közelében található területre tervezett projekt - 8 lakásos társasház, további 2 irodával és 9 garázzsal, amelyek teljes alapterülete 1.305,95 m2 - építési engedéllyel, tervrajzokkal együtt eladó. A megadott ár nettóban értendő! A tulajdonos esetleg cserét is beszámít, illetve nyitott az épületben kialakításra kerülő lakás(ok)-ért cserébe átadni a projketet!
Amennyiben az ingatlan felkeltette az érdeklődését, kérem hivatkozzon a 12. számú ajánlatra! Irodánk címe: 7400 Kaposvár Irányi D. u. 9.
| Ár: | 116 000 000 Ft |
| Méret: | 1 306 négyzetméter |
| Azonosító: | 11485813 |
| Irodai azonosító: | 12 |
| Cím: | Nemzetőr sor utca |
| Városrész: | Északnyugati városrész |
| Építőanyag: | Tégla |
| Fűtés jellege: | Geotermikus |
| Ingatlan állapota: | Kérdezzen rá a hirdetőtől » |
| Egész szobák: | 24 |
Ingatlanhírek kéthetente, e-mailben. Iratkozzon fel hírlevelünkre!