Eladó lakás Kaposvár 49 700 000 Ft

Leírás

Kaposváron a keresett és kedvelt Csillagfény lakópark 2. ütemében, magával ragadó zöld környezetben kínálok megvételre egy új építésű társasházi lakást.

Különleges akció keretében, az önerővel (szakaszos finanszírozással) történő vásárlás esetén most a vételár 4%-a elengedésre kerül.

A festői szépségű Tókaji parkerdő ölelésében található ingatlantól a belváros gépkocsival pár perc alatt elérhető.
A megvalósuló zárt lakópark és környezete ideális feltöltődésre, pihenésre, minden generáció számára egyaránt remek életteret biztosíthat.

A második első ütemben épülő 11 lakásos, 3 szintes társasház minőségi anyagokból és korszerű műszaki tartalommal kerül kivitelezésre.

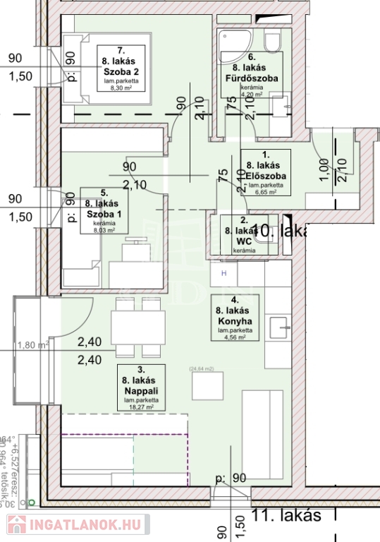
A lakások a jól átgondolt, ötletes tervezésnek köszönhetően élhető tereket kaptak, elosztásuk nagyszerű.

A B8 megjelölésű második emeleti lakás 51,4 m2 alapterületű. Az amerikai konyhás nappalin túl 2 szoba, fürdőszoba, mellékhelyiség, és előszoba kapott teret a lakásban. A közösségi térből közelíthető meg a 2 m2-es erkély.

A közel nulla hőveszteségű társasházba beépítésre kerülő nyílászárók korszerű 3 rétegű üvegezéssel lesznek ellátva, a fűtésről (és a hűtésről is) alacsony fogyasztású, magas SCOP értékű, H tarifával szerelt klímák gondoskodnak majd, így a lakások várható fenntartási költsége kifejezetten alacsony lesz.

A lakások melegvíz ellátását energiahatékony okos bojlerek biztosítják.

Az erkélyre vezető nyílászárók elektromosan vezérelhető redőnyt kapnak.

A választható beltéri nyílászárók és a burkolatok is a minőséget és a mai kornak megfelelő esztétikát képviselik.

A lakáshoz tároló (3 m2) 1.350.000.Ft, míg beállóhely 1.530.000. Ft ellenében vásárolható.

A társasház átadási határideje: 2027.első negyedéve.

További információért forduljon hozzám bizalommal!

Lakás részletei

Ár: 49 700 000 Ft
Méret: 52 négyzetméter
Azonosító: 11563890
Irodai azonosító: 386753
Cím: Természetközeli új építésű otthon
Emelet: 2. emelet
Építőanyag: Tégla
Fűtés jellege: Hőszivattyú
Ingatlan állapota: Épülő
Komfort fokozat: Összkomfort
Építési év: Új építésű
Tulajdonviszony: Saját
Kilátás: kertre néző
Egész szobák: 3

Egyéb jellemzők

  • Erkély
  • Garázs
  • Lift
  • Pince
  • Tároló

Térkép

Hasonló lakás hirdetések

Eladó lakás

Kaposvár

Kaposváron a keresett és kedvelt Csillagfény lakópark 2. ütemében, magával ...

Eladó lakás

Kaposvár

Kaposváron a keresett és kedvelt Csillagfény lakópark 2. ütemében, magával ...

Eladó lakás

Kaposvár

Befektetők, otthonkeresők figyelem, hiányt pótló építkezés Kaposvár ...

Eladó lakás

Kaposvár, Belváros

Kaposváron a belvárosban, a Rákóczi téren - közvetlenül a Csiky Gergely ...

Hasonló lakás hirdetések

Eladó lakás

Kaposvár

Kaposváron a keresett és kedvelt Csillagfény lakópark 2. ütemében, magával ...

Eladó lakás

Kaposvár

Kaposváron a keresett és kedvelt Csillagfény lakópark 2. ütemében, magával ...

Eladó lakás

Kaposvár

Befektetők, otthonkeresők figyelem, hiányt pótló építkezés Kaposvár ...

Eladó lakás

Kaposvár, Belváros

Kaposváron a belvárosban, a Rákóczi téren - közvetlenül a Csiky Gergely ...