Eladó lakás Keszthely 63 000 000 Ft

Leírás

Gold Balaton Home Ingatlaniroda megvételre kínálja a 2400 46661-es sorszámú KESZTHELYI POLGÁRI LAKÁST.

Keszthely belvárosától és a városi strandtól pár száz méterre, a park közelében, tradicionális polgári villanegyedben egy első emeleti, erkélyes, polgári lakás eladó.

A Hévízi-tótól 7 000 méterre, a legközelebbi strandtól a Balatonon 500 méterre helyezkedik el.

Figyelem most árcsökkenés: 70 MFt-ról 63 MFt-ra !!!

Műszaki paraméterek:

- 1920-ban épült téglából, 1995 – központi fűtés lett kialakítva, 2000-ben fel lett újítva a villamos hálózat, 2002-ben a homlokzat

- a tető fedése: cserép

- alapterület: 87 nm, telek mérete: 804 nm

- jelenleg irodaként van használva, helyiségei: közlekedő, 3 + 1 szoba, tároló, teakonyha, WC, erkély

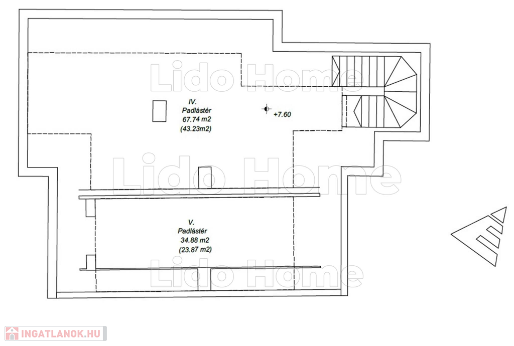
- padlástér: nettó 67,1 m2, amelyből 24 m2 hasznos alapterületű tető ablakos tér már beépített része a lakáshoz tartozik - a lépcsőházból közelíthető meg

- nyílászárók: eredeti fa nyílászárók, utcafronton redőnnyel ellátva

- fűtés gázkazán, hő leadó típusa – radiátor; meleg víz: villanybojler

- parkolási lehetőség: utcán

Az ingatlan egyéb jellemzői:

- tároló az udvaron, 6,5 m2

- kerítéssel határolt telek

- közkedvelt utcában helyezkedik el, strand, központ, közintézmények, iskolák - gyalogosan elérhető közelségben

Az ingatlant továbbra is lehet irodaként használni vagy átalakítást követően állandó lakhatásra vagy nyaralásra, elhelyezkedése miatt befektetésnek is kitűnő lehetőség!

Amennyiben hirdetésem felkeltette érdeklődését, kérem keressen bizalommal.

Irodánk szolgáltatásai igény esetén: ügyvéd, energetikai tanúsítvány, hitelügyintézés, értékbecslés, statikus, földmérő, belsőépítész

Biztonság, szakértelem - GOLD BALATON HOME - „Élj ott, ahol mások nyaralnak”

Lakás részletei

Ár: 63 000 000 Ft
Méret: 87 négyzetméter
Azonosító: 11532056
Irodai azonosító: 240046661
Emelet: 1. emelet
Építőanyag: Tégla
Fűtés jellege: Cirkó
Ingatlan állapota: Átlagos
Építési év: 50 évesnél régebbi
Kilátás: udvari
Egész szobák: 3
Fél szobák: 3

Egyéb jellemzők

  • Erkély

Hasonló lakás hirdetések

Eladó lakás

Keszthely

Eladó Keszthely belvárosában, a Fő tér és a piac közelében földszinti, ...

Eladó lakás

Keszthely

A Gold Balaton Home Ingatlaniroda megvételre kínálja a 2400 ...

Eladó lakás

Keszthely

A Gold Balaton Home Ingatlaniroda megvételre kínálja a 48229-es sorszámú ...

Eladó lakás

Keszthely

Földszinti, erkélyes lakás a nyugati városrészben!A Gold Balaton Home ...

Hasonló lakás hirdetések

Eladó lakás

Keszthely

Eladó Keszthely belvárosában, a Fő tér és a piac közelében földszinti, ...

Eladó lakás

Keszthely

A Gold Balaton Home Ingatlaniroda megvételre kínálja a 2400 ...

Eladó lakás

Keszthely

A Gold Balaton Home Ingatlaniroda megvételre kínálja a 48229-es sorszámú ...

Eladó lakás

Keszthely

Földszinti, erkélyes lakás a nyugati városrészben!A Gold Balaton Home ...