Eladó lakás Komárom 24 750 000 Ft

Leírás

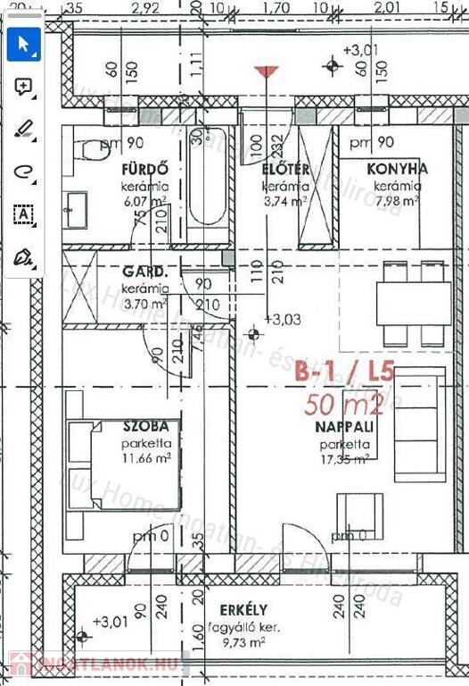
Gyermekváros Lakópark – Értékteremtő otthonok Mártírok útján! (A/B/C Épületek)

A Lux Ingatlaniroda Komárom kínálatából 182501133
számon eladó Komárom, téglalakás jellemzői: 

A Gyermekváros Lakópark Komáromban, a Mártírok útján, közúti forgalom elől elzárt, hatalmas zöld területen helyezkedik el. Élhető, csendes környezet, modern lakásokkal!
Ingatlan Jellemzői és Választható Méretek:

- Lakásméretek: 30 nm-től 45 nm-ig.
- Választható típusok: Erkélyes, loggiás, tetőteraszos, és saját kerttel rendelkező lakások is elérhetők.
- Gépkocsi beálló: Opcionálisan megvásárolható: 2.000.000 Ft/db.

Lakások már 750.000 Ft/nm-től elérhetőek szerkezetkész állapotban, kulcsrakészen pedig 950.000 Ft/nm-től. Loggia, terasz, kert és előkert külön árazás szerint!

A szerkezetkész állapot a következő műszaki tartalommal kerül átadásra.

- Épületgépészeti és villany kiállások adottak.

- Fűtésről klíma gondoskodik. Az 1 szobás ingatlannál 1 kültéri és 1 beltéri egység, az 1,5–2 szobás ingatlanoknál klíma 2 beltéri, 2 kültéri egység szerepel.

- A falak az egész ingatlanban vakoltak, és az aljzat padlófonozva van.

- Antracit színű fém ablakok és erkélyajtók vannak beépítve.

A kulcsrakész felszereltség a következőket tartalmazza:

- Burkolatok (standard parketta és kerámia).

- Lakás festése fehér szín.

- Bejárati ajtó és fa + magasfényű fehér beltéri ajtók.

- Antracit színű fém ablakok és erkélyajtók.

- Meleg víz: olasz bojler.

- Elektromos törölközőszárítós radiátor a fürdőszobában.

- Épített zuhanytálca és zuhanyfal.

- Mosdó és csaptelep (tükör és mosdó alatti szekrény nélkül).-

- Loggiák és teraszok burkolása (kerámia).

- Villanykapcsolók és konnektorok (fehér standard színekben).-

- Kert durva tereprendezése, néhány zöld növény kijelöléssel a telekhatáron.

- Az ár nem tartalmazza a konyhabútort, a gardróbszekrényt és a csillárt.

A fűtésről és hűtésről magas minőségű, fűtésre optimalizált Gree Pro Comfort 2,5-3,5 kW klíma egységek gondoskodnak.

Kedvezményes ár és közüzemi órák:

- A lakások kedvezményes áron (szerkezetkész 700.000 Ft/nm, kulcsrakész 850.000 Ft/nm) vásárolhatók meg minimum 50% előszerződéskori befizetéssel. 

- A közüzemi órák díjmentesen csak 90% előszerződéskori befizetés felett járnak.

Amennyiben a Lux Ingatlaniroda által kínált hirdetés felkeltette az
érdeklődésed, keress bizalommal! Kollégáim díjmentes és bankfüggetlen
hitelügyintézéssel állnak rendelkezésedre. 

Lux Ingatlan - Számolj velünk

Lakás részletei

Ár: 24 750 000 Ft
Méret: 33 négyzetméter
Azonosító: 11594528
Irodai azonosító: 182501137
Építőanyag: Tégla
Ingatlan állapota: Kitűnő
Egész szobák: 1

Hasonló lakás hirdetések

Eladó lakás

Komárom

Alkalmi szerkezeti áron vásárolja meg( 750 000,- Ft/ Nm ) Komárom Gyermekváros ...

Eladó lakás

Komárom

Alkalmi szerkezeti áron vásárolja meg( 750 000,- Ft/ Nm ) Komárom Gyermekváros ...

Eladó lakás

Komárom

ELADÓ ÚJÉPÍTÉSŰ LAKÁSOK KOMÁROMBAN!A lakópark a közúti forgalom ...

Eladó lakás

Komárom

Az Openhouse Komárom Ingatlaniroda kínálatában eladó a #176186 hivatkozási ...

Hasonló lakás hirdetések

Eladó lakás

Komárom

Alkalmi szerkezeti áron vásárolja meg( 750 000,- Ft/ Nm ) Komárom Gyermekváros ...

Eladó lakás

Komárom

Alkalmi szerkezeti áron vásárolja meg( 750 000,- Ft/ Nm ) Komárom Gyermekváros ...

Eladó lakás

Komárom

ELADÓ ÚJÉPÍTÉSŰ LAKÁSOK KOMÁROMBAN!A lakópark a közúti forgalom ...

Eladó lakás

Komárom

Az Openhouse Komárom Ingatlaniroda kínálatában eladó a #176186 hivatkozási ...