Eladó lakás Komárom 35 900 000 Ft

Leírás

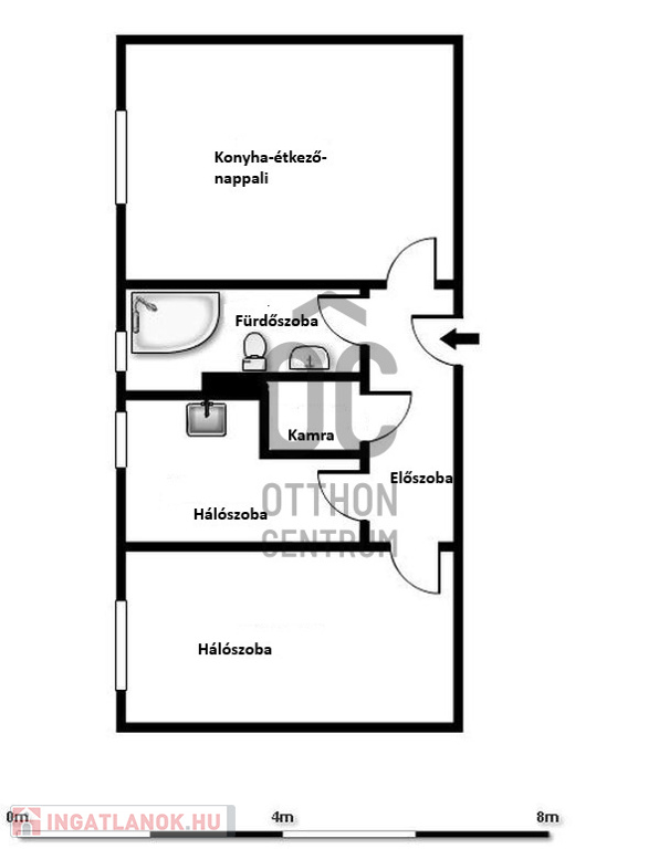
Komárom Molaj-lakótelepen eladó egy 3szobássá alakított magasföldszinti lakás.

A lakás jellemzői:

- 49nm alapterület.

- 3 különnyíló szobával rendelkezik, mivel a konyhából hálószobát alakítottak ki.

- Villanyvezetékeket részleges kicserélték.

- Műanyag ablakokkal rendelkezik.

- Burkolatok előszobában, fürdőszobában járólap, szobákban linóleum és laminált parketta.

- A fűtés és a melegvíz egyéni órákkal mért távhős, termosztáttal vezérelhető.

- A környék igazán csendes, kimondottan zöldövezeti. A társasház mellett park és jól felszerelt játszótér található.

További információért várom hívását!

Lakás részletei

Ár: 35 900 000 Ft
Méret: 49 négyzetméter
Azonosító: 11599478
Emelet: Magasföldszint
Építőanyag: Tégla
Fűtés jellege: Központi (egyedi mérővel)
Ingatlan állapota: Átlagos
Kilátás: utcai
Egész szobák: 3

Egyéb jellemzők

  • Erkély
  • Garázs
  • Lift
  • Kertkapcsolat
  • Tároló
  • Kocsibeálló

Hasonló lakás hirdetések

Eladó lakás

Komárom

Íme egy igazán innovatív termék a lakáspiacon!!! Költözzön vagy fektessen ...

Eladó lakás

Komárom

Alkalmi vételi lehetőség szerkezetkész állapotban 750 000,- Ft/ Nm ) Komárom ...

Eladó lakás

Komárom

Alkalmi vétel szerkezeti négyzetméter áron ( 750 000,- Ft/ Nm ) Komárom ...

Eladó lakás

Komárom

Alkalmi vétel szerkezetkész négyzetméter áron ( 750 000,- Ft/ Nm ) Komárom ...

Hasonló lakás hirdetések

Eladó lakás

Komárom

Íme egy igazán innovatív termék a lakáspiacon!!! Költözzön vagy fektessen ...

Eladó lakás

Komárom

Alkalmi vételi lehetőség szerkezetkész állapotban 750 000,- Ft/ Nm ) Komárom ...

Eladó lakás

Komárom

Alkalmi vétel szerkezeti négyzetméter áron ( 750 000,- Ft/ Nm ) Komárom ...

Eladó lakás

Komárom

Alkalmi vétel szerkezetkész négyzetméter áron ( 750 000,- Ft/ Nm ) Komárom ...