Eladó lakás Komárom 54 954 000 Ft

Leírás

Az Openhouse Tatabánya Ingatlaniroda kínálatában eladó a #171484 hivatkozási számú komáromi társasházi lakás. Az Openhouse Tatabánya Ingatlaniroda kínálatában eladó a #170738 hivatkozási számú komáromi társasházi lakás.

Amennyiben Ön új építésű lakás vásárlásán gondolkodik, NE döntsön amíg ezt a lehetőséget nem nézte meg!!!

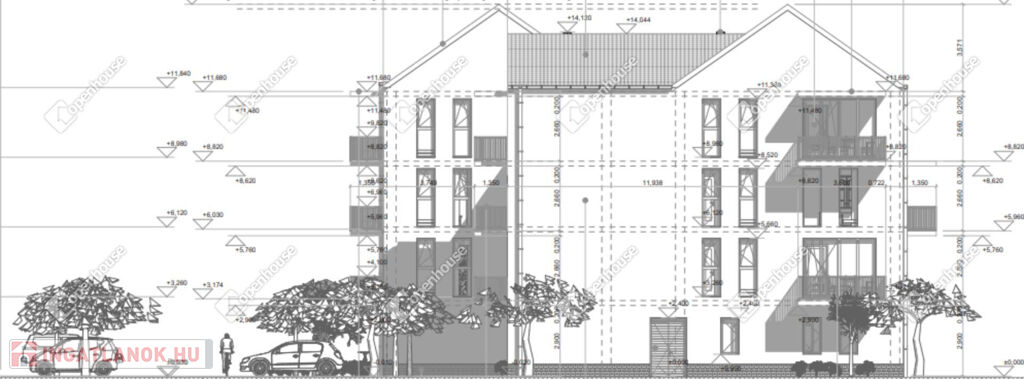
Komáromban épülő új 15 lakásos társasház mely 43nm-67nm-es kialakításúak, 15 tároló egységgel, erkéllyel (egy lakás két erkélyes kivitelezésű)és kültéri térfelszíni gépjármű parkolóval tervezett ingatlan a város központhoz közeli zöldövezeti részén helyezkedik el.

Építészeti tervek szerint az új modern építőanyagoknak, korszerű fűtésrendszernek, a kiváló hőtechnikai jellemzőknek köszönhetően alacsony rezsiköltség várható.

A garzon lakástól a két hálószobás otthonokig itt minden vásárlói igényt kielégítő társasházi lakást megtalál.



Az eladó új építésű komáromi társasházi lakás jellemzői:

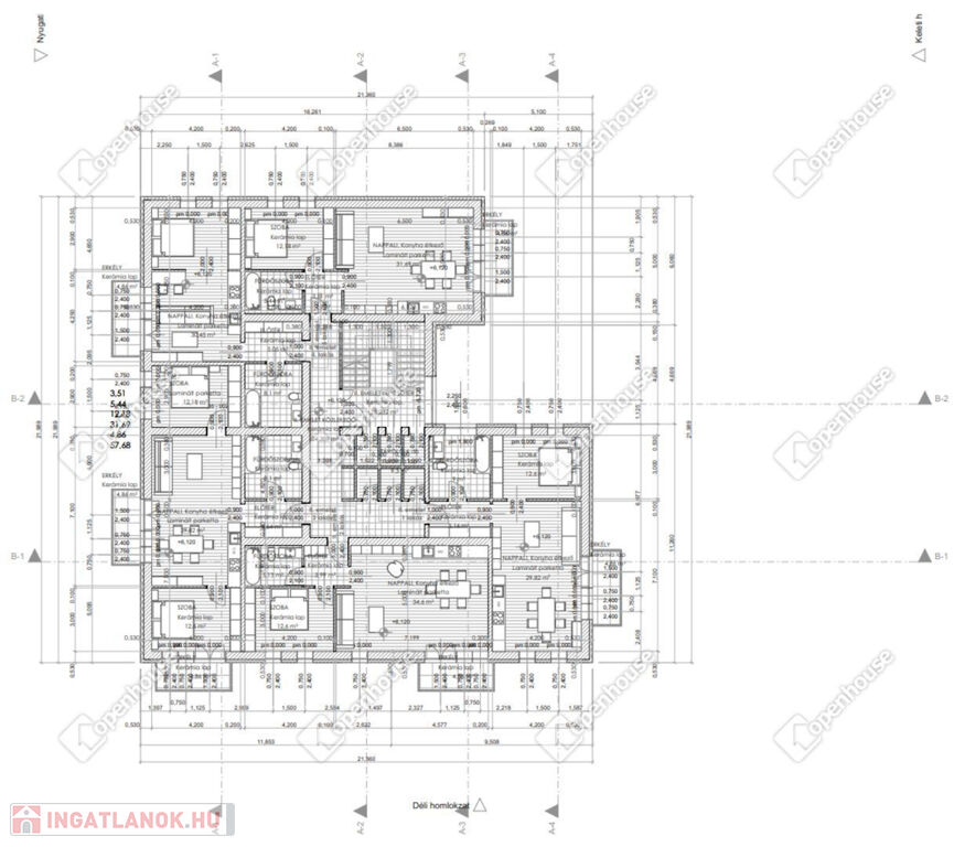
- tervrajzi megjelölés: P/14 (lll.-4.lakás)

- építés éve: 2024.

- fekvése: Észak

- lakás alapterülete: 56.2m2

- erkély alapterülete: 4.86m2

- tároló: 1.5m2

Belső elrendezése: előtér, nappali-konyha-étkező, hálószoba, fürdőszoba, erkély.



Az eladó új építésű komáromi társasházi lakás leírása:

Alapozás:

- az épület alapozása a mértékadó terhek szerint méretezett kútalapozás
- alapozási mélység statikai méretezés szerint -3,00 m

Tartószerkezet:

- az épület teherhordó szerkezete a földszinti épületrészen 38,00 cm égetett kerámia falazóelemek VB pillér merevítésekkel
- merevítő vasbeton pillérek elhelyezése statikai tervnek megfelelően.
- az épület további szintjeinek teherhordó szerkezete 38,00 cm égetett kerámia falazóelem
- az épület szintközi födémjei vasbeton szerkezetek
- a vasbeton födémek vastagsága és vasalása statikai tervnek megfelelően
- az épület szintjei közötti téráthidaló lépcsői vasbeton szerkezetek
- a vasbeton lépcsők kialakítása és vasalása statikai tervnek megfelelően

Homlokzat:

- homlokzatkialakítás homlokzati hőszigetelés DRYVIT rendszerrel CEMIX homlokzati színvakolattal

Válaszfalak:

- az épületben válaszfalak kialakítása 10,00 cm POROTHERM válaszfallap rendszerrel történik
- a válaszfalak egységesen 10,00 cm vtg. falazott falak

- az épületben a lakáselválasztó falak kialakítása 20,00 cm BAKONYTHERM Zaj Stopp 20 N + F hanggátló téglával történik

- a helyiségek glettelt, festett falburkolattal lesznek kialakítva

Padlóburkolatok:

- fürdőszoba: kerámia lap, erkély: fagyálló kerámia, a lakások egyéb helyiségei: laminált parketta

Nyílászárók:

- az nyílászárók 3 réteg hőszigetelő üvegezésű REHAU műanyag profilrendszerű szerkezetek
- üvegezés U minimum 1,1 W/m2K, teljes nyílászáró U minimum 1,4 W/m2K

- belső ajtók: furatolt faforgácslap ajtók átfogókkal, festett kivitelben

Fűtés, meleg víz:

- az épületben a fűtést, levegő-víz hőszivattyús rendszer biztosítja mely padló fűtést és fan-coilokat működtet

Elektromos ellátás:

- áramellátás 1x32 A nappali, H tarifa a hőszivattyú részére villamos hálózat kapcsolókkal és dugaljakkal épül, lámpa előkészítés készül

Tető és víz elvezetés:

- a tetőfedés anyaga hagyományos cserépfedés Terrán Zenit Mars ClimaControl cserép és kiegészítői a szükséges lécezés, ellenlécezés és fóliázás kialakításával Terrán Zenit Mars ClimaControl TÉGLA színben
- az esővíz külső elvezetésű, az esőcsatorna rendszer PREFA rendszerű négyszög keresztmetszettel
- PREFA P. 10. matt világosszürke alumínium négyszögszelvényű ereszcsatorna 400

Gyengeáramú szerelés: - kaputelefon hálózat, TV hálózat, internet hálózat szolgáltató PICK-UP Kft.

Parkolás:

- vásárolható térkő felületű térfelszíni beálló (lakásonként 1db.)


A MEGADOTT ÁR KULCSRAKÉSZ ÁLLAPOTBAN ÉRTENDŐ.

Ingatlan ára: 50.580.000 Ft

Tároló ára: 1.350.000 Ft

Erkély: 4.374.000 Ft

Parkoló ára: 1.500.000 Ft

Összesen: 57.804.000 Ft



Közelben megtalálható élelmiszer bolt, bölcsőde, óvoda, közintézmények, általános és középiskola, illetve pár perces gyaloglásra buszmegálló.

Az M1-es autópálya, a Magyar-Szlovák határátkelő valamint az 1-es számú főútvonal néhány perc alatt elérhető.



Érdeklődés esetén, bővebb információkért várom szíves jelentkezését,

Nagy Veronika

Értékesítő Ha felkeltette érdeklődését ez az eladó komáromi társasházi lakás, vagy bármely más társasházi lakás és bővebb információt szeretne, keressen bizalommal.Hivatkozási szám: #171484Az Openhouse Tatabánya Ingatlaniroda tagjaként várom Önt az országos hálózatunk teljes kínálatával.A társasházi lakás vásárláshoz hitelt igényelne? Ingyenes hitelközvetítéssel segít Önnek bankfüggetlen hitelszakértőnk.További szolgáltatásainkkal (pl. értékbecslés, energetikai tanúsítvány, jogi háttér) is segítjük Önt a vásárlásban.Az otthon érték. Az ingatlan üzlet.

Referencia szám: 171484

Lakás részletei

Ár: 54 954 000 Ft
Méret: 57 négyzetméter
Azonosító: 11434566
Irodai azonosító: 171484-4759936
Összesített energetikai besorolás: A++
Emelet: 3. emelet
Építőanyag: Tégla
Fűtés jellege: Hőszivattyú
Ingatlan állapota: Épülő
Komfort fokozat: Összkomfort
Építési év: Új építésű
Kilátás: udvari
Egész szobák: 2

Egyéb jellemzők

  • Kocsibeálló

Térkép

Hasonló lakás hirdetések

Eladó lakás

Komárom

Komárom kedvelt lakóövezetében, új építésű társasházban, lakások ...

Eladó lakás

Komárom

Az Openhouse Komárom Ingatlaniroda kínálatában eladó a #170734 hivatkozási ...

Eladó lakás

Komárom

Az Openhouse Komárom Ingatlaniroda kínálatában eladó a #170737 hivatkozási ...

Eladó lakás

Komárom

Az Openhouse Komárom Ingatlaniroda kínálatában eladó a #170735 hivatkozási ...

Hasonló lakás hirdetések

Eladó lakás

Komárom

Komárom kedvelt lakóövezetében, új építésű társasházban, lakások ...

Eladó lakás

Komárom

Az Openhouse Komárom Ingatlaniroda kínálatában eladó a #170734 hivatkozási ...

Eladó lakás

Komárom

Az Openhouse Komárom Ingatlaniroda kínálatában eladó a #170737 hivatkozási ...

Eladó lakás

Komárom

Az Openhouse Komárom Ingatlaniroda kínálatában eladó a #170735 hivatkozási ...