Eladó lakás Komárom 87 360 000 Ft

Leírás

ÚJ ÉPÍTÉSŰ LAKÁS KOMÁROMBAN!

-modern
-kulcsrakész
-energiatakarékos
-akadálymentesített

Komáromban a városközponthoz, buszpályaudvarhoz és vasútállomáshoz közel, a Laktanya köz 7. sz. alatt kerül kialakításra egy 24 lakásos társasház, mely két ütemben (12-12 lakással) készül el.

A négyszintes épületben található felvonó akadálymentesen is megközelíthető. A földszinten kettő, az első és második emeleten négy-négy, illetve a legfelső szinten 2 db penthouse lakás kerül kialakításra.

Minden lakáshoz tartozik egy önálló, földszinti tároló, valamint 1 db zárt udvarban található kocsibeálló.

Az épület teljes szerkezete vasbeton kéregelemes (Leier) technológiával készül. Az energetikai követelményeknek való megfelelést a megfelelő vastagságú hőszigetelés, korszerű nyílászárók és épületgépészeti rendszer biztosítja.



Az épület homlokzaton 20 cm EPS szigetelés készül. A lapostetőn minimum 22 cm vastag EPS hőszigetelés, a terasztetőn minimum 15 cm PIR hőszigetelés készül.

Az épületbe laminált parketta burkolat és mázas kerámia burkolat kerül beépítésre. Teraszokon fagyálló, csúszásmentes greslap burkolat készül. A lépcsőházakban és a közlekedési útvonalakon szintén csúszásmentes, greslap burkolat lesz. A tetőteraszok burkolata 3 cm vastag nyílthézagos fagyálló kő burkolat.

A nyílászárók 3 rétegű hőszigetelő üvegezéssel ellátottak. Ezen nyílászárók minimum „u” értéke 0,81 W/m2K. A nyílászárók fehér színben kerülnek kivitelezésre.

Az épületben a villamos mérés lakásonként főmérővel történik.

A laskásokban a vécék és a fürdőszobák szellőzésére gépi elszívás kerül beépítésre.

Az épület fűtését központilag levegő-víz hőszivattyú rendszer biztosítja a mennyezet hűtés-fűtés által, kiegészítő padlófűtéssel.

A főbejáratnál elhelyezett kaputelefon lakásonként biztosít csengetési lehetőséget, a mágneszárral ellátott külső főbejárati ajtó minden lakásból távműködtetéssel nyitható.

Tervezett átadás 2025 év vége.

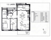
1.3. lakás
- nappali + 3 szoba
- 88,06 m2
- 87.360.000 Ft

Lakás részletei

Ár: 87 360 000 Ft
Méret: 81 négyzetméter
Azonosító: 11571459
Irodai azonosító: 388329
Cím: Laktanya köz
Emelet: 1. emelet
Építőanyag: Kérdezzen rá a hirdetőtől »
Fűtés jellege: Hőszivattyú
Ingatlan állapota: Kitűnő
Komfort fokozat: Összkomfort
Építési év: Új építésű
Tulajdonviszony: Saját
Kilátás: udvari
Egész szobák: 4

Egyéb jellemzők

  • Erkély
  • Garázs
  • Lift
  • Pince
  • Tároló

Térkép

Hasonló lakás hirdetések

Eladó lakás

Komárom

Fűtéskészen azonnal birtokba vehető ingatlan. Igazi ...

Eladó lakás

Komárom

CSALÁDI HÁZ ÉRZÉS – LAKÁSKÉNYELEM – PRÉMIUM MINŐSÉG EXKLUZÍV, ...

Eladó lakás

Komárom

ÚJ ÉPÍTÉSŰ LAKÁS KOMÁROMBAN! -modern -kulcsrakész -energiatakarékos -akadálymentesített Komáromban ...

Eladó lakás

Komárom

KIVÁLÓ LOKÁCIÓ, EXKLUZÍV LAKÁS!!! Eladásra kínálunk egy azonnal költözhető, ...

Hasonló lakás hirdetések

Eladó lakás

Komárom

Fűtéskészen azonnal birtokba vehető ingatlan. Igazi ...

Eladó lakás

Komárom

CSALÁDI HÁZ ÉRZÉS – LAKÁSKÉNYELEM – PRÉMIUM MINŐSÉG EXKLUZÍV, ...

Eladó lakás

Komárom

ÚJ ÉPÍTÉSŰ LAKÁS KOMÁROMBAN! -modern -kulcsrakész -energiatakarékos -akadálymentesített Komáromban ...

Eladó lakás

Komárom

KIVÁLÓ LOKÁCIÓ, EXKLUZÍV LAKÁS!!! Eladásra kínálunk egy azonnal költözhető, ...