Eladó lakás Kozármisleny 92 500 000 Ft

Leírás

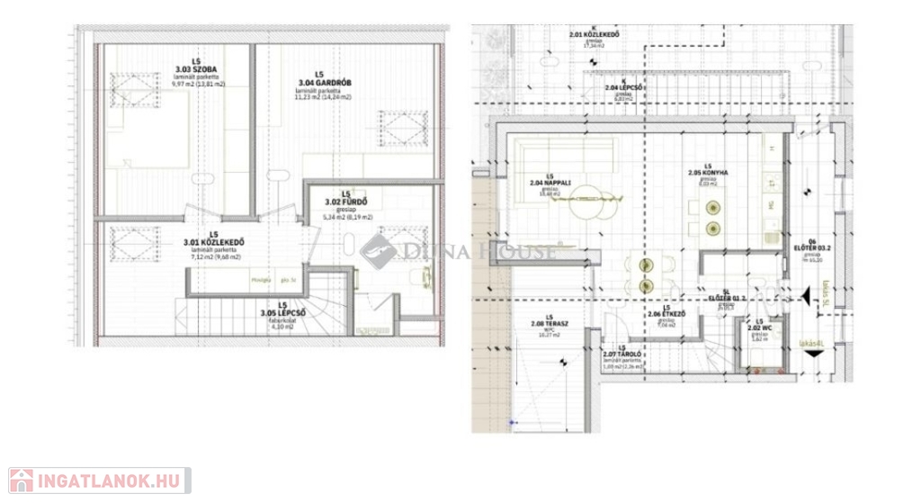
A lakás kialakítása a modern életmód igényeire szabott, tágas és praktikus elrendezéssel.
A lakótér központjában található egy jól felszerelt konyha, amely közvetlen kapcsolatban áll az étkezővel és a világos, kényelmes nappalival, így tökéletes helyszínt biztosít a családi és baráti összejövetelekhez.

A társasházban további lakások is elérhetőek, érdeklődjön telefonon!

A lakás belső terei igény szerint módosíthatóak!

A lakásban egy fürdőszoba, egy különálló WC helyiség, valamint egy külön mosókonyha is helyet kapott, amelyek a mindennapi élet kényelmét szolgálják. A két különálló szoba biztosítja a magánszféra lehetőségét, legyen szó hálószobáról, dolgozószobáról vagy gyerekszobáról.A lakáshoz tartozik egy terasz, amely tökéletes helyszínt kínál a szabadidős tevékenységekhez.Az átgondolt elrendezés és a modern kialakítás garantálja, hogy otthona ne csak szép, de funkcionális is legyen.

Műszaki tartalom:- 30cm X-Therm vázkerámia falazó-blok, 12cm grafitos hőszigetelés- 30cm födém szigetelés- Hőszigetelt műanyag nyílászárók- Földszinti gépházban kialakított hőszivattyús padlófűtésrendszer és lakásonként fan-coil gyors felfűtésre és hűtésre alkalmas rendszer, HMV körben kialakított használati meleg víz cirkulációs rendszer- Konyhákban, fürdőszobákban, Wc-ben kialakított szellőztetőrendszer közvetlenül a szabadba vezetve

Lakás részletei

Ár: 92 500 000 Ft
Méret: 107 négyzetméter
Azonosító: 11589748
Irodai azonosító: PR070900/LK/26065-5116124
Emelet: 1. emelet
Építőanyag: Tégla
Fűtés jellege: Hőszivattyú
Ingatlan állapota: Épülő
Építési év: Új építésű
Egész szobák: 3

Egyéb jellemzők

  • Erkély
  • Kocsibeálló

Térkép

Hasonló lakás hirdetések

Eladó lakás

Kozármisleny

Saját célra vagy befektetésnek? Kiváló lehetőség!Kozármisleny központi ...

Eladó lakás

Kozármisleny

Saját célra vagy befektetésnek? Kiváló lehetőség!Kozármisleny központi ...

Eladó lakás

Kozármisleny

A lakás kialakítása a modern életmód igényeire szabott, tágas és praktikus ...

Eladó lakás

Kozármisleny

Kozármisleny folyamatosan fejlődő új részén 8 lakásból álló épületben ...

Hasonló lakás hirdetések

Eladó lakás

Kozármisleny

Saját célra vagy befektetésnek? Kiváló lehetőség!Kozármisleny központi ...

Eladó lakás

Kozármisleny

Saját célra vagy befektetésnek? Kiváló lehetőség!Kozármisleny központi ...

Eladó lakás

Kozármisleny

A lakás kialakítása a modern életmód igényeire szabott, tágas és praktikus ...

Eladó lakás

Kozármisleny

Kozármisleny folyamatosan fejlődő új részén 8 lakásból álló épületben ...