Eladó lakás Makó 53 670 000 Ft

Leírás

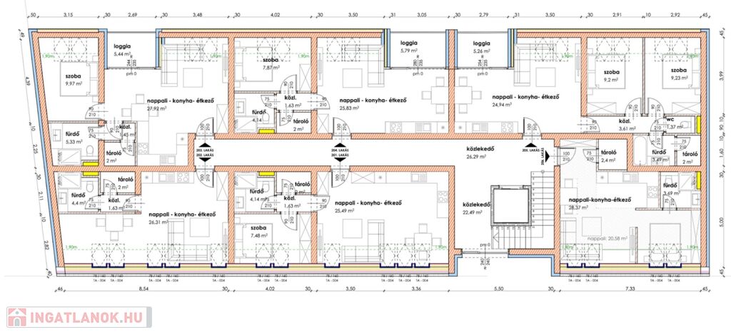
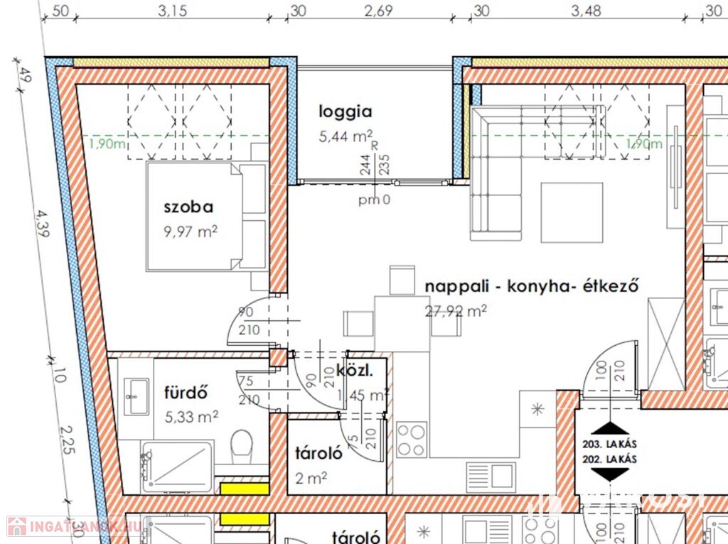
Makón, presztizs lokációval rendelkező - Makói fürdőtől 60 méterre, a Napfény Residenceben - a Páva utcában , Eladó egy most induló, tégla építésű, MÁSODIK EMELETI , 52,11 nm-es élettérrel rendelkező, amerikai konyha nappali plusz egy szobás, loggiás, lakás (203.lakás).
Udvari kocsibeálló külön vásárolható az ingatlanhoz.
Az ingatlan elhelyezkedésre, kialakítása miatt, maximálisan kiemeli ezt az ingatlant az átlagos lakások sorából és egyedülálló választássá teszi azt, befektetésre, vagy lakhatási célra is.
A feltűntetett ár emelt szerkezetkész ár (magas műszaki tartalommal) , a kivitelező vállalja kulcsrakész befejezést is.
A kivitelező több mint 10 éve működő tőkeerős cég.
Az ingatlanra CSOK plusz, otthon start, és más hiteltámogatás is igénybe vehető.
A társasház összes 46 lakásból - 2 épületben, 28 lakás Szent János tér, 16 lakás Páva utca - áll, valamint tégla falazattal, monolit födémmel, készül el.
A lakás fűtéséről központi hőszivattyús padló fűtés (egyedi méréssel), hűtéséről fan-coilos helyiségenkénti hűtés (egyedi méréssel) gondoskodik.
Fontos tény, hogy teljesen hétköznapi használat mellett is a rezsicsökkentés értékhatárai alatti a fogyasztás, így a rezsiköltség rendkívül alacsony.
A 1 db amerikai konyhás nappalival, 1db hálószobával, 1 db fürdőszobával, közlekedővel, loggiával rendelkezik.
A lakás délkeleti fekvésű, napfényes ingatlan.

A környék infrastruktúrája tökéletes, tömegközlekedés, Hagymatikum 1 percnyire az ingatlantól.

Helyiségei:
- amerikai konyha, nappali
- 1 szoba
- fürdő
- közlekedő, előtér
- loggia

A teljes (totál) műszaki tartalom rendelkezésre áll, valamint a helyszín megtekintése is rugalmas.

Várom megtisztelő hívását:
KÓKAI FERENC Városi Ingatlaniroda
+36 70 422 9777
Prémium ingatlanértékesítő
Szeged
(További képekért és információkért kérem hívjon!)

Lakás részletei

Ár: 53 670 000 Ft
Méret: 52 négyzetméter
Azonosító: 11587238
Irodai azonosító: 850202
Erkély mérete: 7.00 négyzetméter
Építőanyag: Tégla
Fűtés jellege: Hőszivattyú
Ingatlan állapota: Szerkezetkész
Komfort fokozat: Összkomfort
Egész szobák: 2
Nappalik: 1

Egyéb jellemzők

  • Erkély
  • Garázs
  • Klíma
  • Lift
  • Pince
  • Kertkapcsolat

Hasonló lakás hirdetések

Eladó lakás

Makó

Makón, presztizs lokációval rendelkező - Makói fürdőtől 60 méterre, ...

Eladó lakás

Makó

Makón, presztizs lokációval rendelkező - Makói fürdőtől 30 méterre ...

Eladó lakás

Makó

Makón, presztizs lokációval rendelkező - Makói fürdőtől 30 méterre ...

Eladó lakás

Makó

Makón, presztizs lokációval rendelkező - Makói fürdőtől 60 méterre, ...

Hasonló lakás hirdetések

Eladó lakás

Makó

Makón, presztizs lokációval rendelkező - Makói fürdőtől 60 méterre, ...

Eladó lakás

Makó

Makón, presztizs lokációval rendelkező - Makói fürdőtől 30 méterre ...

Eladó lakás

Makó

Makón, presztizs lokációval rendelkező - Makói fürdőtől 30 méterre ...

Eladó lakás

Makó

Makón, presztizs lokációval rendelkező - Makói fürdőtől 60 méterre, ...