Eladó lakás Mende 59 900 000 Ft

Leírás

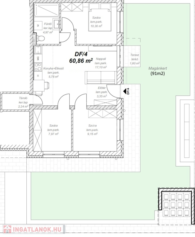
Mendén csodálatos zöld környezetben a Hétdomb lakóparkban, I. ütem második szakaszában megvalósuló új építésű zárt lakóparkban, A. kategóriás energiatakarékos ( hőszivattyús ) 16 lakásos társasházban, nettó hasznos 65,83 m² alapterületű, FÖLDSZINTI kertkapcsolatos lakást, SAJÁT 101 m² KERTRÉSSZEL kínálunk eladásra ( D épület Földszint 4. Lakás ).

Fontos kiemelni, hogy a lakás egyik különleges előnye, hogy a bejárat nem a hagyományos lépcsőházból, hanem a lakás saját, belső kertrészén keresztül közelíthető meg. Ez az egyedi kialakítás nemcsak esztétikai értéket képvisel, hanem jelentősen növeli a privát komfortérzetét is — a közvetlen kertkapcsolat révén nyugodtabb, intimebb lakókörnyezetet biztosít, mint a szokványos társasházi megoldások.

A kivitelező cég szem előtt tartja az alacsony rezsiköltséget, ezért a projekt a legkorszerűbb követelményeknek megfelel, ( lásd műszaki tartalom ).
Az épületek társasházzá lesznek nyilvánítva, így a lakások külön helyrajzi számmal azaz albetéttel rendelkeznek majd.

A lakások fűtését hőszivattyú biztosítja padlófűtéses hőleadással, a használati melegvíz ellátást minden lakásban hőszivattyús bojler biztosítja.

Külső felszíni kocsibeálló bruttó ára: 2 MFt./db.
Belső sorompós kocsibeálló ára: 2,5 MFt/db ; elektromos töltési lehetőséggel: 3 MFt./db.
Tároló bruttó ára: 2 MFt./db.
D. épület vállalt befejezési ideje kulcsrakészen legkésőbb: 2026.05.31.
D. épület várható használatbavételi engedélye legkésőbb: 2026.08.30

Műszaki tartalom ( részlet ):

-Alapozás: Monolit vasbeton lemezalapozás
-Teherhordó falazat: Porotherm vázkerámia falazat, érintkező falaknál SILKA (hanggátló) mészhomoktégla falazat
-Válaszfalak: Falazott vagy Gipszkarton válaszfalak, kétoldali vakolással vagy gletteléssel
-Tetőszerkezet: Szeglemezes rácsostartó faváz szerkezet
-Nyílászárók: Fokozott légzárású 3 rtg-ű műanyag nyílászárók / k=min.: 1,0 W/m2K /
-Vízszigetelés: 1, 2 rtg vagy kent modifikált bitumenes vastaglemez szigetelés
-Hőszigetelés: Lábazaton 15 XPS hőszigetelés, oldalfalon 15 cm EPS hőszigetelés
-Héjalás: Cserépfedés, bádogos kiegészítő elemekkel
-Homlokzatburkolatok: Homlokzati színezett vakolat
-Padlóburkolatok: Kerámia hidegburkolatok, laminált parketta melegburkolatok
-Falburkolatok: Belső oldali vakolat, festve, felület kezelve, vizes helyiségekben kerámia burkolat

Az ingatlan részletes ismertetése és bemutatása, előre egyeztetett időpontban lehetséges, amelyet nagyon rugalmasan kezelünk, akár HÉTVÉGÉN is.
További kérdéseivel kapcsolatban várom a jelentkezését.
Amennyiben Önnek a vásárláshoz szüksége lenne hitelre, babaváró kölcsönre, lakástakarékra, stb., kezdeményezheti a kapcsolatfelvételt bankfüggetlen hitelügyintézőinkkel, teljesen DÍJMENTESEN.
Közel 25 év szakmai tapasztalattal rendelkezem, eladó vagy kiadó ingatlana értékesítése vagy bérbeadása esetén, készséggel állok az Ön rendelkezésére is, keressen bizalommal.

Lakás részletei

Ár: 59 900 000 Ft
Méret: 61 négyzetméter
Azonosító: 11575660
Irodai azonosító: 389120
Cím: Mendei Lakópark, D. épület Fszt. 4.
Emelet: Földszint
Építőanyag: Tégla
Fűtés jellege: Hőszivattyú
Ingatlan állapota: Kitűnő
Komfort fokozat: Összkomfort
Építési év: Új építésű
Tulajdonviszony: Saját
Kilátás: kertre néző
Egész szobák: 1
Fél szobák: 3

Egyéb jellemzők

  • Erkély
  • Garázs
  • Lift
  • Pince
  • Tároló

Térkép

Hasonló lakás hirdetések

Eladó lakás

Mende

Mendén csodálatos zöld környezetben a Hétdomb lakóparkban, I. ütem második ...

Eladó lakás

Mende

Mendén csodálatos zöld környezetben a Hétdomb lakóparkban, I. ütem második ...

Eladó lakás

Mende

Mendén csodálatos zöld környezetben a Hétdomb lakóparkban, I. ütem második ...

Eladó lakás

Mende

Mendén csodálatos zöld környezetben a Hétdomb lakóparkban, I. ütem második ...

Hasonló lakás hirdetések

Eladó lakás

Mende

Mendén csodálatos zöld környezetben a Hétdomb lakóparkban, I. ütem második ...

Eladó lakás

Mende

Mendén csodálatos zöld környezetben a Hétdomb lakóparkban, I. ütem második ...

Eladó lakás

Mende

Mendén csodálatos zöld környezetben a Hétdomb lakóparkban, I. ütem második ...

Eladó lakás

Mende

Mendén csodálatos zöld környezetben a Hétdomb lakóparkban, I. ütem második ...