Eladó lakás Miskolc 22 900 000 Ft

Leírás


Végre REÁLIS ÁRON eladó egy Árpád úti lakás Miskolcon! REMEK LEHETŐSÉG, NEM LESZ SOKÁIG ELÉRHETŐ A PIACON!

Igényeld a 3%-os hitelt, vagy vedd meg készpénzért, mert befektetésnek is jó lehetőség!

Jellemzői:

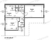
- 51 m2

- 3. emelet

- kelet-nyugati tájolás

- műanyag ablakok

- jó állapotú parketták

- jó állapotú konyha és fürdőszoba

- NOVEMBER ELEJÉN KÖLTÖZHETŐ

- jelenleg albérletbe van kiadva, tökéletes lakás albérleteztetésre, de saját lakásnak is!

További részletek telefonon!

Amennyiben hitelt, babavárót is szeretne a vásárláshoz, szakértő kollégánk ingyenes szolgáltatást nyújt!

Lakása, háza van eladó? Keressen nyugodtan, nem fog csalódni.

Lakás részletei

Ár: 22 900 000 Ft
Méret: 51 négyzetméter
Azonosító: 11570387
Irodai azonosító: 698900708
Emelet: 3. emelet
Építőanyag: Panel
Fűtés jellege: Távfűtés
Ingatlan állapota: Átlagos
Komfort fokozat: Összkomfort
Egész szobák: 2

Egyéb jellemzők

  • Lift

Hasonló lakás hirdetések

Eladó lakás

Miskolc

Eladó egy hangulatos, jó állapotban lévő lakás az Avas ...

Eladó lakás

Miskolc, Kilián

Miskolc Dél-Kilián városrészén, a Gagarin utca 2. szám alatti, ligetes, ...

Eladó lakás

Miskolc

Miskolcon a Győri Kapu végén az Újgyőri főtér előtt (Andrássy u.) ...

Eladó lakás

Miskolc

  Eladó újszerű téglalakás Miskolc, Kilián északi ...

Hasonló lakás hirdetések

Eladó lakás

Miskolc

Eladó egy hangulatos, jó állapotban lévő lakás az Avas ...

Eladó lakás

Miskolc, Kilián

Miskolc Dél-Kilián városrészén, a Gagarin utca 2. szám alatti, ligetes, ...

Eladó lakás

Miskolc

Miskolcon a Győri Kapu végén az Újgyőri főtér előtt (Andrássy u.) ...

Eladó lakás

Miskolc

  Eladó újszerű téglalakás Miskolc, Kilián északi ...