Eladó lakás Mórahalom 67 000 000 Ft

Leírás


Mórahalmon Új építésű lakás eladó!

 

A lakás jellemzői:

 

- Mórahalom központjához közel,

- földszinti,

- 84 m2 (75,31 m2 lakás+16,91 m2 Terasz),

- külső falazata Phorotherm 30 tégla, rajta 15 cm Austrotherm grafit  hőszigetelés,

- 3 réteg üvegezésű homlokzati nyílászárók kerültek beépítésre,

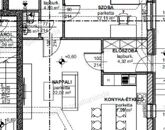
- előszoba, nappali, konyha-étkező, 2 db szoba, fürdőszoba, wc, gardrob, közlekedő, terasz helyiségekből áll,

- a padlófűtést hőszivattyúval építették ki, 

- a melegvíz ellátását villanybojler biztosítja,

- a lakás hűtésről klíma gondoskodik,

- napelem, 30 KW 10 év szaldóval.

 

- Kulcsrakész tervezett átadása várhatóan 2026 Április

 

 Garázs vagy parkoló vásárolható a lakáshoz!

 



Nézze meg, tegyen rá ajánlatot!



Ha felkeltettem érdeklődését és további információért forduljon hozzám bizalommal.



 

 

Lakás részletei

Ár: 67 000 000 Ft
Méret: 84 négyzetméter
Azonosító: 11597582
Irodai azonosító: 675301114
Építőanyag: Tégla
Ingatlan állapota: Kitűnő
Komfort fokozat: Összkomfort
Építési év: Új építésű
Egész szobák: 3

Egyéb jellemzők

  • Lift