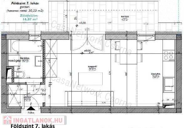
Eladásra kínálom az alábbi lakást Nagyszentjánoson! A megyeszékhely felől mind az M1-es, mind pedig az 1-es főúton el lehet érni ezt a nyugodt, barátságos települést. A lakások csendes, idilli környezetben helyezkednek el. Tökéletes választás a családosoknak, egyedülállóknak, fiatal pároknak, és mindazoknak, akiknek elege van az urbanizáció negatív hatásaiból, otthonát pihenésre is szeretné használni, de kiélvezné a nagyváros közelségét és lehetőségeit. L7-es lakás jellemzői:A lakás hamarosan kulcsrakész és költözhető!Ára: bruttó 26.250.000, Ft földszinti garzon L7 lakás, 30,23 m2-es a lakáshoz 18,67 m2 saját, önálló kert tartozik központi hőszivattyús rendszer AJÁNDÉK gépkocsibeálló AJÁNDÉK fürdőszobabútorTÁROLÓ minden lakáshozA lakás Safari Smart Home okosotthon rendszerrel kerül átadásra melynek tartalma: - aplikáció a telefonra, - üvegfelületű, érintőpaneles desing kapcsolók,- 5 db jelenlét és fényérzékelő szenzorok, - 1 db nyitásérzékelő szenzor,- 1 db hőmérséklet és páratartalom mérő,- 1 db tűz/füst érzékelőFontos tudni, a lakás átadása után a Safari Smart Home az Ön igényeire szabja a rendszert. KULCSRAKÉSZ kivitelezés az árban Igényes kivitelezés, minőségi anyagok! Megbízható kivitelező, megtekinthető referencia házakkal, lakásokkal!Irodánk kínálatában további lakások, telkek is megtalálhatóak, amennyiben felkeltette érdeklődését keresse ingatlan referensét: 06702708606 - Sári Ábel
| Ár: | 28 000 000 Ft |
| Méret: | 30 négyzetméter |
| Azonosító: | 10945317 |
| Irodai azonosító: | 164600570 |
| Emelet: | Földszint |
| Építőanyag: | Tégla |
| Ingatlan állapota: | Kitűnő |
| Egész szobák: | 1 |
Ingatlanhírek kéthetente, e-mailben. Iratkozzon fel hírlevelünkre!