Eladó lakás Nyíregyháza, Belváros, 40 700 000 Ft

Leírás

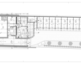
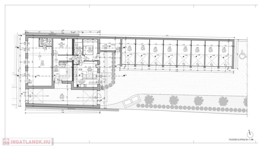
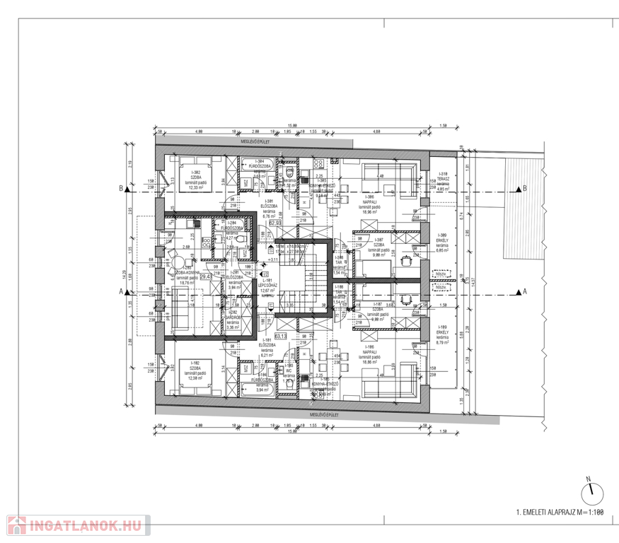
Nyíregyháza belvárosában eladásra kínálok új építésű, 2026. év végi átadással társasházi lakásokat
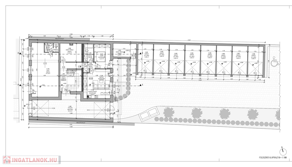
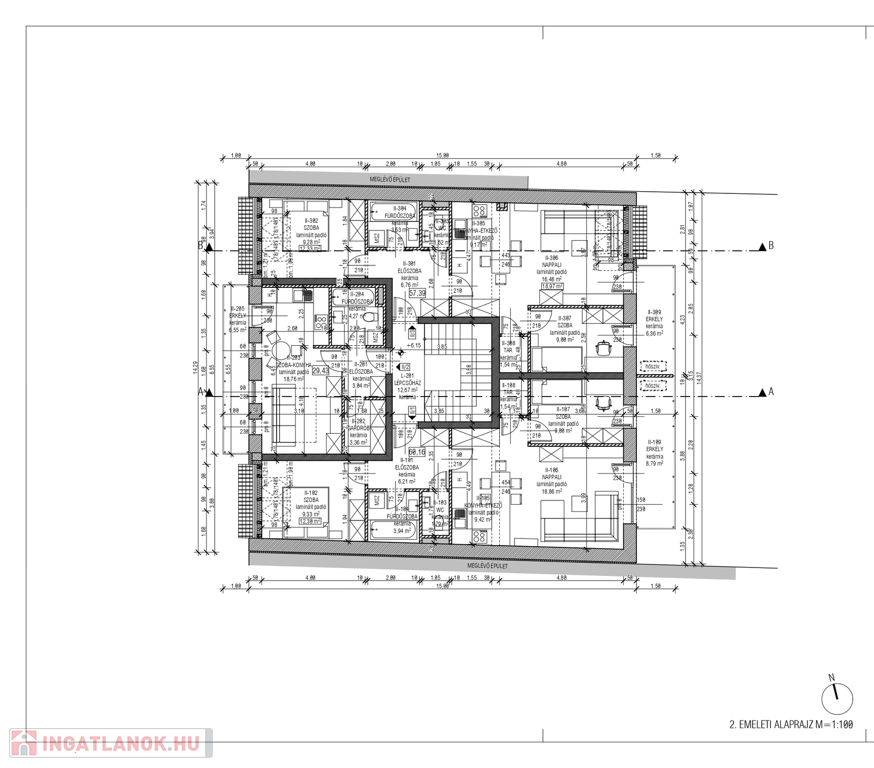
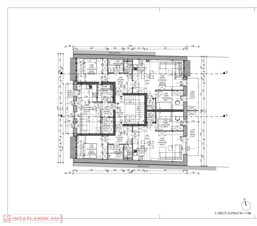
A 7 lakásos társasház Viablokk falazatú, keleti - nyugati fekvésű, csendes, nyugodt környezetben található.
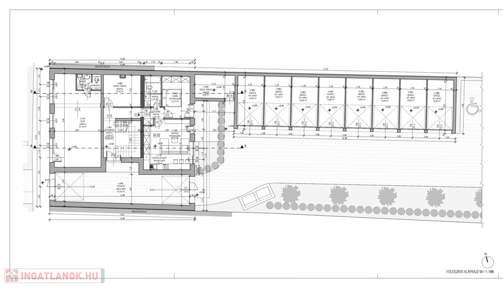
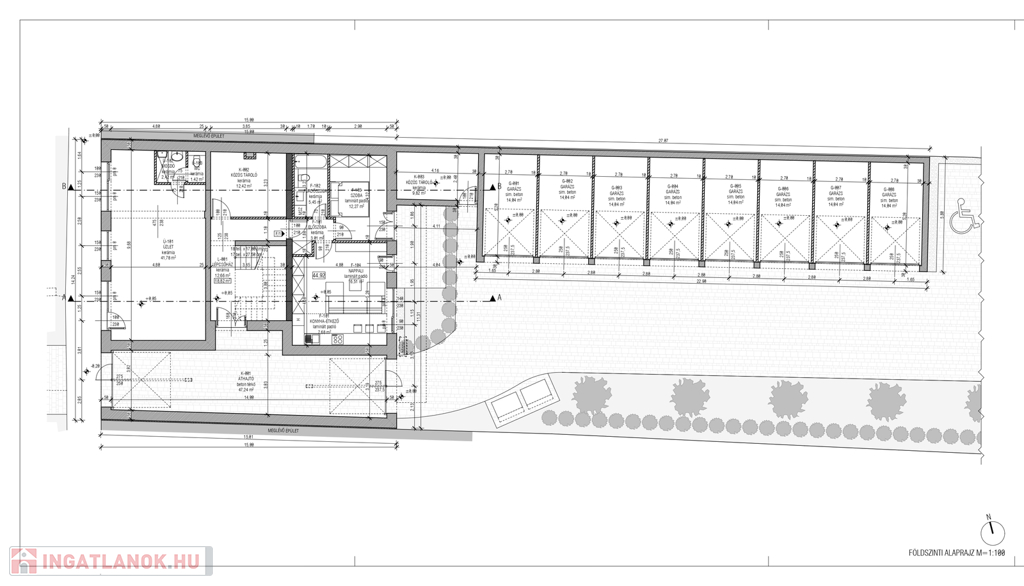
A földszinti lakás: 45 m2 + teraszkapcsolat, 1 szoba + nappalis elosztással. Egyedi gázfűtés, padló fűtés. Ára: 54.900.000 Ft
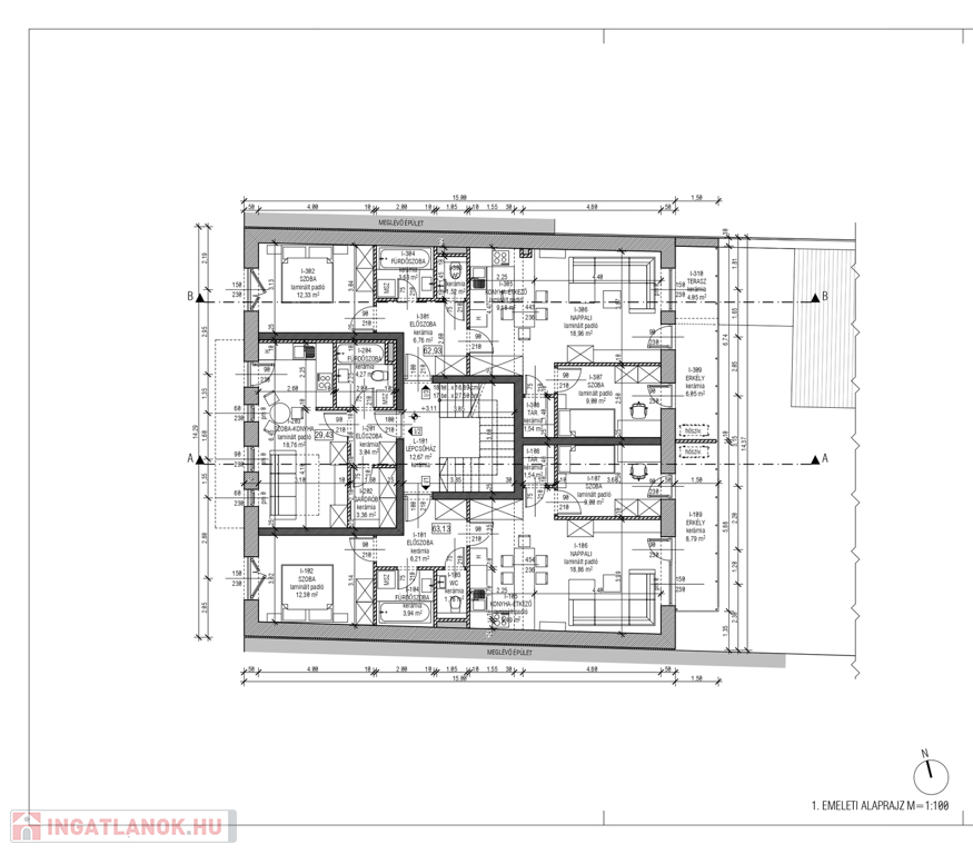
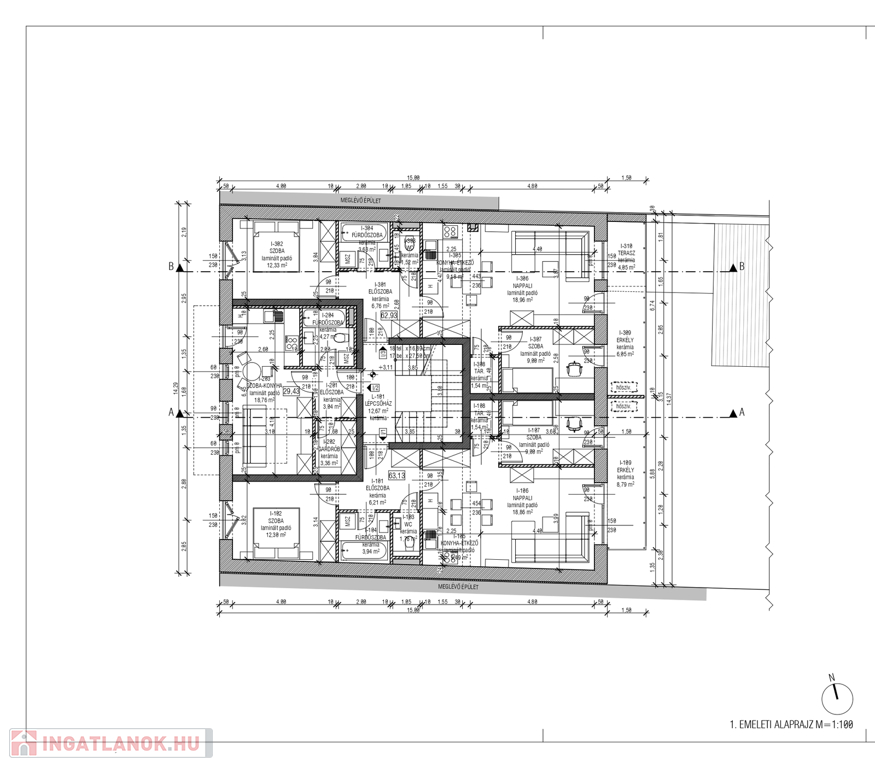
1/1 lakás: 63,12 m2 + 8,79 m2 terasz, 2 szoba + nappali elrendezésű. Egyedi gázfűtés, padló fűtés. Tároló. Ára: 69.250.000 Ft
1/2 lakás: 29,43 m2, 1 szoba, konyha, gardrób. Egyedi gázfűtés, padló fűtés. Ára: 40.700.000 Ft
1/3 lakás: 62,91 m2, nappali + 2 szoba, tároló, erkély (6,05 m²), terasz (4,05 m²). Egyedi gázfűtés, padló fűtés. Ára: 68.200.000 Ft
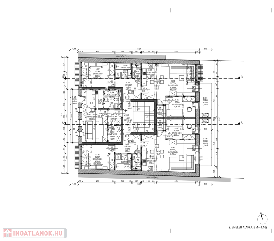
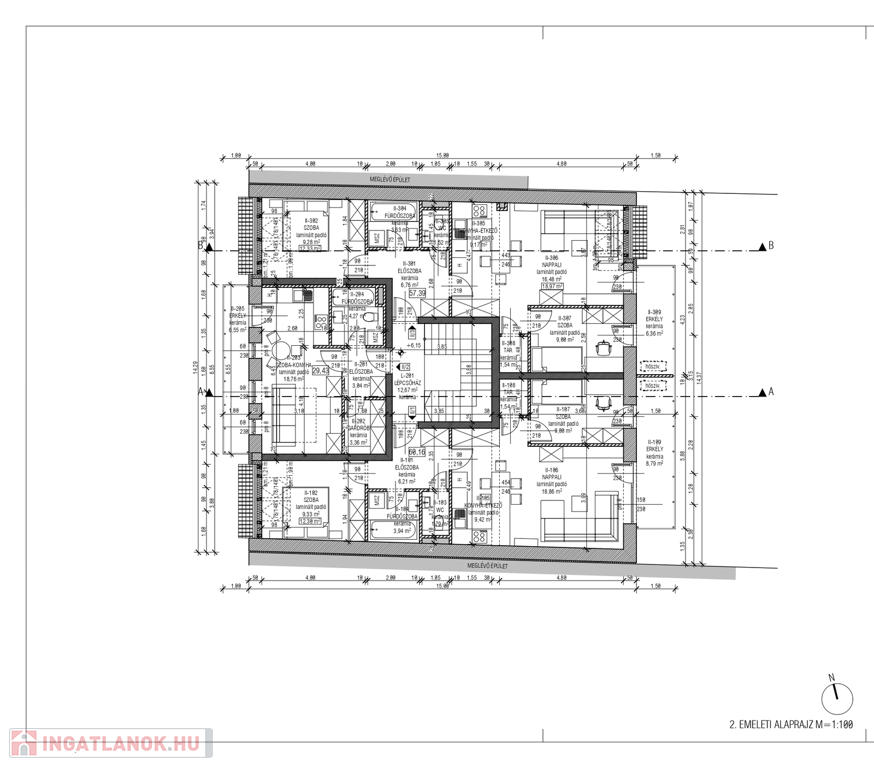
2/1 lakás: 60,15 m2, nappali + 2 szoba, + erkély (8,79 m2), tároló, egyedi gázfűtés, padló fűtés. Ára: 66.200.000 Ft
2/2 lakás: 29,43 m2 + 6,55 m2 erkély, 1 szoba, konyha, egyedi gázfűtés, padló fűtés. Ára: 45.170.000 Ft
2/3 lakás:62,91 m2 + 6,36 m2 erkély, 2 szoba + nappali, tároló, egyedi gázfűtés, padló fűtés. Ára: 61.100.000 Ft
A lakások belső kialakítása teljes mértékben a vevő fantáziájára van bízva. (burkolatok, ajtók, színek választhatók)
Garázsok elérhetőek: 9.300.000 Ft + Áfa
Parkolóhelyek elérhetőek: 3.300.000 Ft
Ha felkeltette érdeklődésedet az ingatlanok bármelyike, keressen bizalommal!Az ingatlan azonosítója: 98280Érdeklődni: +3670/328-8474 Az ingatlan azonosítója: 98280 Érdeklődni: +3670/328-8474

Lakás részletei

Ár: 40 700 000 Ft
Méret: 30 négyzetméter
Azonosító: 11590567
Irodai azonosító: 98280
Városrész: Belváros
Emelet: 1. emelet
Építőanyag: Tégla
Fűtés jellege: Cirkó
Ingatlan állapota: Épülő
Építési év: Új építésű
Egész szobák: 1

Egyéb jellemzők

  • Lift

Hasonló lakás hirdetések

Eladó lakás

Nyíregyháza

Nyíregyháza, Vasútállomás közelében, ...

Eladó lakás

Nyíregyháza

Nyíregyháza, Árpád utcán, 79 nm-es, 3+1 ...

Eladó lakás

Nyíregyháza, Örökösföld

Nyíregyháza, Örökösföldön eladásra ...

Eladó lakás

Nyíregyháza, Örökösföld

Nyíregyháza, Fazekas János téren eladó ...

Hasonló lakás hirdetések

Eladó lakás

Nyíregyháza

Nyíregyháza, Vasútállomás közelében, ...

Eladó lakás

Nyíregyháza

Nyíregyháza, Árpád utcán, 79 nm-es, 3+1 ...

Eladó lakás

Nyíregyháza, Örökösföld

Nyíregyháza, Örökösföldön eladásra ...

Eladó lakás

Nyíregyháza, Örökösföld

Nyíregyháza, Fazekas János téren eladó ...