Eladó lakás Nyíregyháza 77 000 000 Ft

Leírás

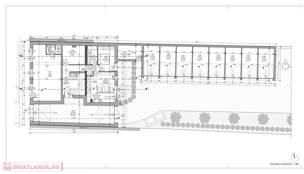
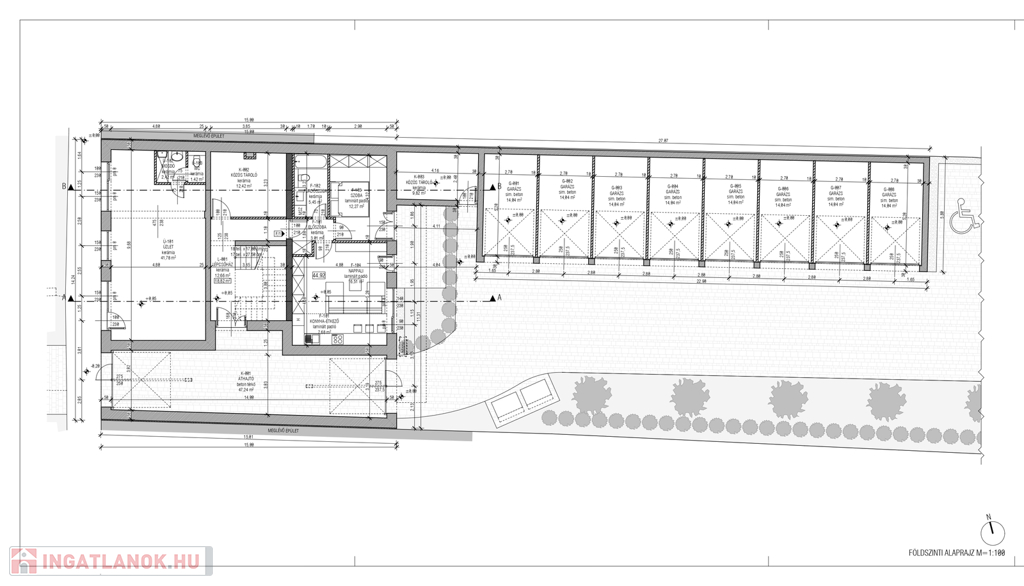
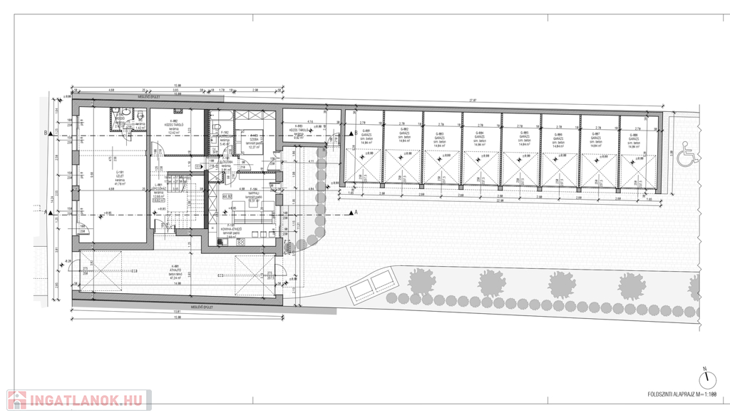
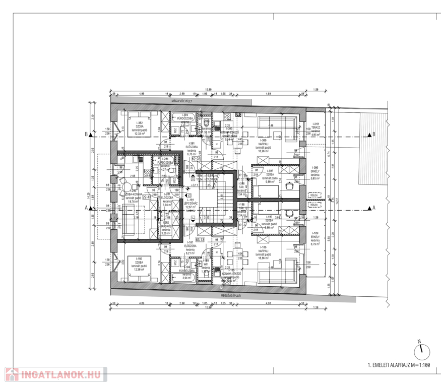
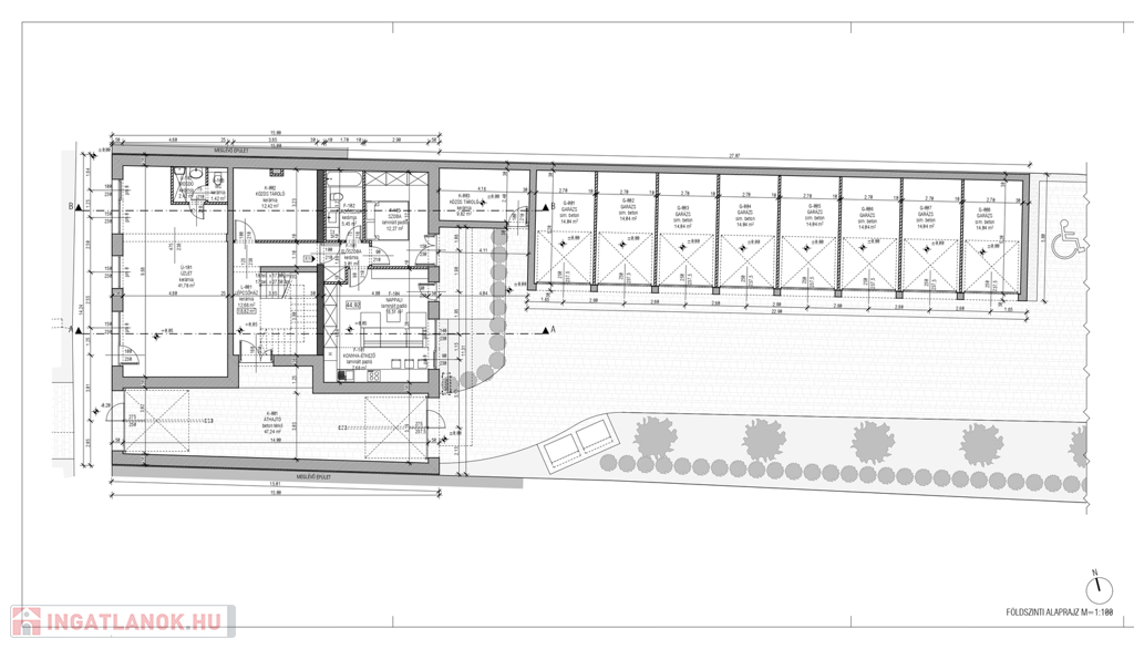
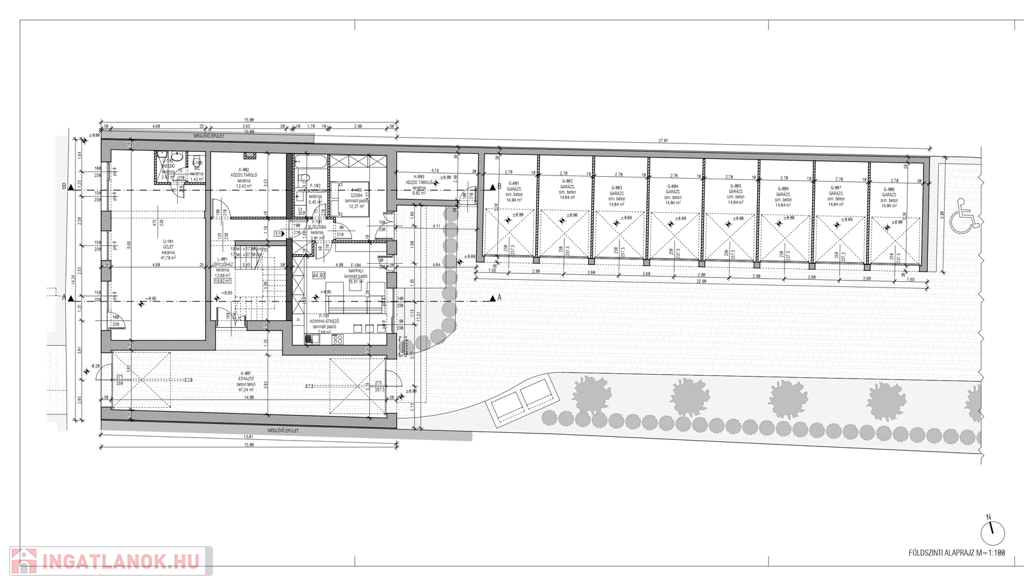
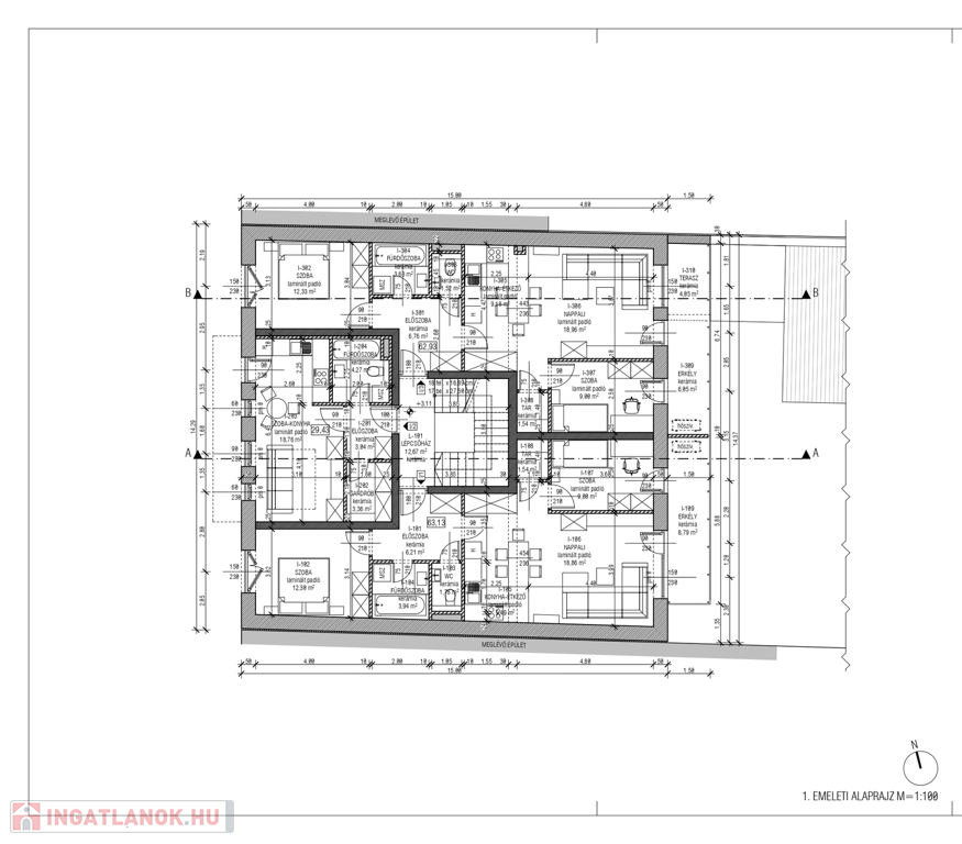
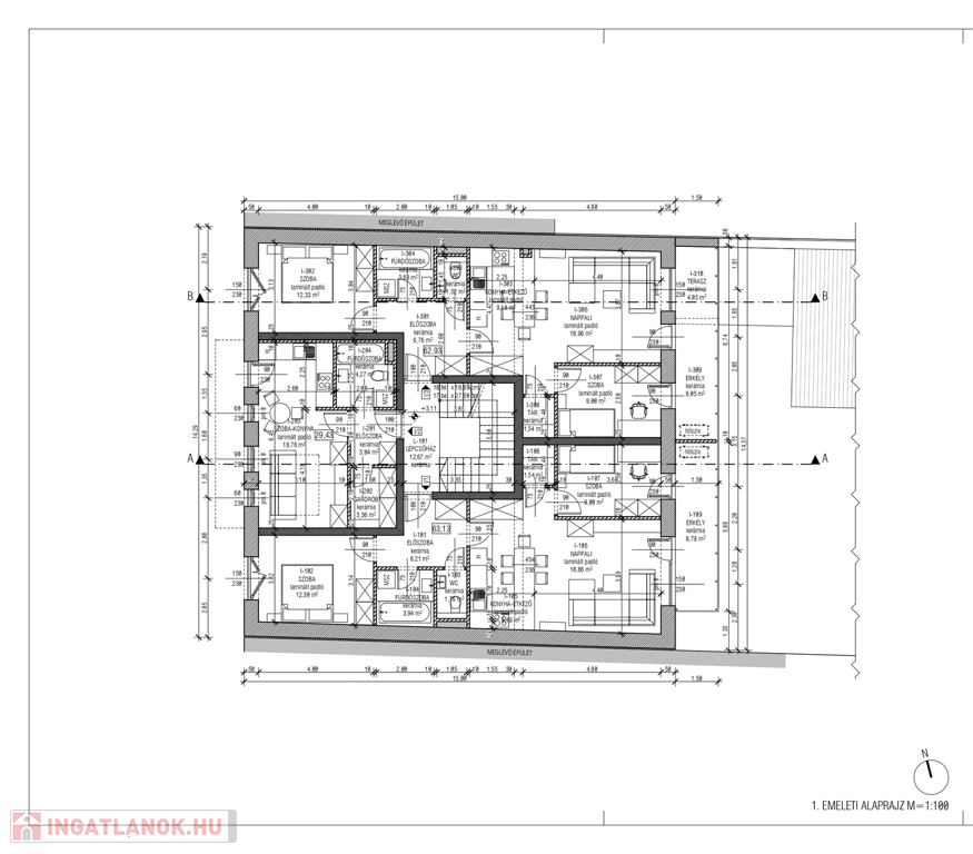
Nyíregyháza Belváros csendes utcájában ÚJ építésű, 7 lakásos társasházban, 29,43 nm - 63,12 nm-ig, 1 szobás, 1 + 1 és 2 szoba + nappali étkező konyhával, külön fürdő és wc, választható járólap és laminált parketta burkolattal, egyedi gáz kondenzációs kazánnal padló fűtéssel, 3 réteg üvegezésű műanyag nyílászárókkal, 50-es Viablokk falazattal, minőségi szaniterekkel, minden lakásban inverteres klímával lakások, garázsok illetve autóbeállók megvásárolhatóak, számos referenciával rendelkező minőségi kivitelezőtől 2026 év végi átadással.
Garázsok elérhetőek: 8.500.000 Ft + Áfa
Parkolóhelyek elérhetőek: 3.500.000 Ft
Energetikai besorolás: tulajdonos tájékoztatása szerint folyamatban van, illetve komoly érdeklődés esetén rövid időn belül elkészíttetésre kerül.
Ha felkeltette érdeklődésedet az ingatlanok bármelyike, keressen bizalommal. Az ingatlan azonosítója: 98278Érdeklődni: +36304092510 Az ingatlan azonosítója: 98278 Érdeklődni: +36304092510

Lakás részletei

Ár: 77 000 000 Ft
Méret: 63 négyzetméter
Azonosító: 11590566
Irodai azonosító: 98278
Emelet: 1. emelet
Építőanyag: Tégla
Fűtés jellege: Cirkó
Ingatlan állapota: Épülő
Építési év: Új építésű
Egész szobák: 1

Egyéb jellemzők

  • Lift

Hasonló lakás hirdetések

Eladó lakás

Nyíregyháza, Belváros

Nyíregyháza - Belváros, 104 nm-es, nappali + 3 szobás ...

Eladó lakás

Nyíregyháza, Belváros

Nyíregyháza Belvárosában eladásra kínálok ...

Eladó lakás

Nyíregyháza, Belváros

NYÍREGYHÁZA BELVÁROSÁBAN 4 szintes társasházi ...

Eladó lakás

Nyíregyháza, Belváros

Nyíregyháza belvárosában, a Közép utcában ...

Hasonló lakás hirdetések

Eladó lakás

Nyíregyháza, Belváros

Nyíregyháza - Belváros, 104 nm-es, nappali + 3 szobás ...

Eladó lakás

Nyíregyháza, Belváros

Nyíregyháza Belvárosában eladásra kínálok ...

Eladó lakás

Nyíregyháza, Belváros

NYÍREGYHÁZA BELVÁROSÁBAN 4 szintes társasházi ...

Eladó lakás

Nyíregyháza, Belváros

Nyíregyháza belvárosában, a Közép utcában ...