Eladó lakás Pécs 105 900 000 Ft

Leírás

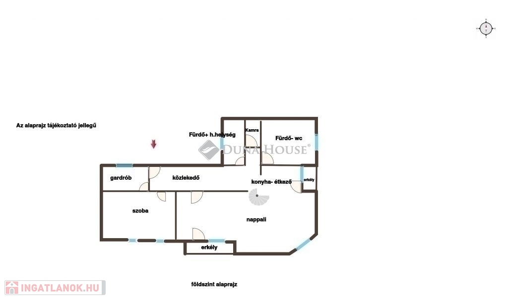
PÉCS BELVÁROSÁNAK SZÍVÉBEN AZONNAL KÖLTÖZHETŐ, EXTRA GALÉRIÁS LUXUS LAKÁS TELJES BERENDEZÉSSEL! Ha nem éred be az átlagossal, ezt a lakást látnod kell!Eladó Pécs belvárosában, a Mária utcában egy különleges hangulatú, 102 nm-es, galériás, 3 szobás, amerikai konyhás otthon, amely a tágas terek és a praktikus kialakítás tökéletes ötvözete. A lakás főbb jellemzői:102 nm alapterület3 szoba + amerikai konyhás nappaliGalériás kialakítás egyedi térérzet, igazi belvárosi loft hangulatFűtés: gázcirkó kedvező fenntartási költségek2 fürdőszoba + 2 WC ideális nagyobb családnak vagy kiadásraTeljes berendezéssel eladó csak a bőröndöd hozd! Elhelyezkedés amit nem lehet felülmúlni:Pécs történelmi belvárosának egyik legkedveltebb utcájaKávézók, éttermek, egyetemek, boltok pár perc sétáraTökéletes választás saját részre, de kiemelkedő befektetés rövid- vagy hosszútávú bérbeadásra isEz az ingatlan nem csak egy lakás ez egy életstílus a város lüktető szívében. Ne maradj le róla ilyen adottságokkal rendelkező belvárosi lakás ritkán kerül piacra!

Az energetikai tanúsítvány készítése folyamatban van, amint rendelkezésre áll, úgy azzal a hirdetés frissítésre kerül.



105900000 Ft

Lakás részletei

Ár: 105 900 000 Ft
Méret: 102 négyzetméter
Azonosító: 11608911
Irodai azonosító: LK053503-5186188
Cím: Eladó 102 nm-es lakás Pécs
Emelet: 3. emelet
Építőanyag: Tégla
Fűtés jellege: Cirkó
Ingatlan állapota: Kitűnő
Építési év: 21-50 éves
Egész szobák: 4

Egyéb jellemzők

  • Erkély

Térkép

Hasonló lakás hirdetések

Eladó lakás

Pécs

Áresés!!! Eladó egy 105 négyzetméteres, kertkapcsolatos lakás a Donátusi ...

Eladó lakás

Pécs

Toszkán életérzés itthon :medence, kerti tó, szauna ,varázslatos kilátás ...

Eladó lakás

Pécs

NAGY TERASZ ÉS KERTKAPCSOLATOS LAKÁSOK AZ ORVOSI KAR KÖZELÉBEN!!! Pécs ...

Eladó lakás

Pécs

Eladó ez az igazán ritka lakás Pécsett, a Bajnok utcában. Ritka, mert ...

Hasonló lakás hirdetések

Eladó lakás

Pécs

Áresés!!! Eladó egy 105 négyzetméteres, kertkapcsolatos lakás a Donátusi ...

Eladó lakás

Pécs

Toszkán életérzés itthon :medence, kerti tó, szauna ,varázslatos kilátás ...

Eladó lakás

Pécs

NAGY TERASZ ÉS KERTKAPCSOLATOS LAKÁSOK AZ ORVOSI KAR KÖZELÉBEN!!! Pécs ...

Eladó lakás

Pécs

Eladó ez az igazán ritka lakás Pécsett, a Bajnok utcában. Ritka, mert ...