Eladó lakás Pécs 111 900 000 Ft

Leírás

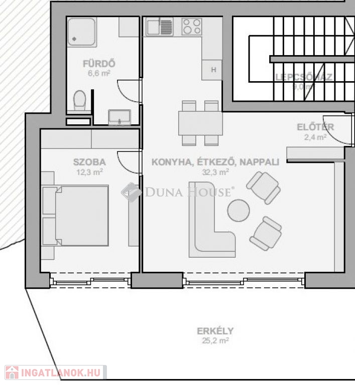
EXKLUZÍV ÚJ ÉPÍTÉSŰ, ÖRÖKPANORÁMÁS LAKÁSOK, MAGAS MŰSZAKI TARTALOMMAL, 54-78m2 közötti lakótérrel, hatalmas teraszokkal leköthetők! Pécs-Mecsekoldal jól megközelíthető részén, 2027 év végéig modern gépészettel(levegő hőszivattyú-padlófűtés, mennyezet hűtéssel), kiváló minőségben kerül kivitelezésre egy 4-4 lakásos társasház két épületegyüttesben.Elérhető lakáslista:A1 Lakás: első emeleti, 54m2-es lakótérrel, amerikai konyha nappali+1 szoba, fürdő-wc elosztású ingatlan 25 m2-es terasszal. Ár: 96.900.000 Ft.A2 Lakás: második emeleti, 78 m2-es lakótérrel, amerikai konyha nappal+2 szoba, gardrób, fürdő-wc, mosdó elosztású ingatlan 24 m2-es erkéllyel, 51 m2-es hátsó terasszal és 40m2-es tetőterasszal. Ár:148.900.000 Ft.B1 Lakás: első emeleti, 56m2-es lakótérrel, amerikai konyha nappali+1 szoba, fürdő-wc elosztású ingatlan 34 m2-es terasszal. Ár: 98.900.000 Ft.B2 lakás:második emeleti, 70m2-es lakótérrel, amerikai konyha nappal+2 szoba, gardrób, fürdő-wc, mosdó elosztású ingatlan 32 m2-es erkéllyel,51m2-es hátsó terasszal és 40m2-es tetőterasszal. Ár:126.900.000 Ft.C1 Lakás: első emeleti, 54m2-es lakótérrel, amerikai konyha nappali+1 szoba, fürdő-wc elosztású ingatlan 26 m2-es terasszal. Ár: 97.900.000 Ft.C2 Lakás: második emeleti, 78 m2-es lakótérrel, amerikai konyha nappal+2 szoba, gardrób, fürdő-wc, mosdó elosztású ingatlan 20m2-es erkéllyel, 55 m2-es hátsó terasszal és 40m2-es tetőterasszal. Ár:148.900.000 Ft.D1 Lakás: első emeleti, 56m2-es lakótérrel, amerikai konyha nappali+1 szoba, fürdő-wc elosztású ingatlan 36 m2-es terasszal. Ár: 99.900.000 Ft.D2 lakás:második emeleti, 70m2-es lakótérrel, amerikai konyha nappal+2 szoba, gardrób, fürdő-wc, mosdó elosztású ingatlan 18 m2-es erkéllyel, 67m2-es hátsó terasszal és 43m2-es tetőterasszal. Ár:132.900.000 Ft.A teremgarázsban lakásonként 1 gépkocsibeálló tárolóval +15M Ft/db áron megvásárolható.A társasházat fűtött, magánútról lehet elérni. A vételár tartalmazza a redőnyöket, riasztót, illetve a burkolatok és szaniterek nagy kínálatú termékkatalógusból válaszhatók az építtető által megadott összeghatárig! További értékes információért keressen bizalommal!

Lakás részletei

Ár: 111 900 000 Ft
Méret: 112 négyzetméter
Azonosító: 11607311
Irodai azonosító: PR034173/LK/26507-5178772
Cím: Eladó 112 nm-es lakás Pécs
Emelet: 1. emelet
Építőanyag: Tégla
Fűtés jellege: Cirkó
Ingatlan állapota: Épülő
Komfort fokozat: Összkomfort
Építési év: Új építésű
Egész szobák: 2

Egyéb jellemzők

  • Erkély

Térkép

Hasonló lakás hirdetések

Eladó lakás

Pécs

Áresés!!! Eladó egy 105 négyzetméteres, kertkapcsolatos lakás a Donátusi ...

Eladó lakás

Pécs

Eladásra kínálunk egy egyszintes, 130m2-es , tégla szerkezetű, kertkapcsolatos ...

Eladó lakás

Pécs

Eladó nagypolgári lakás Pécs belvárosának központjában!Pécs belvárosának ...

Eladó lakás

Pécs

Exkluzív ÚJ ÉPÍTÉSŰ lakások a belvároshoz közel mégis csendes családi ...

Hasonló lakás hirdetések

Eladó lakás

Pécs

Áresés!!! Eladó egy 105 négyzetméteres, kertkapcsolatos lakás a Donátusi ...

Eladó lakás

Pécs

Eladásra kínálunk egy egyszintes, 130m2-es , tégla szerkezetű, kertkapcsolatos ...

Eladó lakás

Pécs

Eladó nagypolgári lakás Pécs belvárosának központjában!Pécs belvárosának ...

Eladó lakás

Pécs

Exkluzív ÚJ ÉPÍTÉSŰ lakások a belvároshoz közel mégis csendes családi ...