Eladó lakás Pécs 42 350 000 Ft

Leírás


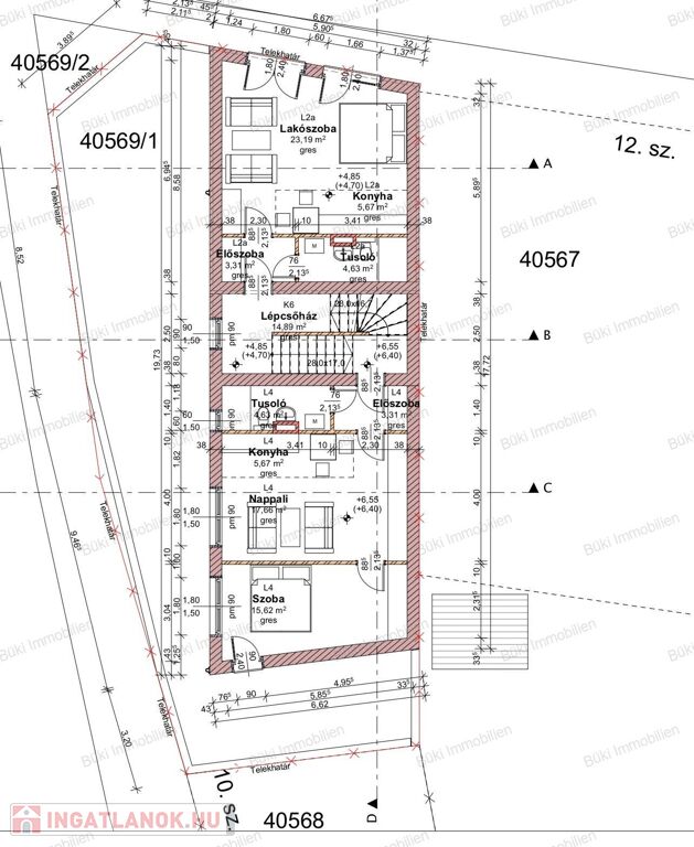
Pécs belvárosi részén az egyetem közelében 3 db magas minőségű új építésű lakások eladók!

Képzelje el, hogy Pécs Belvárosa szomszédságában, egy frekventált utcában új építésű lakás várja, amely egyszerre kínál álomotthont családosoknak és lenyűgöző befektetési lehetőséget! Ha egy gyorsan megtérülő ingatlanra vágyik, itt a tökéletes választás, ezek a lakások azonnal kiadhatók, akár szobánként is, hiszen minden szoba külön nyílik. A mindössze 10 perces sétára található egyetem vonzereje miatt a befektetők számára igazi kincs: ideális rövid távú szálláskiadáshoz, például turistáknak, vagy hosszútávú bérléshez hallgatóknak. A praktikus elrendezés, az újszerű állapot és a kivételes lokáció együtt garantálja, hogy befektetett pénze rövid időn belül kamatostól térüljön meg, ezen a környéken az ingatlanok szinte azonnal kiadhatók!

Ez az otthon családosok és egyetemisták számára egyaránt csábító: a közelben lévő egyetem lehetővé teszi, hogy a hallgatók saját szobában tanulhassanak, szabadon választva csoporttársaikat, elkerülve a kollégiumok zsúfoltságát. A modern hőszivattyús központi hűtő-fűtő rendszer és a padlófűtés ideális hőmérsékletet biztosít, míg a korszerű energetikai megoldások a rezsiköltséget minimálisra csökkentik, egy fenntartható és kényelmes jövő várja Önt! A fedett, zárt garázs (8 000 000 Ft) és a külön tároló (800 000 Ft) pedig tökéletes biztonságot nyújt autójának és értékei tárolására.

Merüljön el ebben a sokoldalú lakásban, ahol a napfény és a gondosan megtervezett tér barátságos hangulatot teremt. Legyen szó családi életről vagy üzleti lehetőségről, ez az ingatlan minden igényt kielégít, és kiemelkedően jó helyen fekszik a belvárosi pezsgés és a nyugalom tökéletes egyensúlyában. Ne hagyja ki,  hívjon most, és tegye valóra álmait, mielőtt más él ezzel a kivételes ajánlattal!

Lakás részletei

Ár: 42 350 000 Ft
Méret: 37 négyzetméter
Azonosító: 11570890
Irodai azonosító: 205704358
Emelet: 2. emelet
Építőanyag: Tégla
Ingatlan állapota: Kitűnő
Komfort fokozat: Összkomfort
Építési év: Új építésű
Egész szobák: 1

Egyéb jellemzők

  • Lift

Hasonló lakás hirdetések

Eladó lakás

Pécs

Eladó lakás Pécs-Kertvárosban – Ideális otthon vagy befektetés!Pécs ...

Eladó lakás

Pécs

Pécs Belvárosában, a Kálvária utcában eladó egy azonnal költözhető, ...

Eladó lakás

Pécs

Pécs-Kertvárosban, a Siklósi úton, IV/4. emeleti, 54 m2-es, átalakított, ...

Eladó lakás

Pécs

Eladó Kertváros csendes részén a Siklósi úton egy 59 m2-es III emeleti ...

Hasonló lakás hirdetések

Eladó lakás

Pécs

Eladó lakás Pécs-Kertvárosban – Ideális otthon vagy befektetés!Pécs ...

Eladó lakás

Pécs

Pécs Belvárosában, a Kálvária utcában eladó egy azonnal költözhető, ...

Eladó lakás

Pécs

Pécs-Kertvárosban, a Siklósi úton, IV/4. emeleti, 54 m2-es, átalakított, ...

Eladó lakás

Pécs

Eladó Kertváros csendes részén a Siklósi úton egy 59 m2-es III emeleti ...