Eladó lakás Pécs 89 500 000 Ft

Leírás

Pécs belvárosában, az ikonikus Király utcában, de egy ősfás, zárt, nagy udvarban eladó ez a sok lehetőséget tartogató, jelenleg építészirodaként funkcionáló, de akár két teljesen külön lakás kialakítására is alkalmas, 2012-ben felújított ingatlan.

Az ingatlan főbejáratán egy tágas előtérben találjuk magunkat (ez akár váróként is hasznosítható, ha arra szükség lenne). Innen nyílik a földszinti lakrész, valamint egy lépcsőn innen lehet felmenni a felső lakrészbe.
Az alsó lakrész felé egy előtér/előszoba fogad minket, ahonnan már a legnagyobb légtérbe jutunk. Innen nyílik egy kisebb szoba (saját kijárattal az udvarra), melyhez egy kisebb gardrób is tartozik, valamint egy pihenősarkon/közlekedőn át a konyha és a fürdőszoba felé indulhatunk. Ezen alsó lakrész egy teljesen önálló lakásként is funkcionálhat.

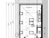
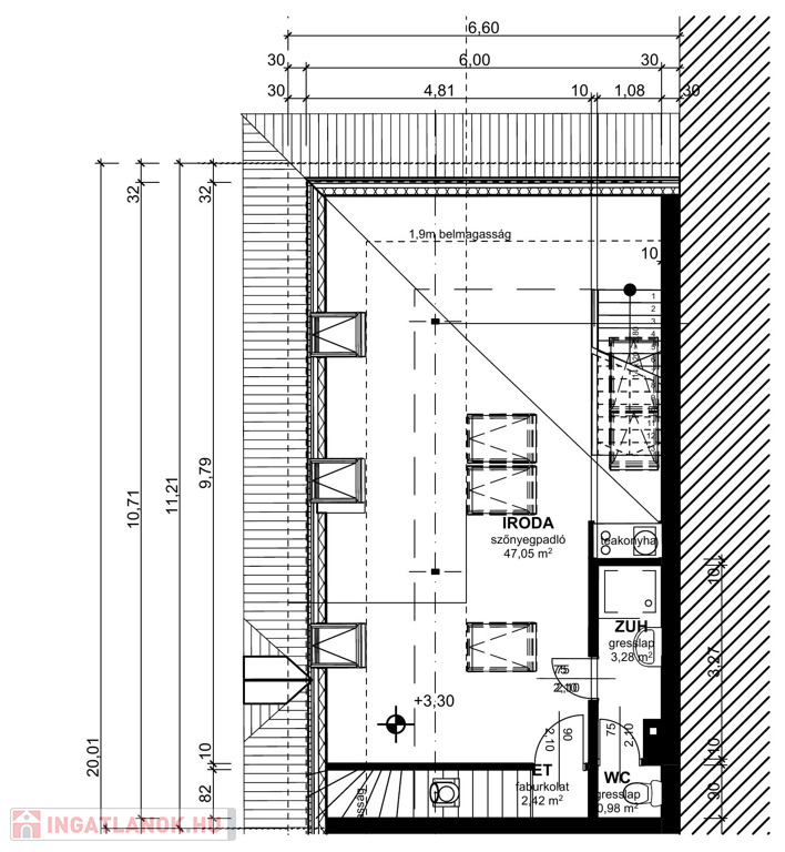
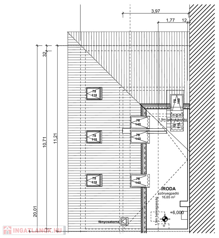
Az előtérből a lépcsőn felfelé indulva találjuk a fenti, nagyobb lakrészt, ahova belépve egy hatalmas, egy légterű, jelenleg irodaként működő helyiségben találjuk magunkat. Ebben a légtérben a tetőtérbe vezető lépcső alatt lett kialakítva egy praktikus kis konyharész. Ebből a légtérből nyílik a fürdő/wc is. Egy szépen kivitelezett fa lépcsőn tudunk a tetőtérbe feljutni, mely akár egy elszeparált külön egység (iroda, háló) is lehet. Ez a felső lakrész is lehetőséget kínál egy önálló lakás kialakítására, a nagy légterű irodarészt akár több szobává is át lehet alakítani.

Jó hír, hogy igény esetén a lehetséges átalakításra ingyenes belsőépítészeti tanácsadást kap a leendő tulajdonos.

A hirdetéshez mellékeltük az ingatlanról készült virtuális bemutatót, melynek segítségével virtuálisan bejárhatja azt, de itt találja az alaprajzot is, melyben minden méretet is megtalál.
https://my.matterport.com/show/?m=VUMjTC4Zrru

Az ingatlan mindkét szintjét a jelenlegi bérlők tovább bérelnék, így a befektetési célú hasznosításra egy opció már adott.

Komoly érdeklődés esetén, ingyenes belsőépítészeti tanácsadással!

Lakás részletei

Ár: 89 500 000 Ft
Méret: 133 négyzetméter
Azonosító: 11591450
Irodai azonosító: 346600
Cím: Király utca
Emelet: Földszint
Építőanyag: Tégla
Fűtés jellege: Egyéb
Ingatlan állapota: Felújított
Komfort fokozat: Összkomfort
Egész szobák: 5
Fél szobák: 1

Egyéb jellemzők

  • Erkély
  • Lift
  • Kertkapcsolat

Hasonló lakás hirdetések

Eladó lakás

Pécs

Eladásra kínálunk egy elegáns, 4 hálószobás,, plusz nappalis dupla komfortos,tégla ...

Eladó lakás

Pécs

NAGY TERASZOS, KERTKAPCSOLATOS LAKÁSOK PÉCS ALSÓMAKÁRI RÉSZÉN!!! 2026 ...

Eladó lakás

Pécs, Budai külváros

Eladó igényesen felújított, teraszos lakás Pécsen. Pécs kedvelt részén ...

Eladó lakás

Pécs

Eladó tágas, polgári lakás Pécs belvárosában, a Szabadság utcában ...

Hasonló lakás hirdetések

Eladó lakás

Pécs

Eladásra kínálunk egy elegáns, 4 hálószobás,, plusz nappalis dupla komfortos,tégla ...

Eladó lakás

Pécs

NAGY TERASZOS, KERTKAPCSOLATOS LAKÁSOK PÉCS ALSÓMAKÁRI RÉSZÉN!!! 2026 ...

Eladó lakás

Pécs, Budai külváros

Eladó igényesen felújított, teraszos lakás Pécsen. Pécs kedvelt részén ...

Eladó lakás

Pécs

Eladó tágas, polgári lakás Pécs belvárosában, a Szabadság utcában ...