Eladó lakás Salgótarján 20 900 000 Ft

Leírás

Ha igazán kényelmes otthonra vágyik, akkor ezt kereste!
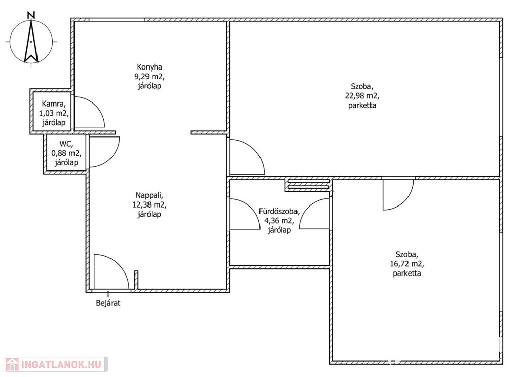
Eladó Salgótarjánban a Vásártéren, egy kétszobás, tágas nappalival és amerikai konyhával rendelkező lakás.
Ide nem kell sok lépcsőt mászva cipekedni, mert ez az otthon a földszinten található. Különösen kedvező időseknek, és kisgyermekes fiataloknak!
Közel a városközponthoz, ezért közel mindenhez, legyen az iskola, óvoda, hivatal, orvosi rendelő, gyógyszertár, vagy üzlet.
A távolsági buszmegálló alig hatvan méterre van a bejárattól, így akár budapesti munkahellyel rendelkezőknek is kedvező lakáslehetőséget biztosít, elérhető áron.
Az ingatlan esztétikai felújításra szorul, mert egy ideje nem lakott, de nem is olyan rég még jobb napokat látott. Ennek bizonyítékai a többszörös szigetelésű, tükörfóliás, dekoratív műanyag ablakok, az igényes bejárati ajtó, a jó minőségű padlóburkoló lapok is.
A fürdőszoba és a WC külön helyiségben található. A fűtést gázkonvektorok biztosítják.
Az átfolyós rendszerű gázüzemű vízmelegítő azonnal előállítja a melegvizet, tetszés szerinti mennyiségben, nem kell várni a víz felmelegedésére, bármennyi rendelkezésre áll.
A lépcsőház tiszta, kulturált, kaputelefonos beléptetőrendszerrel védett.
A lakóközösség jó, segítőkész, a lakóövezet nyugodt, és biztonságos.
Ha felkeltette az érdeklődését ez a lakás, hívjon a +36 70 423 1304-es telefonszámon!
(További képekért és információkért kérem hívjon!)

Lakás részletei

Ár: 20 900 000 Ft
Méret: 68 négyzetméter
Azonosító: 11592170
Irodai azonosító: 437693
Építőanyag: Tégla
Fűtés jellege: Konvektoros
Ingatlan állapota: Felújítandó
Komfort fokozat: Komfort
Egész szobák: 3
Nappalik: 3

Egyéb jellemzők

  • Erkély
  • Garázs
  • Klíma
  • Lift
  • Pince
  • Kertkapcsolat

Hasonló lakás hirdetések

Eladó lakás

Salgótarján

Salgótarjánban, (Vásártér), 65 nm-es, 4. emeleti, 1+2 félszobás, tehermentes, ...

Eladó lakás

Salgótarján

Hangulatos, napfényes 60 nm-es lakás Gorkij ltp. Eladásra kínálok, egy ...

Eladó lakás

Salgótarján

Salgótarjánban (Beszterce lakótelep), 55 nm-es, 3. emeleti, 1+1 félszobás, ...

Eladó lakás

Salgótarján

Salgótarján, Napsugár lakótelepen eladásra kínálok egy 2. emeleti,erkélyes, ...

Hasonló lakás hirdetések

Eladó lakás

Salgótarján

Salgótarjánban, (Vásártér), 65 nm-es, 4. emeleti, 1+2 félszobás, tehermentes, ...

Eladó lakás

Salgótarján

Hangulatos, napfényes 60 nm-es lakás Gorkij ltp. Eladásra kínálok, egy ...

Eladó lakás

Salgótarján

Salgótarjánban (Beszterce lakótelep), 55 nm-es, 3. emeleti, 1+1 félszobás, ...

Eladó lakás

Salgótarján

Salgótarján, Napsugár lakótelepen eladásra kínálok egy 2. emeleti,erkélyes, ...