Eladó lakás Salgótarján 26 400 000 Ft

Leírás

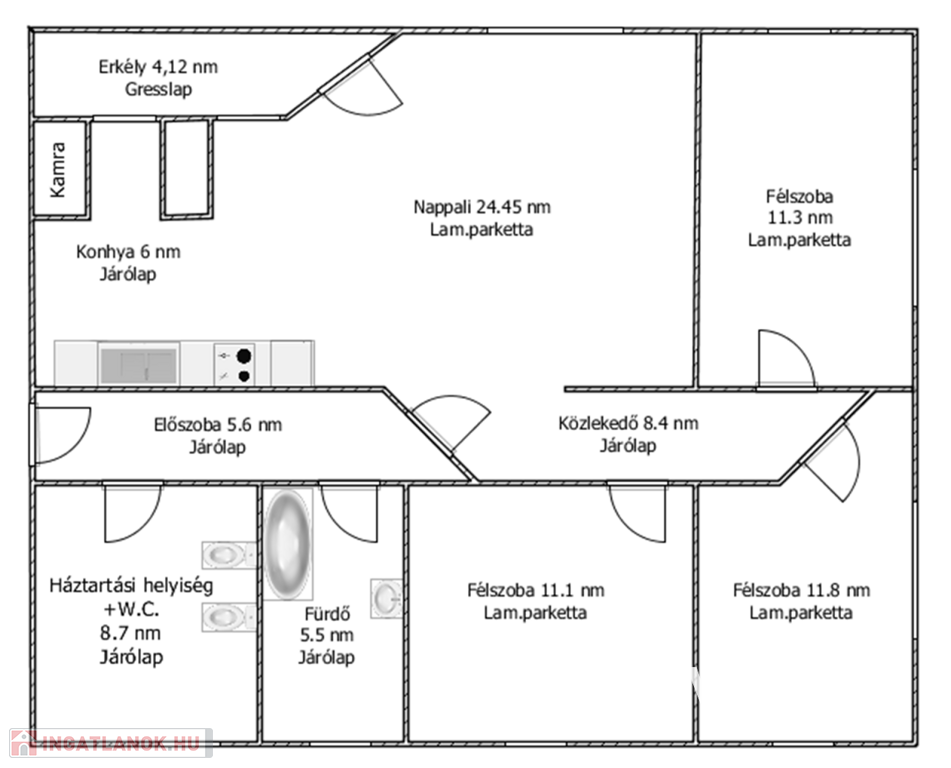
Eladásra kinálom szeretett otthonunkat Salgótarjánban, (Vásártér), 1999-ben épült, kiváló állapotú, kelet-nyugati tájolású, 98 nm-es, 4. emeleti, 1+3 félszobás, tehermentes lakás eladó!

Ritkán elérhető ilyen állapotú, ilyen méretű belvárosi lakás! Használja ki a lehetőséget!

Az ingatlanban 1 szoba (nappali), 3 félszoba, fürdőszoba, külön nyíló W.C., konyha, kamra, közlekedő, előszoba, erkély található.

A fűtést és a meleg víz ellátást gázos kombi cirkó kazán biztosítja.

A lakás egyedi tervek alapján, a társasház tetőterének beépítésével került kialakításra 1999-ben.

Méretéből, tagolásából adódóan nagyobb családok, fiatal házasok ideális választása lehet (CSOK igényelhető 4 gyerekre!).

A lakás felett található tágas padlás kiváló tárolási lehetőséget biztosít.

Igény esetén a nappaliba kéménybe kötött kandalló beépíthető, ezáltal fokozva a komfortérzetet.

A külső szigeteléssel ellátott társasház, az egyik legrendezettebb a környéken, lakói barátságosak, összetartó

A városközpont 5 percen belül gyalogosan elérhető, buszmegálló, vasútállomás, orvosi rendelő, SPAR, piac 200 méteren belül található.
Budapestre óránként mennek ill. jönnek a buszok, ami 100 percet vesz igénybe.

Lakás részletei

Ár: 26 400 000 Ft
Méret: 98 négyzetméter
Azonosító: 11578621
Cím: Játszó utca
Összesített energetikai besorolás: B
Rezsi: 10 000 Ft/hó
Építőanyag: Kérdezzen rá a hirdetőtől »
Ingatlan állapota: Kérdezzen rá a hirdetőtől »
Egész szobák: 4

Hasonló lakás hirdetések

Eladó lakás

Salgótarján

Salgótarjánban, (Vásártér), 1999-ben épült, kiváló állapotú, kelet-nyugati ...

Eladó lakás

Salgótarján

Azonnal költözhető!! Bármilyen támogatott hitelre is. Salgótarján ...

Eladó lakás

Salgótarján

Salgótarjánban, (Belváros), Pécskő úton, részlegesen felújított, 58 ...

Eladó lakás

Salgótarján

Salgótarjánban (Makarenkó út), 58 nm-es, 1+2 félszobás, 1. emeleti, klimatizált, ...

Hasonló lakás hirdetések

Eladó lakás

Salgótarján

Salgótarjánban, (Vásártér), 1999-ben épült, kiváló állapotú, kelet-nyugati ...

Eladó lakás

Salgótarján

Azonnal költözhető!! Bármilyen támogatott hitelre is. Salgótarján ...

Eladó lakás

Salgótarján

Salgótarjánban, (Belváros), Pécskő úton, részlegesen felújított, 58 ...

Eladó lakás

Salgótarján

Salgótarjánban (Makarenkó út), 58 nm-es, 1+2 félszobás, 1. emeleti, klimatizált, ...