Eladó lakás Siófok 66 500 000 Ft

Leírás

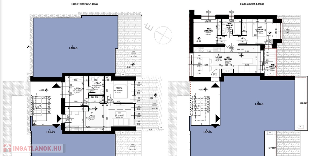
Siófok-Sóstón eladásra kínálunk egy gyönyörű, parkosított üdülőövezetben elhelyezkedő bruttó 52 m2-es 2026-os átadással új építésű emeleti lakást, a GDN Ingatlanhálózat kínálatából.

Az ingatlan tulajdonságai:
-Siófok Sóstó, csendes, dinamikusan fejlődő részén, a Balaton parthoz közel, 2025 tavaszán kezdődő építkezés alkalmával 6 lakásos társasház 1. emeletén, jó elrendezésű, nappali + két szobás 52,16 nm-es lakás terasszal (4 nm) eladó 2026. nyári átadással.

- A lakások egyedi fűtéssel, saját mérőórákkal lesznek felszerelve, a parkosított kertben medence biztosítja a tulajdonosok kényelmét.

- A kivitelező megtekinthető referenciával, nemcsak a kivitelezésre fordít nagy figyelmet, de komoly hangsúlyt fektet a beépített anyagok, minőségére is.

Ezek a feltételek valamint a kellemes környezet, a kis lakóközösség biztosítják, hogy aki itt vesz lakást, az el nem évülő értéket tudjon birtokában.

Nemcsak állandó otthonnak, nyaralásra, de befektetésnek is remek megoldás!

Ideális elhelyezkedés (vízpart közelsége, jó megközelíthetőség, családias környezet), ideális méret kedvező áron.

A lakáshoz a társasház zárt udvarán parkoló vásárolható: 2 M Ft

- Előnye még az ingatlannak, hogy egész évben kiadható a lakás, ami a vendégek számára ideális és folyamatos passzív jövedelmet biztosíthat.

Ezért is ajánlom befektetőknek, illetve családok részére, akik szeretik a Balatont!

Ne hagyja ki ezt a remek lehetőséget!

Amennyiben a veszprémi GDN Ingatlaniroda által kínált lakás, vagy bármely, a kínálatunkban található ingatlan felkeltette érdeklődését, forduljon hozzám bizalommal!

Ingatlanirodánk díjmentes, banksemleges hitelügyintézéssel, illetve ügyvédi tanácsadással is áll Ügyfeleink rendelkezésére!

Lakás részletei

Ár: 66 500 000 Ft
Méret: 52 négyzetméter
Azonosító: 11549392
Irodai azonosító: 384739
Cím: Bródy Sándor utca
Emelet: 1. emelet
Építőanyag: Tégla
Fűtés jellege: Egyéb
Ingatlan állapota: Kitűnő
Komfort fokozat: Összkomfort
Építési év: Új építésű
Tulajdonviszony: Saját
Kilátás: kertre néző
Egész szobák: 3

Egyéb jellemzők

  • Erkély
  • Garázs
  • Lift
  • Pince
  • Tároló

Térkép

Hasonló lakás hirdetések

Eladó lakás

Siófok, Belváros

Siófokon a Fő térnél, a Kálmán Imre sétányon, új építésű, korszerű ...

Eladó lakás

Siófok

Belvárosi lakás eladó Siófokon! Mit szólna egy első emeleti 85 négyzetméteres, ...

Eladó lakás

Siófok

Siófok-Sóstón eladásra kínálunk dinamikusan fejlődő részén, a Balatonparthoz ...

Eladó lakás

Siófok, Belváros

Siófokon a Fő térnél, a Kálmán Imre sétányon, új építésű, korszerű ...

Hasonló lakás hirdetések

Eladó lakás

Siófok, Belváros

Siófokon a Fő térnél, a Kálmán Imre sétányon, új építésű, korszerű ...

Eladó lakás

Siófok

Belvárosi lakás eladó Siófokon! Mit szólna egy első emeleti 85 négyzetméteres, ...

Eladó lakás

Siófok

Siófok-Sóstón eladásra kínálunk dinamikusan fejlődő részén, a Balatonparthoz ...

Eladó lakás

Siófok, Belváros

Siófokon a Fő térnél, a Kálmán Imre sétányon, új építésű, korszerű ...