Eladó lakás Siófok 75 600 000 Ft

Leírás

Új építésű, prémium minőségű lakások Siófok belvárosában!

Kiváló elhelyezkedés, magas műszaki tartalom és modern, energiatakarékos megoldások – mindez elérhető most Siófok szívében!

Az új építésű 12 lakásos társasházban már csak 4 lakás érhető el! Ne maradjon le róla!
Elérhető lakások:
1. lakás Földszint 56.26 m2 nettó lakótér - 75.600.000 Ft
2. lakás Földszint 48.25 m2 nettó lakótér + 14.00 m2 terasz - 73.900.000 Ft
3. lakás Földszint 41.67 m2 nettó lakótér + 14.00 m2 terasz - 65.000.000 Ft
4. lakás 1. emelet - ELKELT
5. lakás 1. emelet - ELKELT
6. lakás 1. emelet - ELKELT
7. lakás 1. emelet - ELKELT
8. lakás 2. emelet - ELKELT
9. lakás 2. emelet - ELKELT
10. lakás 2. emelet - ELKELT
11. lakás 2. emelet - ELKELT
12. lakás III. emelet 115.19 m2 nettó lakótér + 69.61 m2 terasz - 180.000.000 Ft

Mindegyik bármikor megtekinthető!

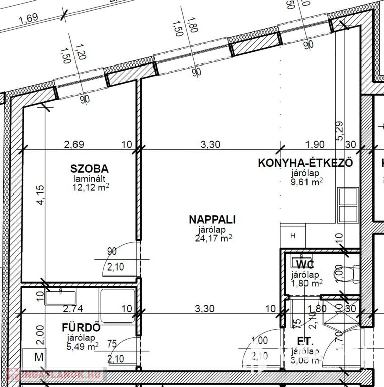
Ez a hirdetés a 1. lakás képeit és alaprajzát tartalmazza!
A lakás főbb paraméterei:
- Nettó alapterület: 56,26 m²
- Elrendezés: amerikai konyhás nappali, hálószoba, fürdőszoba, külön WC, előtér és terasz
- Földszinti elhelyezkedés, kiváló bútorozási lehetőségekkel
- Ideális választás egyedülállóknak, pároknak vagy akár irodai hasznosításra is

A projekt főbb jellemzői:
- Elhelyezkedés: Siófok belvárosa, a Balaton mindössze kb. 800 méterre
- Földszint + 3 emelet, liftes épület, korszerű építési technológiával
- 3 földszinti, 4-4 első és második emeleti, valamint egy zárószinti penthouse lakás
- A földszinti lakások közül több kertkapcsolatos, az emeletiek mind erkéllyel rendelkeznek
- Modern, hangulatos belső udvar, zárt közösségi térrel

Műszaki tartalom és felszereltség:
- Tégla falazat, 15 cm hőszigetelt homlokzat
- Hőszivattyús fűtés-hűtés H-tarifás támogatással
- Padlófűtés és mennyezeti hűtés minden lakásban
- Központi gázkazán a melegvíz-ellátáshoz, 500 literes tárolóval
- Napelemes rendszerrel felszerelt épület
- Háromrétegű üvegezésű, hő- és hangszigetelt nyílászárók
- Biztonsági bejárati ajtók
- Lakásonként külön szabályozható termosztát
- Lift

Lakástípusok:
- A kínálatban megtalálhatók kisebb, nappali + 1 hálós lakások, valamint tágasabb, akár 2-3 hálós családi otthonok is.
- A legtöbb lakás déli tájolású erkéllyel rendelkezik, így világos és napfényes tereket biztosít egész évben.
- Az egyik földszinti lakás 42 m² alapterületű, amely irodai hasznosításra is kiváló választás lehet.

Parkolás és tárolás:
- A ház déli oldalán 24 teremgarázs-beálló és zárt garázs áll rendelkezésre, opcionálisan megvásárolható tárolóhelyiségekkel.

További előnyök:
- Kiváló közlekedési és infrastrukturális adottságok
- A belváros és a Balaton-part néhány perc sétával elérhető
- Minőségi kivitelezés, modern stílus és gondosan megtervezett lakáselrendezések
- Akár 3%-os kamatozású kedvezményes hitellel is megvásárolható

Ne habozzon! Tegye meg az első lépést álmai ingatlanának megszerzése felé! Jöjjön el egy megtekintésre, és győződjön meg róla Ön is! Az ingatlan előzetes egyeztetéssel a hét minden napján megtekinthető. Amennyiben kérdése van, vagy időpontot egyeztetne, hívjon még ma!
Kár lenne kihagyni ezt a remek lehetőséget!
(További képekért és információkért kérem hívjon!)

Lakás részletei

Ár: 75 600 000 Ft
Méret: 56 négyzetméter
Azonosító: 11581667
Irodai azonosító: 595435
Építőanyag: Tégla
Fűtés jellege: Hőszivattyú
Ingatlan állapota: Kitűnő
Komfort fokozat: Összkomfort
Egész szobák: 2
Nappalik: 1

Egyéb jellemzők

  • Erkély
  • Garázs
  • Klíma
  • Lift
  • Pince
  • Kertkapcsolat

Hasonló lakás hirdetések

Eladó lakás

Siófok, Belváros

Siófokon a Fő térnél, a Kálmán Imre sétányon, új építésű, korszerű ...

Eladó lakás

Siófok

Silver Coast - D "Balaton Kapujában"- Siófok Ezüstpartján kínálunk eladásra változatos ...

Eladó lakás

Siófok

Megvételre kínálok a Balaton déli partján, Siófokon egy közvetlen vízparti ...

Eladó lakás

Siófok

Belvárosi lakás eladó Siófokon! Mit szólna egy első emeleti 85 négyzetméteres, ...

Hasonló lakás hirdetések

Eladó lakás

Siófok, Belváros

Siófokon a Fő térnél, a Kálmán Imre sétányon, új építésű, korszerű ...

Eladó lakás

Siófok

Silver Coast - D "Balaton Kapujában"- Siófok Ezüstpartján kínálunk eladásra változatos ...

Eladó lakás

Siófok

Megvételre kínálok a Balaton déli partján, Siófokon egy közvetlen vízparti ...

Eladó lakás

Siófok

Belvárosi lakás eladó Siófokon! Mit szólna egy első emeleti 85 négyzetméteres, ...