Eladó lakás Siófok 84 900 000 Ft

Leírás

Árcsökkenés! 89.9 helyett most 84.9 millió!

Eladó egy egyedülálló adottságokkal rendelkező, belvárosi lakás Siófok legfrekventáltabb pontján, a Fő téren. Ez az ingatlan nem csupán egy lakás, hanem egy kiváló befektetési lehetőség vagy egy kényelmes, városi otthon.

Főbb paraméterek:

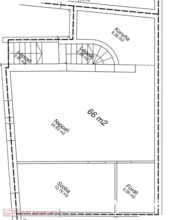
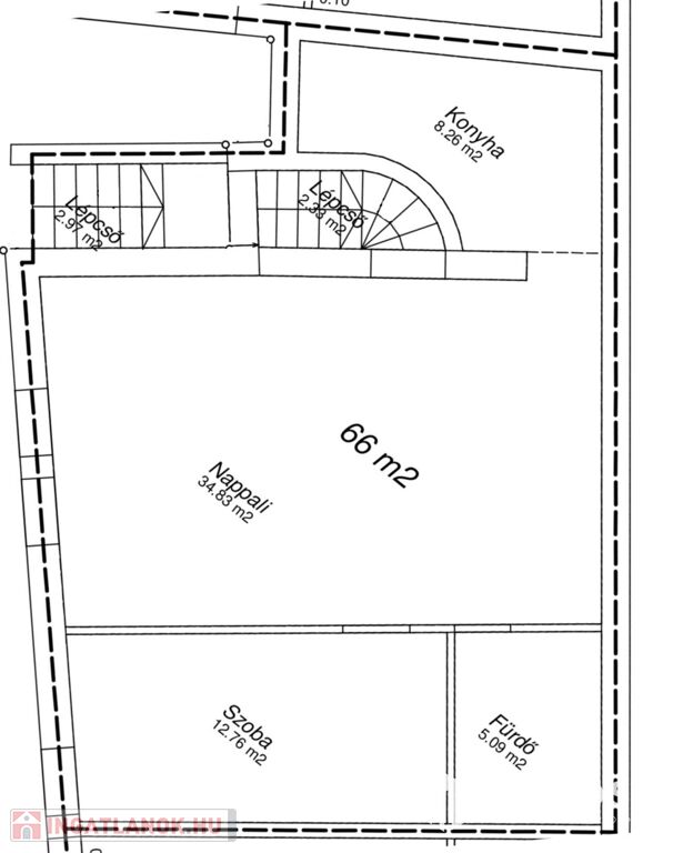
- Lakótér: 66 m²-es alapterület, amely a tetőtér beépítésével további kb. 38 m²-rel növelhető, így akár egy tágas kétszintes lakás is kialakítható.
- Privát szféra: Biztonságos udvarban található, közvetlen utcai bejárattal. Különlegessége, hogy mindössze egyetlen szomszéddal rendelkezik.
- Műszaki állapot: 10 cm-es hőszigetelés, 3 rétegű modern nyílászárók, gázcirkó fűtés radiátoros hőleadással, inverteres klíma.

Belső elrendezés:
A lakás tágas és világos terei magukban foglalnak egy igényesen berendezett gépesített konyhát, egy nagyméretű nappalit étkezővel, egy hálószobát és egy fürdőszobát. Az alaprajz sok lehetőséget rejt: igény szerint egy további hálószoba is könnyedén leválasztható, valamint a tetőtér is beépíthető.

Miért érdemes ezt választania?
- Központi elhelyezkedésének köszönhetően ideális saját otthonnak, vagy nyaralónak.
Befektetésnek kiváló:
- Rövid távú kiadás: A jelenlegi tulajdonos sikeresen üzemelteti rövid távú kiadásként.
- Hosszú távú kiadás: Siófokon óriási a kereslet a minőségi, belvárosi albérletekre – ez az ingatlan azonnal bérbe adható.

Elhelyezkedés: Minden karnyújtásnyira van.
- A Sió Pláza, pékségek, boltok (Spar, Penny), éttermek 1-2 perc,
- A vonat- és autóbusz állomás, posta 5 perc,
- A Balaton-part mindössze 10-15 perces sétatávolság.

A vételár magába foglalja a teljes bútorzatot, azonnal költözhető.
A lakáshoz opcionálisan teremgarázs hely is vásárolható 7,5 millió forintos áron.

Ne habozzon! Tegye meg az első lépést álmai ingatlanának megszerzése felé! Jöjjön el egy megtekintésre, és győződjön meg róla Ön is! Az ingatlan előzetes egyeztetéssel a hét minden napján megtekinthető. Amennyiben kérdése van, vagy időpontot egyeztetne, hívjon még ma!
Kár lenne kihagyni ezt a remek lehetőséget!
(További képekért és információkért kérem hívjon!)

Lakás részletei

Ár: 84 900 000 Ft
Méret: 66 négyzetméter
Azonosító: 11588416
Irodai azonosító: 596598
Építőanyag: Tégla
Fűtés jellege: Cirkó
Ingatlan állapota: Kitűnő
Komfort fokozat: Összkomfort
Egész szobák: 2
Nappalik: 1

Egyéb jellemzők

  • Erkély
  • Garázs
  • Klíma
  • Lift
  • Pince
  • Kertkapcsolat

Hasonló lakás hirdetések

Eladó lakás

Siófok

Silver Coast ÚJ ÉPÍTÉSŰ, PANORÁMÁS, VÍZPARTI NYARALÓK SIÓFOKON! 2025 ...

Eladó lakás

Siófok

Silver Coast - D "Balaton Kapujában"- Siófok Ezüstpartján kínálunk eladásra változatos ...

Eladó lakás

Siófok

Silver Coast - D "Balaton Kapujában"- Siófok Ezüstpartján kínálunk eladásra változatos ...

Eladó lakás

Siófok

Eladó új építésű, prémium lakás Siófok-Sóstón – Balatontól pár ...

Hasonló lakás hirdetések

Eladó lakás

Siófok

Silver Coast ÚJ ÉPÍTÉSŰ, PANORÁMÁS, VÍZPARTI NYARALÓK SIÓFOKON! 2025 ...

Eladó lakás

Siófok

Silver Coast - D "Balaton Kapujában"- Siófok Ezüstpartján kínálunk eladásra változatos ...

Eladó lakás

Siófok

Silver Coast - D "Balaton Kapujában"- Siófok Ezüstpartján kínálunk eladásra változatos ...

Eladó lakás

Siófok

Eladó új építésű, prémium lakás Siófok-Sóstón – Balatontól pár ...