Eladó lakás Siófok 89 900 000 Ft

Leírás

Eladó egy egyedülálló adottságokkal rendelkező, belvárosi lakás Siófok legfrekventáltabb pontján, a Fő téren. Ez az ingatlan nem csupán egy lakás, hanem egy kiváló befektetési lehetőség vagy egy kényelmes, városi otthon.

Főbb paraméterek:

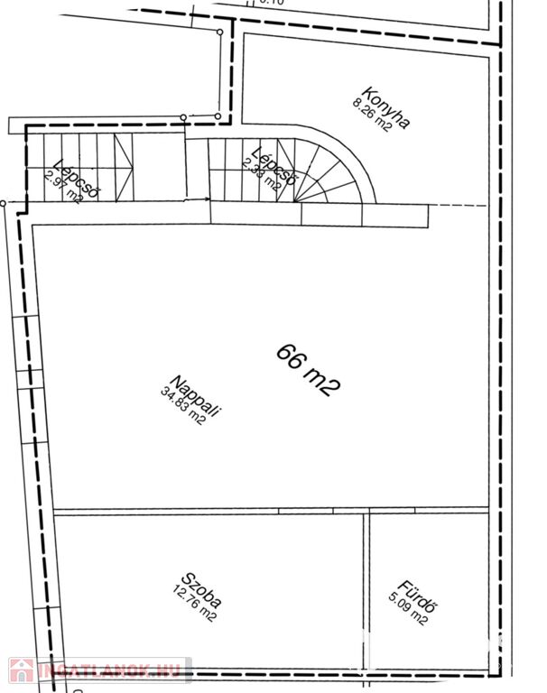
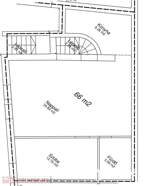
- Lakótér: 66 m²-es alapterület, amely a tetőtér beépítésével további kb. 38 m²-rel növelhető, így akár egy tágas kétszintes lakás is kialakítható.
- Privát szféra: Biztonságos udvarban található, közvetlen utcai bejárattal. Különlegessége, hogy mindössze egyetlen szomszéddal rendelkezik.
- Műszaki állapot: 10 cm-es hőszigetelés, 3 rétegű modern nyílászárók, gázcirkó fűtés radiátoros hőleadással, inverteres klíma.

Belső elrendezés:
A lakás tágas és világos terei magukban foglalnak egy igényesen berendezett gépesített konyhát, egy nagyméretű nappalit étkezővel, egy hálószobát és egy fürdőszobát. Az alaprajz sok lehetőséget rejt: igény szerint egy további hálószoba is könnyedén leválasztható, valamint a tetőtér is beépíthető.

Miért érdemes ezt választania?
- Központi elhelyezkedésének köszönhetően ideális saját otthonnak, vagy nyaralónak.
Befektetésnek kiváló:
- Rövid távú kiadás: A jelenlegi tulajdonos sikeresen üzemelteti rövid távú kiadásként.
- Hosszú távú kiadás: Siófokon óriási a kereslet a minőségi, belvárosi albérletekre – ez az ingatlan azonnal bérbe adható.

Elhelyezkedés: Minden karnyújtásnyira van.
- A Sió Pláza, pékségek, boltok (Spar, Penny), éttermek 1-2 perc,
- A vonat- és autóbusz állomás, posta 5 perc,
- A Balaton-part mindössze 10-15 perces sétatávolság.

A vételár magába foglalja a teljes bútorzatot, azonnal költözhető.

Ne habozzon! Tegye meg az első lépést álmai ingatlanának megszerzése felé! Jöjjön el egy megtekintésre, és győződjön meg róla Ön is! Az ingatlan előzetes egyeztetéssel a hét minden napján megtekinthető. Amennyiben kérdése van, vagy időpontot egyeztetne, hívjon még ma!
Kár lenne kihagyni ezt a remek lehetőséget!
(További képekért és információkért kérem hívjon!)

Lakás részletei

Ár: 89 900 000 Ft
Méret: 66 négyzetméter
Azonosító: 11588416
Irodai azonosító: 596598
Építőanyag: Tégla
Fűtés jellege: Cirkó
Ingatlan állapota: Kitűnő
Komfort fokozat: Összkomfort
Egész szobák: 2
Nappalik: 1

Egyéb jellemzők

  • Erkély
  • Garázs
  • Klíma
  • Lift
  • Pince
  • Kertkapcsolat

Hasonló lakás hirdetések

Eladó lakás

Siófok

Silver Coast - D "Balaton Kapujában"- Siófok Ezüstpartján kínálunk eladásra változatos ...

Eladó lakás

Siófok

Silver Coast - D "Balaton Kapujában"- Siófok Ezüstpartján kínálunk eladásra változatos ...

Eladó lakás

Siófok, Ezüstpart

Balatoni Panoráma! 53nm - Nappali+2 háló, terasz 12 nm, Dingi Fedezze fel ...

Eladó lakás

Siófok, Ezüstpart

54nm, nappali+1 háló, terasz 18 nm, kertkapcsolat 32nm Dingi Fedezze fel ...

Hasonló lakás hirdetések

Eladó lakás

Siófok

Silver Coast - D "Balaton Kapujában"- Siófok Ezüstpartján kínálunk eladásra változatos ...

Eladó lakás

Siófok

Silver Coast - D "Balaton Kapujában"- Siófok Ezüstpartján kínálunk eladásra változatos ...

Eladó lakás

Siófok, Ezüstpart

Balatoni Panoráma! 53nm - Nappali+2 háló, terasz 12 nm, Dingi Fedezze fel ...

Eladó lakás

Siófok, Ezüstpart

54nm, nappali+1 háló, terasz 18 nm, kertkapcsolat 32nm Dingi Fedezze fel ...