Eladó lakás Szászberek 81 900 000 Ft

Leírás

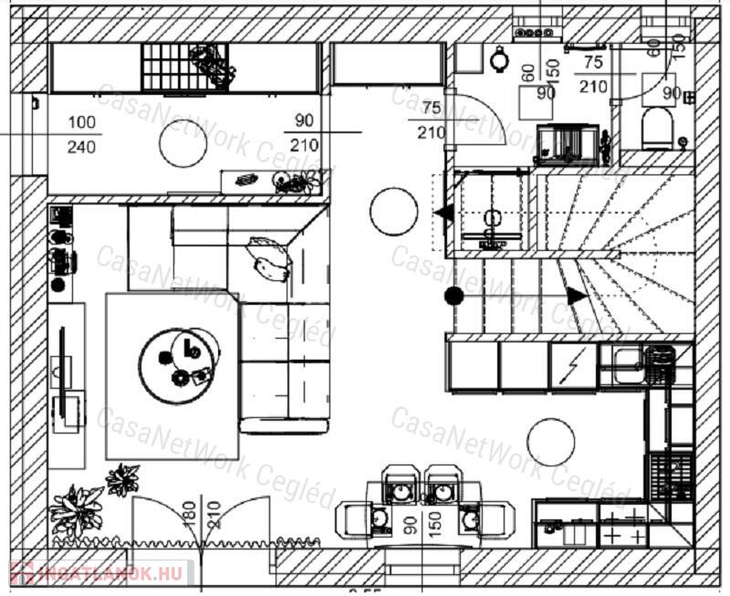
A CASANETWORK CEGLÉD eladásra kínálja a 174601184 számú, új építésű ingatlant SZOLNOKTÓL 17 km-re SZÁSZBERKEN LAKÓPARKI RÉSZÉN. Modern kivitelezésű 2 x 2 lakásos társasházi lakások. Az eladásra kínált lakások 86 nm lakóterületűek + 50 nm autóbeálló + 17 nm-es déli fekvésű terasz. Elosztását tekintve előtér, nappali, konyha-étkező, 3 szoba, 2 db fürdőszoba + wc, közlekedő, terasz. Phorotherm 30 HS falazat, Austrotherm 15 cm hőszigeteléssel. Fűtése kombi gázkazánnal lesz megoldva, lesz felszerelve szintenként 1-1db hűtő/fűtő klíma. A burkolatokat a leendő tulajdonosok választják ki katalógusból.

Minden lakás saját bejárattal és saját kerttel rendelkezik, így senkinek nem kell a másik területén át közlekedni!

A lakások átadása: 2024

A lakás modern megoldásokkal, igényes anyagokból épül Szászberek lakóparki részén.

A CASANETWORK CEGLÉD által kínált ingatlan jellemzői:

- 86 m2 lakótér, 50 nm autóbeálló, 17 nm-es déli fekvésű terasz

- Nappali+3 szoba,

- Tégla építésű, 15 cm-es hőszigetelés,  

- Belmagasság 2,8 méter,

- Összközműves,

- Fűtése kondenzációs lesz gázkazánnal megoldva,

- Hőszigetelt, műanyag nyílászárók, fehér színben

- Parkolni az udvarban saját saját fedett beállón lehetséges 2 autó számára,

- 2 db hűtő/fűtő klíma klíma, 

- plusz információk kizárólag egyeztetett időpontban.

Befizetés mértéke: a hirdetési ár 50 %-a

A kétlakásos TÁRSASHÁZ Szászberken épül, 1000 fős település Szolnoktól 17 km-re. Közúton a 32-es főútról érhető el, annak keleti oldalán fekszik. A 4-es számú főút kb. 8 perc alatt elérhető. A település közössége kiváló, nemrég sportcsarnok valamint műfüves futballpálya került átadásra. További fejlesztések várhatóak.

Amennyiben a 174601184 számú A CASANETWORK CEGLÉD által kínált TÉGLA LAKÁS, CSALÁDI HÁZ vagy bármely a kínálatunkban található TÉGLA LAKÁS, CSALÁDI HÁZ felkeltette érdeklődését, hívjon a megadott telefonszámon. /A hirdetésben szereplő információk a megbízótól kapott adatok alapján készültek, pontosságukért felelősséget nem vállalunk!/

Kollégám díjmentes, bank semleges hitel ügyintézéssel áll rendelkezésre.

CasaNetWork - Ingatlanban otthon vagyunk!

Lakás részletei

Ár: 81 900 000 Ft
Méret: 103 négyzetméter
Azonosító: 10718553
Irodai azonosító: 174601184
Emelet: Földszint
Építőanyag: Tégla
Fűtés jellege: Cirkó
Ingatlan állapota: Kitűnő
Egész szobák: 4

Hasonló lakás hirdetések

Eladó lakás

Szászberek

A Szolnoki CasaNetWork Ingatlaniroda megvételre kínálja Szászbereken a ...

Eladó lakás

Szászberek

A Szolnoki CasaNetWork Ingatlaniroda megvételre kínálja Szászberken a ...

Eladó lakás

Szászberek

A Szolnoki CasaNetWork Ingatlaniroda megvételre kínálja Szászbereken a ...

Eladó lakás

Szászberek

A Szolnoki CasaNetWork Ingatlaniroda megvételre kínálja Szászbereken a ...

Hasonló lakás hirdetések

Eladó lakás

Szászberek

A Szolnoki CasaNetWork Ingatlaniroda megvételre kínálja Szászbereken a ...

Eladó lakás

Szászberek

A Szolnoki CasaNetWork Ingatlaniroda megvételre kínálja Szászberken a ...

Eladó lakás

Szászberek

A Szolnoki CasaNetWork Ingatlaniroda megvételre kínálja Szászbereken a ...

Eladó lakás

Szászberek

A Szolnoki CasaNetWork Ingatlaniroda megvételre kínálja Szászbereken a ...