Eladó lakás Szeged 115 000 000 Ft

Leírás


 

Szeged belvárosában a Szent István tér közelében új építésű, magas színvonalon kivitelezett egyedi megoldásokkal tarkított, azonnal költözhető kulcsrakész lakásokat kínálunk megvételre!

A társasház 15 lakásos 45- 99 m2 közötti méretűekből lehet választani, mindegyikük erkélyes.

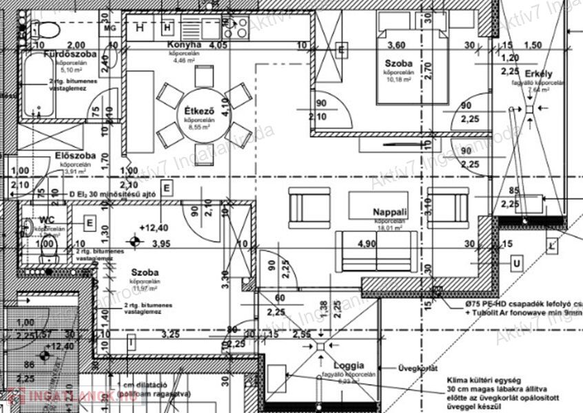
A szóban forgó lakás negyedik emeleti, 63,48 m2 területű, amerikai konyha nappali +2 hálószobás, a hozzá tartozó   7,64 és 6,23 m2 erkélyekkel (a fotók között található alaprajz szerint).

Teljesen készen van, burkolva, festve, elektromos redőnnyel, beltéri ajtókkal, szaniterekkel felszerelve kínáljuk. A vételár a konyhaszekrényt NEM tartalmazza.

A lakások egyedi mérővel ellátott, mennyezeti hűtés-fűtés rendszerrel kerülnek átadásra, a szobánkénti termosztátoknak köszönhetően „okosotthon” vezérlést is lehetővé téve.

A hőszivattyús rendszert gázkazános padlófűtéssel egészítettük ki a minél takarékosabb energiafelhasználás érdekében.

A teljes lépcsőház mészkővel burkolt, a lakások előtti folyosók belga gyártmányú padlószőnyeggel burkoltak, a földszint világítás egyedi, ahogyan a beépítésre került egyedi kivitelezésű gránit burkolatú lift is.

A teljes ház kőzetgyapot hőszigetelő rendszerrel van borítva, az épület homlokzatát LED világítással, olasz mészkővel tettük egyedivé.

Az udvaron a kültéri parkolók mellett növényekkel beültetett kert várja a lakókat.

A házat távfelügyelet által üzemeltetett kamerák védik a betolakodóktól.

A lakásokhoz garázs és  autóbeálló  vásárlási lehetőség is van.

Lakásainkhoz ajándékba belsőépítész által készített terveket adunk.

Az áraink tartalmazzák az ügyvédi munkadíjat, és a társasházalapítás teljes költségét is.

Amennyiben felkeltettem érdeklődését, megnézné az ingatlant, hívjon bizalommal!

Lakás részletei

Ár: 115 000 000 Ft
Méret: 77 négyzetméter
Azonosító: 11444093
Irodai azonosító: 675300936
Cím: Pusztaszeri utca
Emelet: 4. emelet
Építőanyag: Tégla
Ingatlan állapota: Kitűnő
Komfort fokozat: Összkomfort
Építési év: Új építésű
Egész szobák: 3

Egyéb jellemzők

  • Lift

Hasonló lakás hirdetések

Eladó lakás

Szeged

Szeged Belvárosában, a Tisza Lajos körúton eladó, modern tervezésű, ...

Eladó lakás

Szeged

STÍLUSOS, MODERN, KULCSRAKÉSZ LAKÁSOK! Szeged-Belváros peremén 17 lakásos ...

Eladó lakás

Szeged

Prémium otthon Szeged szívében azonnal költözhető, kulcsrakész luxuslakás! ...

Eladó lakás

Szeged

Eladó BELVÁROSI, prémium minőségben felújított kétlakásos ingatlan ...

Hasonló lakás hirdetések

Eladó lakás

Szeged

Szeged Belvárosában, a Tisza Lajos körúton eladó, modern tervezésű, ...

Eladó lakás

Szeged

STÍLUSOS, MODERN, KULCSRAKÉSZ LAKÁSOK! Szeged-Belváros peremén 17 lakásos ...

Eladó lakás

Szeged

Prémium otthon Szeged szívében azonnal költözhető, kulcsrakész luxuslakás! ...

Eladó lakás

Szeged

Eladó BELVÁROSI, prémium minőségben felújított kétlakásos ingatlan ...