Eladó lakás Szeged 68 900 000 Ft

Leírás

MODERN, KULCSRAKÉSZ, ENERGIAHATÉKONY OTTHONOK!

Szeged-Móraváros, Petőfi Sándor sugárút vonzáskörzetében 5 lakásos projekt épül.
A modern, 3 szintes épület ( fsz., 1.em., 2.em. (tetőtér) ) lakásai változatos méretben készülnek, erkéllyel rendelkeznek.

Várható kulcsrakész átadás: 2025.10. hó

Nyugodt környezet
Energiahatékony megoldások


Minden további részlettel kapcsolatban várom hívását! Forduljon Hozzám bizalommal!

MODERN, KULCSRAKÉSZ, ENERGIAHATÉKONY OTTHONOK!

Szeged-Móraváros, Petőfi Sándor sugárút vonzáskörzetében 5 lakásos projekt épül.
A modern, 3 szintes épület ( fsz., 1.em., 2.em. (tetőtér) ) lakásai változatos méretben készülnek, erkéllyel rendelkeznek.

Várható kulcsrakész átadás: 2025.10. hó

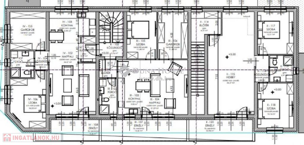
A 3. számú lakás az épület 1. emeletén található, alapterülete 61,91 m2, melyben amerikai konyha + nappali, egy háló, gardróbszoba és fürdő került kialakításra.
A környezettel való kapcsolatot a 14,65 m2-es erkély biztosítja.

Össz terület: 69,235 m2 (1/2 erkéllyel)

Néhány műszaki jellemző:

Homlokzat:
-15 cm EPS zártcellás szigetelés az építész terveknek megfelelően.

Falazat:
- külső főfalak 30-as N+F téglából,
- a lakáselválasztó - és a közösségi tereket elválasztó falak 30-as hanggátló, a belső válaszfalak 10 N+F téglából készülnek

Fűtés – hűtés:
- a lakások fűtését központosított levegő-víz hőszivattyú rendszer fogja biztosítani, amely fűtési szezonban fűtő, fűtési szezonon kívül hűtő funkcióban üzemel.
- minden lakásban padlófűtés kerül kiépítésre
- minden lakóegységhez biztosított a hőmennyiség mérő

Külső nyílászárók:
- kívül antracit, belül fehér GEALAN vagy azzal egyenértékű 6 kamrás műanyag 3 rétegű üvegezéssel.

Redőnyök:
- vakolható redőnytokos redőnyök kerülnek kiépítésre.

Klíma:
- 1 db oldalfali Fan-Coil kiállás a bejárati ajtótól 4 méterre biztosított.

Az ingatlan elhelyezkedése kiváló, hiszen a Belváros bármely pontja néhány perc alatt elérhető.

Ajánlom azoknak, akik modern otthont szeretnének, de befektetési célra is remek lehetőség.

MINDEN TOVÁBBI RÉSZLETTEL, VALAMINT MŰSZAKI ALAPRAJZZAL ÉS SZEMÉLYES MEGTEKINTÉSSEL KAPCSOLATBAN VÁROM HÍVÁSÁT!
FORDULJON HOZZÁM BIZALOMMAL!

Lakás részletei

Ár: 68 900 000 Ft
Méret: 69 négyzetméter
Azonosító: 11461721
Irodai azonosító: PR078128/LK/21022-4816956
Emelet: 1. emelet
Építőanyag: Tégla
Fűtés jellege: Hőszivattyú
Ingatlan állapota: Épülő
Építési év: Új építésű
Egész szobák: 2

Térkép

Hasonló lakás hirdetések

Eladó lakás

Szeged, Makkosház

Szegeden a Csongrádi sugárúton 10.emeleti, 67nm-es (63nm+4nm kihelyezett ...

Eladó lakás

Szeged

Szeged Alsóvároson, a Bem utcában eladó ez a 71 m2-es 3 szobás, erkélyes, ...

Eladó lakás

Szeged

Szeged Rókus városrészben , a Damjanich utcában , elegáns , 82 m-es ...

Eladó lakás

Szeged

Tökéletes lokáció,tökéletes befektetés! Az ingatlan Szegeden az Egyetemi ...

Hasonló lakás hirdetések

Eladó lakás

Szeged, Makkosház

Szegeden a Csongrádi sugárúton 10.emeleti, 67nm-es (63nm+4nm kihelyezett ...

Eladó lakás

Szeged

Szeged Alsóvároson, a Bem utcában eladó ez a 71 m2-es 3 szobás, erkélyes, ...

Eladó lakás

Szeged

Szeged Rókus városrészben , a Damjanich utcában , elegáns , 82 m-es ...

Eladó lakás

Szeged

Tökéletes lokáció,tökéletes befektetés! Az ingatlan Szegeden az Egyetemi ...