Eladó lakás Szeged 70 100 000 Ft

Leírás

Kedves Érdeklődő!

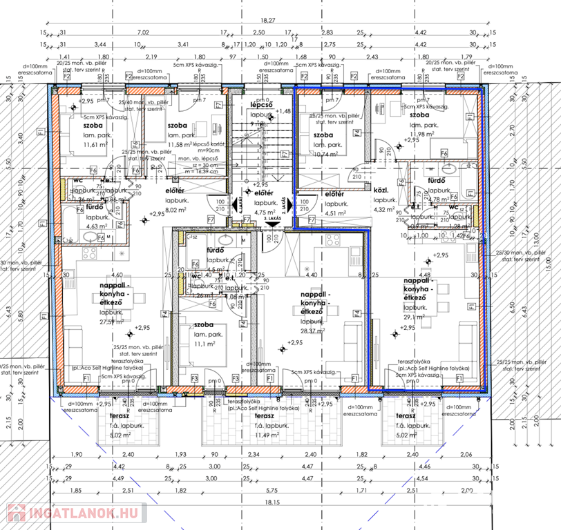
Eladó Alsóváros kedvelt részén 68 m2-es új építésű, nappali+2 szobás elrendezésű 2. emeleti erkélyes lakás!
A tökéletes lokációnak köszönhetően a közelben adott a tömegközlekedési és a bevásárlási lehetőség is, illetve az egyetemi épületek is néhány perc alatt elérhetőek.
A kivitelezés folyamatosan zajlik, már csak néhány lakás elérhető a társasházban! Ne maradjon le erről a remek lehetőségről!
A feltüntetett ár emelt szerkezetkész műszaki tartalomra vonatkozik!

Emelt szerkezetkész műszaki tartalom:
- Porotherm 30 cm N+F tégla falazat
- 15 cm EPS hőszigetelés
- Rehau 3 rétegű műanyag nyílászárók rejtett redőnytokkal
- fűtés: 2 db 16 kW Stiebel Elektron hőszivattyú, lakásonkénti hőmennyiségmérővel és padlófűtéssel
- hűtés: lakásonkénti Fan-coil rendszer előcsövezése
- villanyszerelés: fővezeték behúzása az elosztószekrényig, védőcsövezés kiépítése
- víz alapvezetékelés a vételi pontokig kialakítva, ledugózva
- falak gépi vakolása
- erkélyeken üveg korlátok kiépítése
- udvar térkövezése, parkolóhelyek kialakítása, telek körbe kerítése.
Szerkezetkész átadás várható időpontja: 2025. II. negyedév.

Kulcsrakész műszaki tartalom:
- villanyhálózat teljes kiépítése lakáson belül és szerelvényezés (Legrand kapcsolók, konnektorok, kaputelefon)
- szaniterek Wellis és csaptelepek Hansgrohe meghatározott termékcsaládból
- beltéri ajtók br. 100.000 Ft/db áron
- hideg- és meleg burkolás 10.000 Ft/ m2 árig, a fürdőszobában 210 cm magasságig, wc-ben 120 cm magasságig
- falak glettelése és festése
A lakások kulcsrakész befejezése egyedileg történik megbeszélés alapján, így a konkrét kulcsrakész ár a vevő igényeinek ismeretében határozható meg! (Körülbelül 150-200.000 Ft/m2)
Kulcsrakész átadás várható időpontja: 2025. IV. negyedév.

További kérdéseivel forduljon hozzám bizalommal!

Elérhetőség:
Német Máté
+36-30/ 975-8764
nemet.mate@ving.hu
(További képekért és információkért kérem hívjon!)

Lakás részletei

Ár: 70 100 000 Ft
Méret: 68 négyzetméter
Azonosító: 11459820
Irodai azonosító: 228910
Erkély mérete: 5.00 négyzetméter
Építőanyag: Tégla
Fűtés jellege: Hőszivattyú
Ingatlan állapota: Szerkezetkész
Komfort fokozat: Összkomfort
Egész szobák: 3
Nappalik: 1

Egyéb jellemzők

  • Erkély
  • Garázs
  • Klíma
  • Lift
  • Pince
  • Kertkapcsolat

Hasonló lakás hirdetések

Eladó lakás

Szeged

Szeged Alsóvároson, a Bem utcában eladó ez a 71 m2-es 3 szobás, erkélyes, ...

Eladó lakás

Szeged

Szeged Rókus városrészben , a Damjanich utcában , elegáns , 82 m-es ...

Eladó lakás

Szeged

Egyedi stílusú ,trendi, dizájn lakás eladó! Szeged Rókus , Belvároshoz ...

Eladó lakás

Szeged, Makkosház

Szegeden a Csongrádi sugárúton 10.emeleti, 67nm-es (63nm+4nm kihelyezett ...

Hasonló lakás hirdetések

Eladó lakás

Szeged

Szeged Alsóvároson, a Bem utcában eladó ez a 71 m2-es 3 szobás, erkélyes, ...

Eladó lakás

Szeged

Szeged Rókus városrészben , a Damjanich utcában , elegáns , 82 m-es ...

Eladó lakás

Szeged

Egyedi stílusú ,trendi, dizájn lakás eladó! Szeged Rókus , Belvároshoz ...

Eladó lakás

Szeged, Makkosház

Szegeden a Csongrádi sugárúton 10.emeleti, 67nm-es (63nm+4nm kihelyezett ...