Eladó lakás Szeged 79 590 000 Ft

Leírás

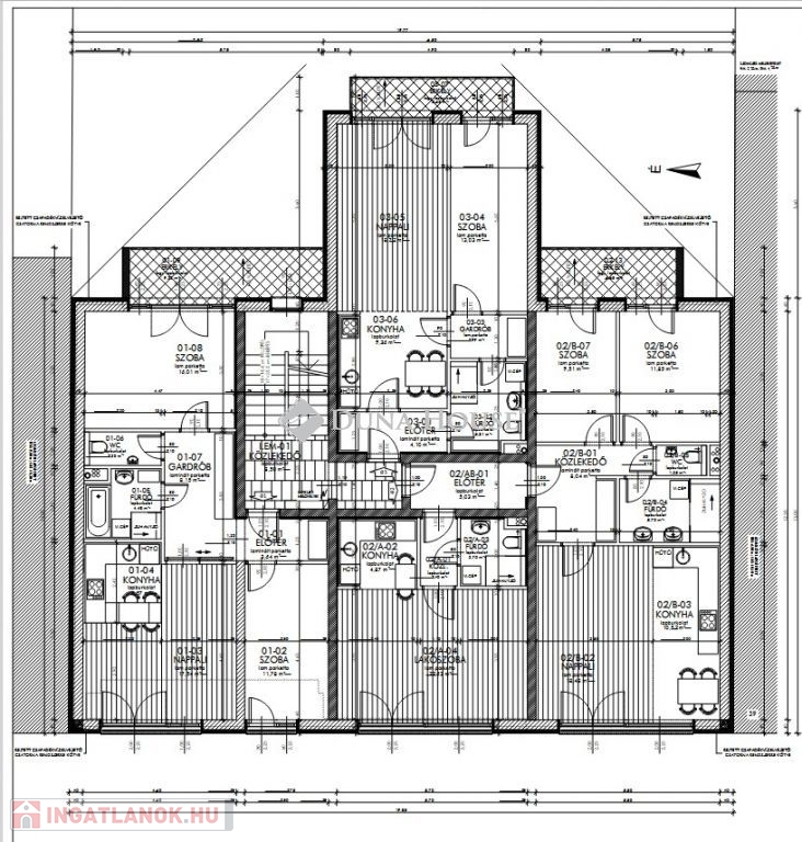
Űj építésű 1. emeleti erkélyes lakás ELADÓ!

Felsőváros új fejezete, modern lakás, ahol az első nap is otthon!
Modern új építésű lakások, kiváló helyen minőségi kivitelezéssel!
Az épület szintjei: földszint + két emelet + tetőtér beépítés.
Az épülő társasházban, összesen 12 modern lakás, egy üzlethelyiség, 4 garázs és autóbeállók épülnek.
Ez alakás az első emeleten található, udvarra néző kilátással. Alapterülete: 56,85nm
Helyiségei: - nappali+konyha, - szoba, - gardrób, - fürdő+WC, - előtér, - erkély
Az épület korszerű kialakításának köszönhetően energiatakarékos és modern életstílust kínál, ideális választás fiatal családoknak, befektetőknek vagy vállalkozóknak egyaránt.
- HOMLOKZATI FALAK 30 cm vtg. LEIERHERM 30 N+F VÁZKERÁMIÁS FALAZÓBLOKKBÓL KÉSZÜLNEK, HŐSZIGETELŐ HABARCSBA FALAZVA!- A HOMLOKZATON 10 cm AUSTROTHERM GRAFIT HŐSZIGETELÉS KERÜL BEÉPÍTÉSRE- A LAKÁSELVÁLASZTÓ FALAK 25 cm vtg. HANGGÁTLÓ TÉGLÁBÓL KÉSZÜLNEK, - A LAKÁSELVÁLASZTÓ FALAK EI-30 TŰZVÉDELMI TELJESÍTMÉNYŰEK!

A vételár a kulcsrakész állapotot tartalmazza.
A lakáshoz garázs, vagy autóbeálló vásárolható.
Birtokbavétel legkésőbb 2027.12.31-én lehetséges.
Kérdés esetén, vagy részletes tájékoztatásért, hívjon bizalommal!

Referencia szám: PR084576/LK/26561

Lakás részletei

Ár: 79 590 000 Ft
Méret: 56 négyzetméter
Azonosító: 11589577
Irodai azonosító: PR084576/LK/26561-5115396
Összesített energetikai besorolás: A++
Emelet: 1. emelet
Építőanyag: Tégla
Fűtés jellege: Hőszivattyú
Ingatlan állapota: Épülő
Komfort fokozat: Összkomfort
Építési év: Új építésű
Kilátás: udvari
Egész szobák: 2

Egyéb jellemzők

  • Erkély
  • Klíma

Térkép

Hasonló lakás hirdetések

Eladó lakás

Szeged

Egyedi stílusú ,trendi, dizájn lakás eladó! Szeged Rókus , Belvároshoz ...

Eladó lakás

Szeged

1.emelet 8.-as lakás. Amerikai konyhás nappali + 2 szoba , Erkély: 4,56 ...

Eladó lakás

Szeged

Földszint 1.-es lakás. Akadálymentesített, igény szerint bővíthető. A ...

Eladó lakás

Szeged

Szeged Rókus városrészben , a Damjanich utcában , elegáns , 82 m-es ...

Hasonló lakás hirdetések

Eladó lakás

Szeged

Egyedi stílusú ,trendi, dizájn lakás eladó! Szeged Rókus , Belvároshoz ...

Eladó lakás

Szeged

1.emelet 8.-as lakás. Amerikai konyhás nappali + 2 szoba , Erkély: 4,56 ...

Eladó lakás

Szeged

Földszint 1.-es lakás. Akadálymentesített, igény szerint bővíthető. A ...

Eladó lakás

Szeged

Szeged Rókus városrészben , a Damjanich utcában , elegáns , 82 m-es ...