Eladó lakás Székesfehérvár 100 000 000 Ft

Leírás

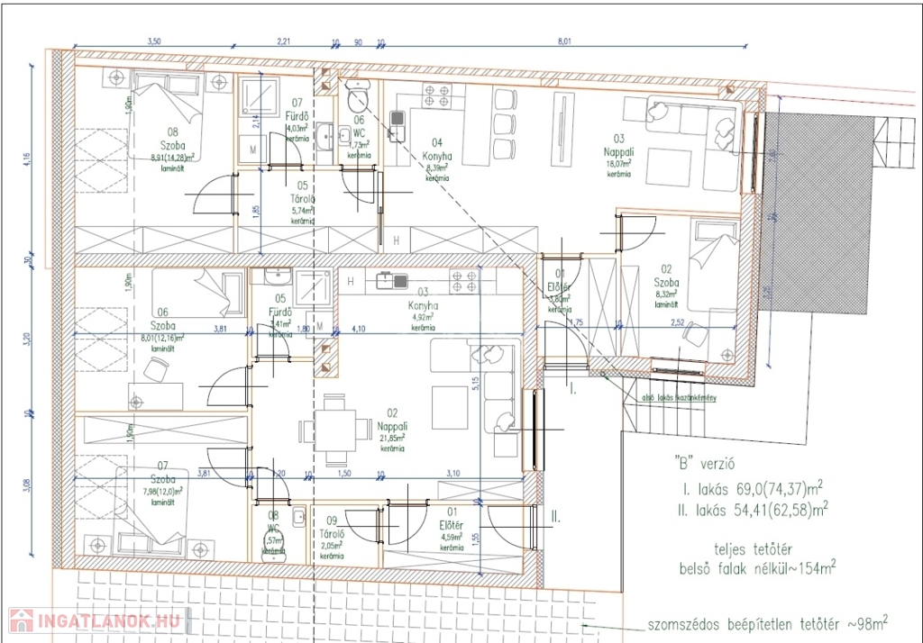
L-004695. Belvárosi tetőtér – két új lakás kialakításának lehetőségével, külön bejárattal
Belvárosi elhelyezkedésű, egybefüggő tetőtéri ingatlan eladó, amelyből két önálló, jól használható lakás alakítható ki.

Az ingatlan külön bejárattal rendelkezik, így a későbbi megosztás funkcionálisan és értékesítés szempontjából is ideális.

A tervezett kialakítás szerint:

• az egyik lakás 69 m²,
• a másik lakás 54 m² alapterületű, mindkettő amerikai konyhás nappali + 2 szobás elrendezéssel.

A lakásokban a fürdőszoba és a WC külön helyiségben kap helyet, ami mind saját célú használat, mind kiadás esetén kifejezetten előnyös.

Az alaprajzi kiosztás jól átgondolt, a helyiségek arányosak, élhető méretűek, természetes fénnyel jól ellátott terek alakíthatók ki.

Az ingatlan kiváló választás:

• befektetőknek, akik két külön lakást szeretnének értékesíteni vagy bérbe adni,
• családoknak, akik egy nagyobb, de akár később is leválasztható ingatlanban gondolkodnak,
• illetve azoknak, akik hosszú távon értékálló belvárosi ingatlant keresnek.

A lokáció miatt az elkészült lakások könnyen és gyorsan kiadhatók, valamint az elhelyezkedés az értéknövekedést is támogatja.

Az ingatlan ritka lehetőség a belvárosban, hiszen az alatta lévő lakás is eladó ami 56 nm nagyságú és akár egybe is nyitható a felette lévő 123 nm területtel így egy kivételes, közel 180 nm lakótér alakítható ki.

Eladási Irány Ár (csak a tetőtér vonatkozásában): 100 MFt

Ha felkeltette érdeklődését, hívja irodánkat bizalommal, éljen ingyenes, személyre szabott hitelügyintézés szolgáltatásunkkal. Segítünk továbbá adásvételhez szükséges ügyvédi közreműködésben, energetikai tanúsítvány, valamint értékbecslés elkészítésében.

For English details please send us a message or an e-mail, thank you

Lakás részletei

Ár: 100 000 000 Ft
Méret: 123 négyzetméter
Azonosító: 11588019
Irodai azonosító: 390909
Cím: Gyümölcs utca
Emelet: 1. emelet
Építőanyag: Tégla
Fűtés jellege: Cirkó
Ingatlan állapota: Épülő
Komfort fokozat: Összkomfort
Építési év: Új építésű
Tulajdonviszony: Saját
Kilátás: utcai
Egész szobák: 6

Egyéb jellemzők

  • Erkély
  • Garázs
  • Lift
  • Pince
  • Tároló

Térkép

Hasonló lakás hirdetések

Eladó lakás

Székesfehérvár

L-004569. Ányos Pál utcában, a belváros közelében, 2. emeleti, 126 nm-es ...

Eladó lakás

Székesfehérvár, Belváros

Páratlan hangulat, patinás környezetben Belvárosi macskakövön, meghitt ...

Eladó lakás

Székesfehérvár, Szederkert

Székesfehérváron, a Belváros közelében eladó egy 2016-ban épült, újszerű, ...

Eladó lakás

Székesfehérvár

L-004374. Belvárosi kényelem, tágas terek és prémium minőségű felújítás ...

Hasonló lakás hirdetések

Eladó lakás

Székesfehérvár

L-004569. Ányos Pál utcában, a belváros közelében, 2. emeleti, 126 nm-es ...

Eladó lakás

Székesfehérvár, Belváros

Páratlan hangulat, patinás környezetben Belvárosi macskakövön, meghitt ...

Eladó lakás

Székesfehérvár, Szederkert

Székesfehérváron, a Belváros közelében eladó egy 2016-ban épült, újszerű, ...

Eladó lakás

Székesfehérvár

L-004374. Belvárosi kényelem, tágas terek és prémium minőségű felújítás ...