Eladó lakás Székesfehérvár 132 000 000 Ft

Leírás

L-004093. Székesfehérvár frekventált, megújuló, folyamatosan fejlődő városrészén, modern, letisztult, jó elosztású, erkélyes, új építésű társasházi lakások eladók.

A lakások a mai kor műszaki követelményeinek és igényeinek maximálisan eleget téve, kulcsrakészen kerülnek átadásra.

A 4 szintes társasházban 32 korszerű lakás kapott helyet. A biztonságos parkolást a 17 beállót tartalmazó zárt felszíni parkoló, valamint a 24 férőhelyes mélygarázs biztosítja melyek külön vásárolhatók meg.

Nagy múltú, megbízható és tapasztalt ingatlanfejlesztő jegyzi a társasház építését, számtalan referenciaépülettel rendelkezik Fehérváron.

Átadás: 2025 szeptember

Főbb műszaki paraméterek:

- rugalmas fizetési ütemezés
- illeték fizetés 2026-ban (kérjen bővebb információt)

- távvezérelhető, házközponti fűtés, egyedi méréssel, hőleadás padlón keresztül
- fürdőszobában törölközőszárító radiátor
- klíma, riasztó előkészítés
- lift
- Zöld Otthonnak megfelelő energia besorolás
- redőny + szúnyogháló, nyílászárók 3 rétegű üvegezéssel
- választható hideg- és meleg burkolat, hangszigetelt CPL beltéri ajtók

Az eladási ár tartalmazza: Csaptelepek | Klíma előkészítés | Padlófűtés | Riasztó alapszerelés | Szaniterek | Szúnyogháló | Választható – burkolatok, beltéri ajtók

Az eladási ár NEM tartalmazza: Beépített bútorok | Klíma készülék | Lámpatestek | Riasztó szerelvény

Lakástípus:

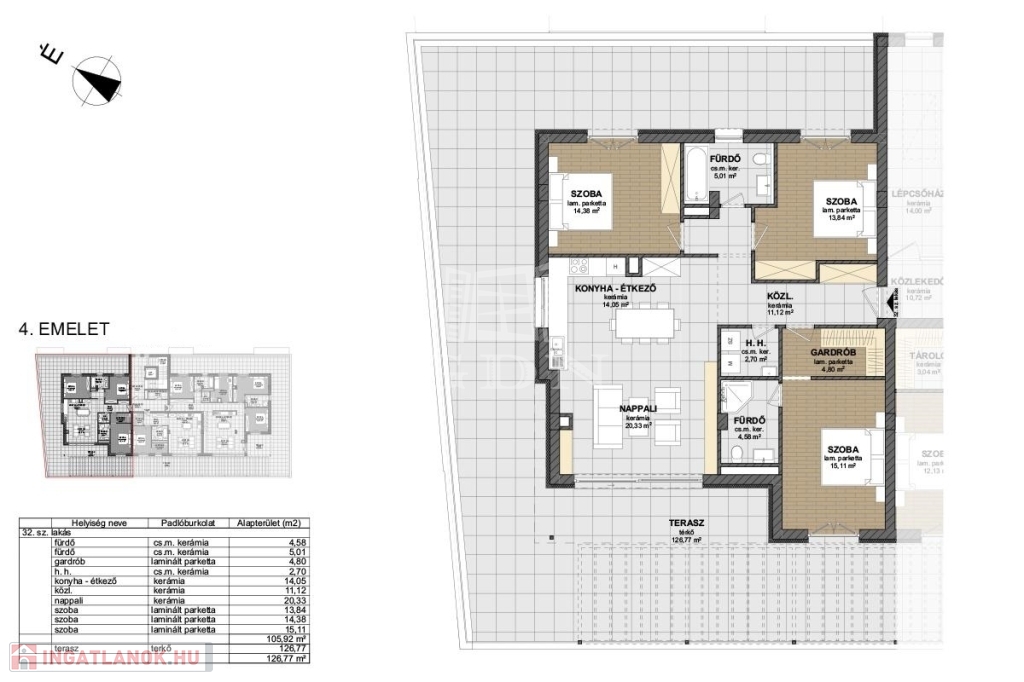
» 4. szint - Penthouse:
32 lakás: 105,92 m2|konyha + étkező, nappali, 3 hálószoba, közlekedő, 2 db fürdő + wc, háztartási helység, gardrób, terasz: 126,77 m2 Eladási ár: 132.000.000,- Ft


A vásárláshoz, a jelenleg aktuális családok otthonteremtésére vonatkozó összes támogatás igénybe vehető (CSOK + /illetékmentes a vásárlás/, Jelzáloghitel, Babaváró kölcsön….)

Ha felkeltette érdeklődését, hívja irodánkat bizalommal, éljen ingyenes, személyre szabott hitelügyintézés szolgáltatásunkkal. Segítünk továbbá adásvételhez szükséges ügyvédi közreműködésben, energetikai tanúsítvány, valamint értékbecslés elkészítésében.

For English details please send us a message or an e-mail, thank you

Lakás részletei

Ár: 132 000 000 Ft
Méret: 106 négyzetméter
Azonosító: 11431323
Irodai azonosító: 368556
Cím: Belvároshoz közel
Emelet: 4. emelet
Építőanyag: Tégla
Fűtés jellege: Távfűtés
Ingatlan állapota: Kitűnő
Komfort fokozat: Összkomfort
Építési év: Új építésű
Tulajdonviszony: Saját
Kilátás: udvari
Egész szobák: 4

Egyéb jellemzők

  • Erkély
  • Garázs
  • Lift
  • Pince
  • Tároló

Térkép

Hasonló lakás hirdetések

Eladó lakás

Székesfehérvár, Belváros

A Belváros peremén keres kertes házat? Szeretné a reggeli kávéját a ...

Eladó lakás

Székesfehérvár, Belváros

Székesfehérvár belvárosában 144m2-es, erkélyes polgári lakás eladó. A ...

Eladó lakás

Székesfehérvár

L-002754 Belváros közelében igényes környezetben új építésű 14 lakásos ...

Eladó lakás

Székesfehérvár

L-004374. Belvárosi kényelem, tágas terek és prémium minőségű felújítás ...

Hasonló lakás hirdetések

Eladó lakás

Székesfehérvár, Belváros

A Belváros peremén keres kertes házat? Szeretné a reggeli kávéját a ...

Eladó lakás

Székesfehérvár, Belváros

Székesfehérvár belvárosában 144m2-es, erkélyes polgári lakás eladó. A ...

Eladó lakás

Székesfehérvár

L-002754 Belváros közelében igényes környezetben új építésű 14 lakásos ...

Eladó lakás

Székesfehérvár

L-004374. Belvárosi kényelem, tágas terek és prémium minőségű felújítás ...